Appartement 88m² à gennevilliers

— Gennevilliers 92230 —
405 000 €
88 m²
4 pièces
parkingbalcon/terrasseascenseur

Situé à Gennevilliers (92230) 2 rue d'Ostrowiec dans l'éco Quartier, cet appartement bénéficie d'un environnement urbain dynamique offrant un accès facile au métro à 6 minutes à pieds du métro ligne 13 Station 'Gabriel Péri', aux bus, aux écoles, aux lycées, aux collèges, et aux crèches. La résidence sécurisée avec ascenseur, interphone, digicode, et fibre optique garantit un confort moderne et pratique aux résidents.

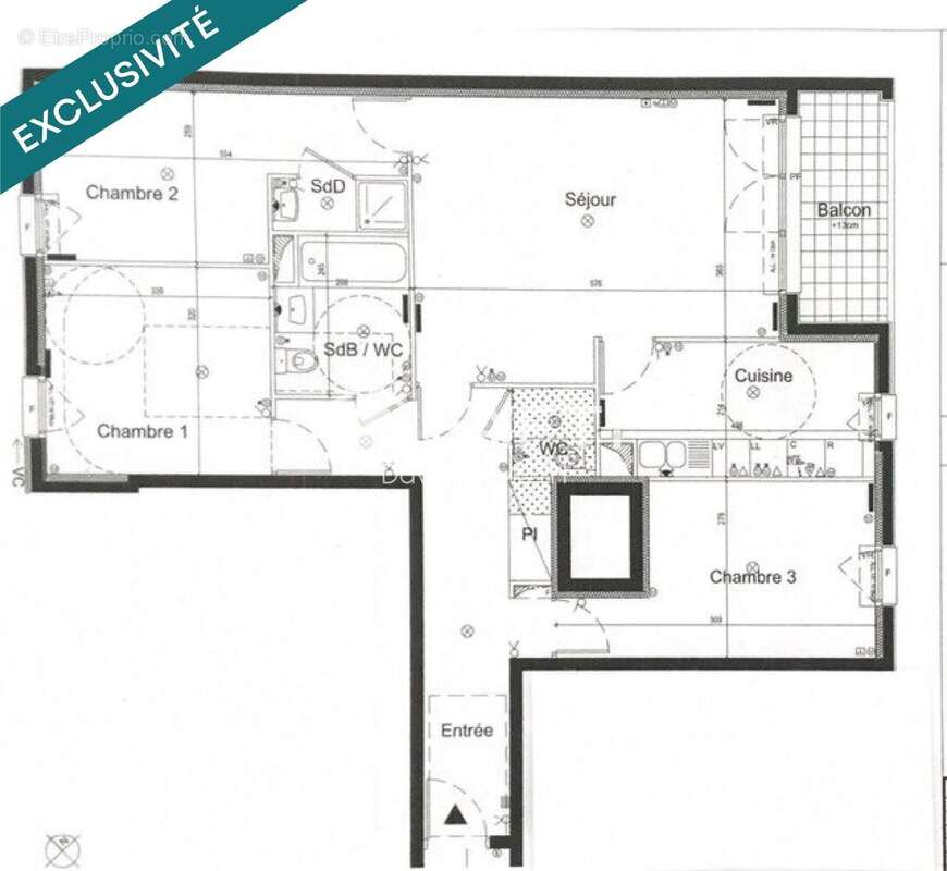
Cet appartement de 88 m² construit en 2015 se distingue par son exposition Sud-Est offrant une luminosité agréable. Il dispose d'un balcon de 5 m² et d'une cave, ainsi que d'une place de parking couverte, assurant des espaces extérieurs appréciables et une commodité de stationnement.

À l'intérieur, vous trouverez un bien fonctionnel situé au 3 -ème étage et bien agencé comprenant un séjour de 23 m², une cuisine équipée semi-ouverte de 9 m², trois chambres spacieuses de 10,90 m², 11,46 m² et 11,52 m², 1 salle de bain, 1 salle de douche, un WC indépendant, et une entrée de 14 m². L'appartement bénéficie de chauffage et eau chaude collectifs au gaz, avec des charges trimestrielles de 790¤ / trimestre, une taxe foncière annuelle de 1868¤, et une classification énergétique en 'B'.

Le bien comprend 3 lots, et il est situé dans une copropriété de 100 lots (les charges courantes annuelles moyennes de copropriété sont de 3160 ¤ et le syndicat des copropriétaires ne fait pas l'objet d'une procédure citée à l'article L. 721-1 du code de la construction et de l'habitation).

Les informations sur les risques auxquels ce bien est exposé sont disponibles sur le site Géorisques : www.georisques.gouv.fr
Prix de vente : 405 000 ¤
Honoraires charge vendeur

Contactez votre conseiller SAFTI : David BISMUTH, Tél. : [Coordonnées masquées], E-mail : [Coordonnées masquées] - EI - Agent commercial immatriculé au RSAC de NANTERRE sous le numéro 453 986 358.
Informations LOI ALUR :
Soumis au régime de copropriété.
Nombre de lots : 100.
Quote part annuelle(moyenne) : 3160 euros.
Honoraires charge vendeur. (gedeon_26118_31872049)
Voir plus

Référence: 1528402
Bien en copropriété. Nombre de lots : 100. Charges de copropriété : 3160 €.
Honoraires à la charge du vendeur.
Barème des honoraires
DPE
A
B
C
D
E
F
G
GES
A
B
C
D
E
F
G

Prêt immobilier

Vous souhaitez connaître votre capacité d’emprunt et trouver le meilleur crédit immobilier ?
Réaliser une simulation gratuite

Photo 1 - Appartement à GENNEVILLIERS
Photo 1
Photo 2 - Appartement à GENNEVILLIERS
Photo 2
Photo 3 - Appartement à GENNEVILLIERS
Photo 3
Photo 4 - Appartement à GENNEVILLIERS
Photo 4
Photo 5 - Appartement à GENNEVILLIERS
Photo 5
Photo 6 - Appartement à GENNEVILLIERS
Photo 6
Photo 7 - Appartement à GENNEVILLIERS
Photo 7
Photo 8 - Appartement à GENNEVILLIERS
Photo 8
Photo 9 - Appartement à GENNEVILLIERS
Photo 9
Ce site est protégé par reCAPTCHA la Politique de confidentialité et les Conditions d’utilisation de Google s’appliquent.
Obtenir un prêt immobilier au meilleur taux ?

En poursuivant votre navigation sans modifier vos paramètres, vous acceptez l'utilisation de cookies susceptibles de réaliser des statistiques de visite. Cliquez ici pour plus d'informations