10mn de bernay t7 151m² 185000€ avec garage et terrain de 500m² ( bourg avec commerces)

— Bernay 27300 —
185 000 €
151 m² / 500 m²
7 pièces
parking

À Vendre – Charmante maison de caractère – 10 min de Bernay et Beaumont-le-Roger

Située dans un bourg avec gare, commerces et écoles, cette maison atypique en briques et colombages, de type longère, est une ancienne écurie transformée en habitation, offrant de nombreuses possibilités : chambres d'hôtes, famille d'accueil, télétravail ou vie à deux familles.

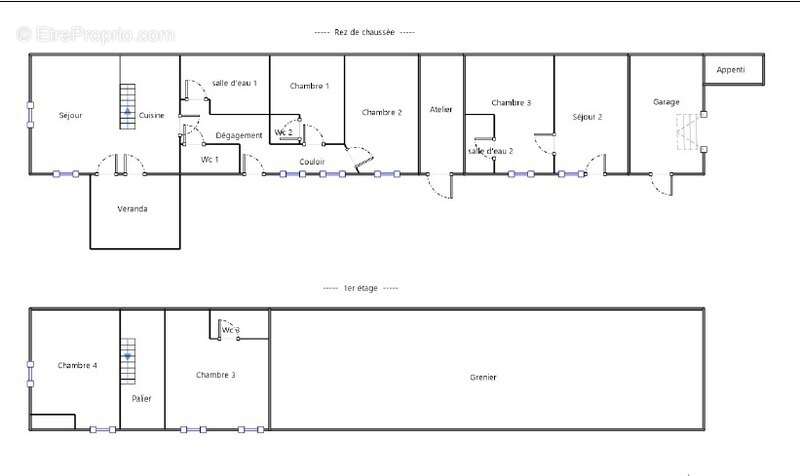
Rez-de-chaussée :

. Cuisine aménagée et équipée avec cheminée insert, semi-ouverte sur le séjour/salon

. 2 chambres, dont une avec WC

. Salle d'eau, WC séparés

. Grande véranda donnant sur une terrasse exposée plein sud

Étage :

. Palier desservant 2 grandes chambres, dont :

. Une avec balcon exposé sud

. Une avec WC et lave-mains

Appartement indépendant (environ 26 m² au RDC) :

. Séjour avec coin cuisine

. 1 chambre

. Salle d'eau avec WC

Idéal pour de la location saisonnière ou pour recevoir en toute indépendance.

Dépendances et aménagements :

. Garage attenant avec accès à un grenier aménageable de 70 m² environ

. Beau terrain clos de murs (environ 500 m²) avec portail motorisé

Confort & équipements :

. Fibre installée

. Double vitrage

. Chauffage mixte : climatisation réversible, bois (cheminée), électrique

. Tout-à-l'égout

Une maison de charme, prête à accueillir vos projets personnels ou professionnels dans un cadre paisible et bien desservi.

. 10/25MN DE THIBERVILLE, BROGLIE, BRIONNE, BEAUMESNIL, BEAUMONT-LE-ROGER, LIEUREY, NEUBOURG
. 60MN de CABOURG, HONFLEUR,
. SNCF: DEAUVILLE, TROUVILLE, CAEN, LISIEUX, ROUEN, BERNAY (1H25 PARIS-St LAZARE) SERQUIGNY, CONCHES, EVREUX, MANTES-LA-JOLIE,
. Accès rapide: A28, D613, D438, ................

. UN PROJET IMMOBILIER ? Je suis disponible pour en discuter.

. Contactez Gilles GUYET à CAORCHES-SAINT-NICOLAS (27300) en Normandie, Agent commercial, votre conseiller en immobilier OptimHome (Secteur BERNAY) au [Coordonnées masquées] https://www.optimhome.com/conseillers/guyet

. Les honoraires sont à la charge du vendeur.
Les informations sur les risques auxquels ce bien est exposé sont disponibles sur le site Géorisques : www. georisques. gouv. fr.

Contactez Gilles GUYET Entrepreneur Individuel, Agent commercial OptimHome (RSAC N°429 822 141 Greffe de PONT AUDEMER) [Coordonnées masquées] (réf. 591947 )
Voir plus

Référence: 830037725469
Honoraires à la charge du vendeur.
DPE
A
B
C
D
E
F
G
GES
A
B
C
D
E
F
G

Prêt immobilier

Vous souhaitez connaître votre capacité d’emprunt et trouver le meilleur crédit immobilier ?
Réaliser une simulation gratuite

Maison à BERNAY
Maison à BERNAY
Maison à BERNAY
Maison à BERNAY
Maison à BERNAY
Maison à BERNAY
Maison à BERNAY
Maison à BERNAY
Maison à BERNAY
Maison à BERNAY
Maison à BERNAY
Maison à BERNAY
Maison à BERNAY
Maison à BERNAY
Maison à BERNAY
Maison à BERNAY
Maison à BERNAY
Maison à BERNAY
Maison à BERNAY
Maison à BERNAY
Maison à BERNAY
Maison à BERNAY
Maison à BERNAY
Maison à BERNAY
Ce site est protégé par reCAPTCHA la Politique de confidentialité et les Conditions d’utilisation de Google s’appliquent.
Obtenir un prêt immobilier au meilleur taux ?

En poursuivant votre navigation sans modifier vos paramètres, vous acceptez l'utilisation de cookies susceptibles de réaliser des statistiques de visite. Cliquez ici pour plus d'informations