Bénéficiez des services de nos partenaires locaux soigneusement sélectionnés
pour vous accompagner dans votre parcours d'achat immobilier

Appartement traversant 3 pièces avec balcon et parking - rue saint-sébastien, paris

— Paris-11e 75011 —
820 000 €
71 m²
3 pièces
parkingbalcon/terrasseascenseur

Nos partenaires locaux
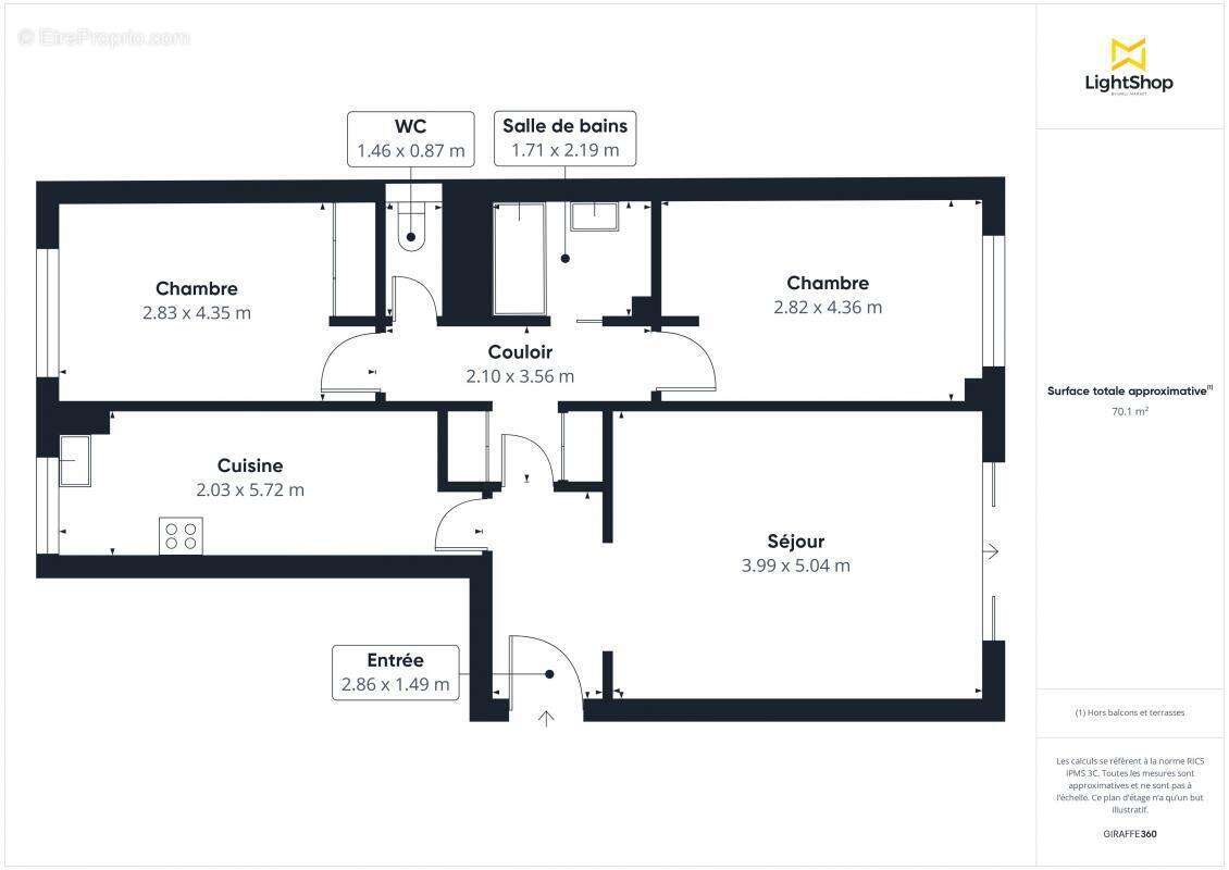
Hosman vous propose à la vente ce bel appartement traversant de 71 m² Carrez, situé au 3ᵉ étage d'un immeuble de 5 étages avec ascenseur, dans une résidence entretenue et sécurisée.

Calme et lumineux grâce à sa double exposition Nord-Sud, l'appartement bénéficie d'un petit balcon, idéal pour profiter de l'extérieur. Le parquet, les volumes équilibrés et la distribution fonctionnelle en font un bien agréable à vivre ! De plus, cet appartement est exceptionnellement calme compte tenu de son isolation et de sa situation entre la cour intérieure de la résidence et le passage Saint-Sébastien (pratiquement aucune circulation).

L'appartement se compose comme suit :
•Une entrée de 4,38 m² (possibilité d'ouverture sur le séjour)
•Un séjour lumineux de 20,4 m² ouvrant sur le balcon, exposé Sud
•Deux chambres spacieuses de 12,4 m² et 12,35 m²
•Une cuisine indépendante et fonctionnelle de 10,65 m²
•Un dégagement de 5,9 m²
•Une salle de bain de 3,72 m²
•Des toilettes séparés

Un parking privatif complète ce bien.
Le chauffage et l'eau chaude sont collectifs. L'appartement est équipé de double vitrage.

La copropriété, en excellent état, ne présente aucun gros travaux à prévoir. Les parties communes, la façade et la toiture sont bien entretenues. Les résidents bénéficient d'une cour intérieure, d'un local vélos/poussettes, d'un gardien et de la fibre optique.

Le quartier offre un cadre de vie agréable avec ses commerces de proximité, ses établissements scolaires et un accès rapide aux transports.

Hosman s'efforce de réinventer l'agence immobilière en offrant un service innovant et transparent aux acheteurs et aux vendeurs. Nos frais d'agence sont de 19900 euros fixes à la charge du vendeur.

Si vous êtes un professionnel de l'immobilier (agent, mandataire ou chasseur immobilier), sachez que toutes les annonces Hosman sont ouvertes à la collaboration. N'hésitez pas à nous contacter pour en discuter.
Voir plus

Référence: 09447c
Bien en copropriété. Charges de copropriété : 206 €.
Honoraires à la charge du vendeur.
DPE
A
B
C
D
E
F
G
GES
A
B
C
D
E
F
G

Prêt immobilier

Vous souhaitez connaître votre capacité d’emprunt et trouver le meilleur crédit immobilier ?
Réaliser une simulation gratuite

Appartement à PARIS-11E
Appartement à PARIS-11E
Appartement à PARIS-11E
Appartement à PARIS-11E
Appartement à PARIS-11E
Appartement à PARIS-11E
Appartement à PARIS-11E
Appartement à PARIS-11E
Appartement à PARIS-11E
Appartement à PARIS-11E
Appartement à PARIS-11E
Appartement à PARIS-11E
Appartement à PARIS-11E
Appartement à PARIS-11E
Appartement à PARIS-11E
Appartement à PARIS-11E
Ce site est protégé par reCAPTCHA la Politique de confidentialité et les Conditions d’utilisation de Google s’appliquent.
Obtenir un prêt immobilier au meilleur taux ?

En poursuivant votre navigation sans modifier vos paramètres, vous acceptez l'utilisation de cookies susceptibles de réaliser des statistiques de visite. Cliquez ici pour plus d'informations