Bénéficiez des services de nos partenaires locaux soigneusement sélectionnés
pour vous accompagner dans votre parcours d'achat immobilier

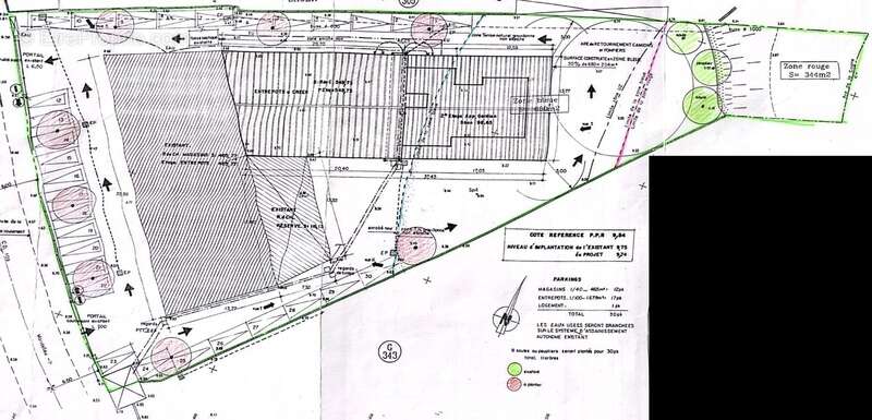
Pegomas, terrain de 2874m2 avec 1025m2 de local commercial

— Mandelieu-La-Napoule 06210 —
3 200 000 €
2 874 m²

Nos partenaires locaux
PEGOMAS proche MANDELIEU, dans une zone industrielle, a 2 km de l'autoroute A8 ( échangeur Cannes la Bocca ou Mandelieu ).

Local commercial de 1025 m2 sur un terrain plat et clos et non inondable de 2874 m2.
Au rez de chaussée : 625 m2 ( hauteur 4.4 m ). Etage : 400 m2.
Possibilité de création de 175 m2 de surface supplémentaire par l'ajout d'une mezzanine.
Possibilité extension de 1500 m2 de surface plancher sur 3 niveaux ( sous-sol, rez de chaussée et étage ) avec logement de gardien de 130 m2. Possibilité de reconstruction de l'existant avec hauteur supplémentaire.

Taxe foncière : 5400 euros Les honoraires sont à la charge du vendeur.
Les informations sur les risques auxquels ce bien est exposé sont disponibles sur le site Géorisques : www. georisques. gouv. fr.

Réseau Immobilier CAPIFRANCE - Votre agent commercial (RSAC N°440 891 729 - Greffe de GRASSE) Anthony TIBIER Entrepreneur Individuel à Responsabilité Limitée [Coordonnées masquées] - Réf.874749
Voir plus

Référence: 340933255714
Honoraires à la charge du vendeur.

Prêt immobilier

Vous souhaitez connaître votre capacité d’emprunt et trouver le meilleur crédit immobilier ?
Réaliser une simulation gratuite

Terrain à MANDELIEU-LA-NAPOULE
Terrain à MANDELIEU-LA-NAPOULE
Ce site est protégé par reCAPTCHA la Politique de confidentialité et les Conditions d’utilisation de Google s’appliquent.
Obtenir un prêt immobilier au meilleur taux ?

En poursuivant votre navigation sans modifier vos paramètres, vous acceptez l'utilisation de cookies susceptibles de réaliser des statistiques de visite. Cliquez ici pour plus d'informations