Bénéficiez des services de nos partenaires locaux soigneusement sélectionnés
pour vous accompagner dans votre parcours d'achat immobilier

Plateau croix-rousse - villa 332 m² - sous-sol - garage

— Lyon-4e 69004 —
1 540 000 €
332 m² / 400 m²
8 pièces
parkingbalcon/terrassejardinascenseur

Nos partenaires locaux
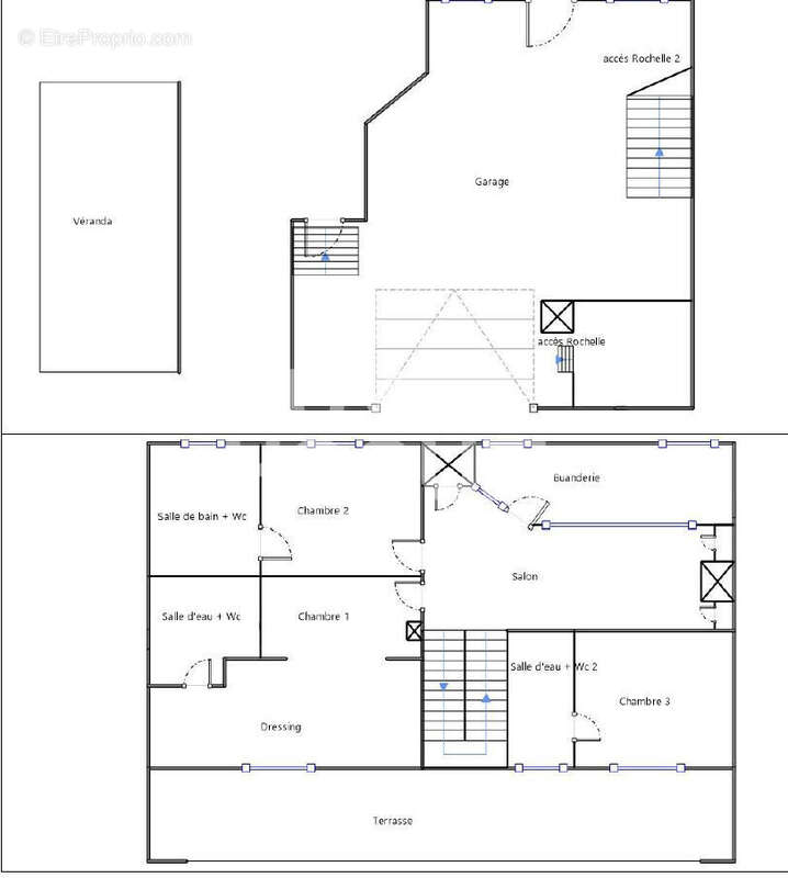
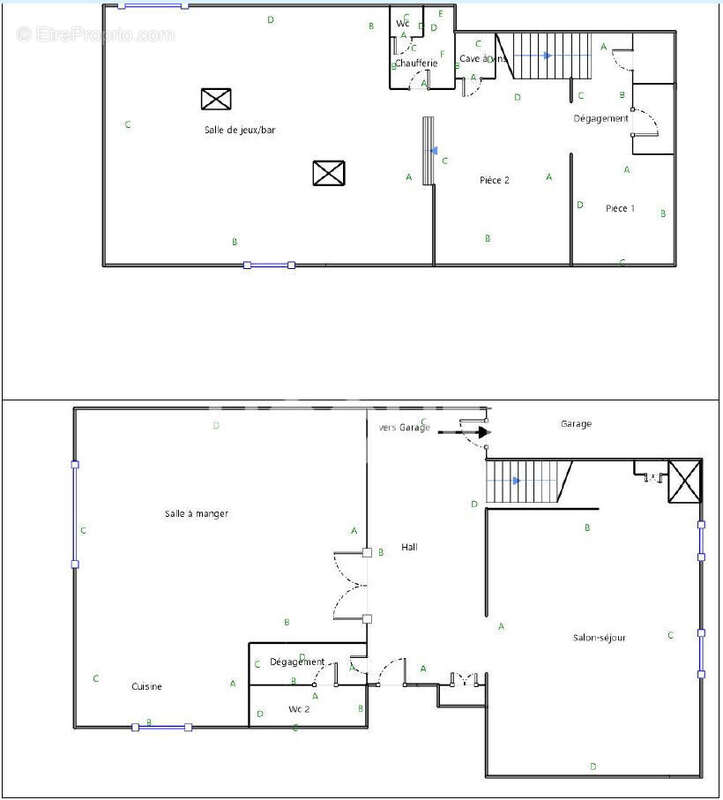
Votre agence Guy Hoquet, forte de ses 26 années d'expérience sur le marche immobilier Croix-Roussien, est fière de vous présenter ce bien rare à la vente. Idéalement située à quelques pas du Boulevard et de toutes les commodités, cette maison datant des années 1920 a été entièrement repensée, et agrandie en 2017. avec des prestations haut de gamme ainsi qu'un ascenseur ( norme PMR) desservant les 3 niveaux principaux. Cette maison développe 332 m² carrez dont 105 m² au sous-sol plus un garage de 80 m². Le rez de chaussée vous offre de magnifiques volumes avec un espace salon/détente et un espace séjour/cuisine ouvrant sur le jardin plein Sud et sa spacieuse terrasse abritée par une véranda bioclimatique ( Grofilex) . Au 1er étage, vous disposerez de 3 chambres dont une suite de près de 40 m², disposant d'un vaste dressing et d'une salle de douche avec WC ouvrant sur la terrasse de 48 m². La seconde chambre dispose également d'une salle d'eau et de WC avec un accès à la terrasse.. La 3eme chambre bénéfice d'une salle de bain avec baignoire à remous et WC. Sur ce même niveau, vous aurez à votre disposition un espace salon/détente avec cheminée. ainsi que d'une spacieuse buanderie avec verrière industrielle. Au 2eme étage, les combles ont été aménagées en un espace bureau de plus de 40 m² au sol ( pouvant faire office de 4eme chambre). Le sous-sol de plus de 100m² accueille une salle de jeu avec une cuisine façon bar, une cave à vin, la chaufferie, un WC ainsi que des rangements. Enfin, pour stationner vos véhicules, vous disposerez d'un garage de près de 80 m². avec une mezzanine de 28 m². -Climatisation en gainage pour toute la maison par pompe à chaleur AIR/AIR -Climatisation par SPIT associée à pompe à Chaleur AIR/AIR réversible pour le garage et le sous sol -Production EAU CHAUDE SANITAIRE par Pompe à chaleur. -Domotique sur toute la partie éclairage intérieur (y compris LED du SALON, et extérieur, ---portail et porte du garage) commandable depuis téléphone portable - 2 Alimentation prévues dans le garage pour chargeur électrique voiture monophasé 12 kw - caméras en réseau privé (pas d'opérateur) avec visu sur téléphone portable - ascenseur automatique sur 3 niveaux - huisseries double-vitrage avec BSO électriques. DPE : A GES: A Ce bien unique est à visiter rapidement ! J'attends votre appel au : [Coordonnées masquées] [Coordonnées masquées] Elisabeth PORE N°RSAC 939 028 353 R.S.A.C. Lyon " les informations sur les risques auxquels ce bien est exposé sont disponibles sur le site Géorisques : www.georisques.gouv.f
Voir plus

Référence: 2773
Honoraires à la charge du vendeur.
Barème des honoraires
DPE
A
B
C
D
E
F
G
GES
A
B
C
D
E
F
G

Prêt immobilier

Vous souhaitez connaître votre capacité d’emprunt et trouver le meilleur crédit immobilier ?
Réaliser une simulation gratuite

Maison à LYON-4E
Maison à LYON-4E
Maison à LYON-4E
Maison à LYON-4E
Maison à LYON-4E
Maison à LYON-4E
Maison à LYON-4E
Maison à LYON-4E
Maison à LYON-4E
Maison à LYON-4E
Maison à LYON-4E
Maison à LYON-4E
Maison à LYON-4E
Maison à LYON-4E
Maison à LYON-4E
Maison à LYON-4E
Maison à LYON-4E
Maison à LYON-4E
Ce site est protégé par reCAPTCHA la Politique de confidentialité et les Conditions d’utilisation de Google s’appliquent.
Obtenir un prêt immobilier au meilleur taux ?

En poursuivant votre navigation sans modifier vos paramètres, vous acceptez l'utilisation de cookies susceptibles de réaliser des statistiques de visite. Cliquez ici pour plus d'informations