Bénéficiez des services de nos partenaires locaux soigneusement sélectionnés
pour vous accompagner dans votre parcours d'achat immobilier

Boulogne nord - jb clément - 3 pièces

— Boulogne-Billancourt 92100 —
465 000 €
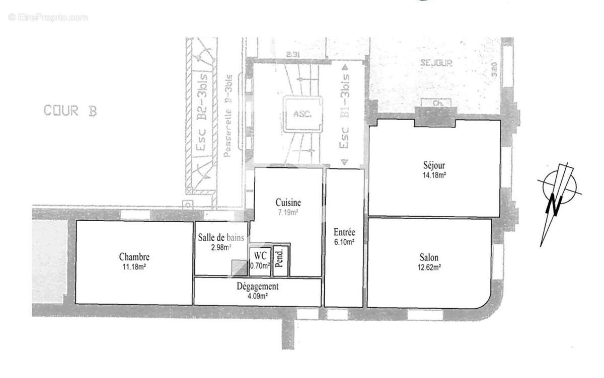
60 m²
3 pièces
ascenseur

Nos partenaires locaux
Appartement 3 pièces à Boulogne-Billancourt Découvrez cet appartement de 60 m² situé avenue Jean-Baptiste Clément. Idéalement situé dans une rue commerçante et à proximité du Bois de Boulogne, cet appartement offre un accès rapide au métro Jean Jaurès. Caractéristiques : 3 pièces dont 2 chambres Surface habitable d'environ 60 m² Résidence sécurisée avec gardien très agréable Proximité des commodités et des transports en commun A noter : l'appartement nécessite des travaux pour devenir votre futur cocon familial, il a beaucoup de potentiel Une cave complète ce bien. DPE F améliorable (4.97 % honoraires TTC à la charge de l'acquéreur.) Copropriété de 419 lots - dont 207 lots habitation. (Pas de procédure en cours). Charges annuelles : 2600 euros.
Voir plus

Référence: 756
Bien en copropriété. Nombre de lots : 419. Charges de copropriété : 2600 €.
Honoraires d'agence de 4.97% à la charge de l'acquéreur
Barème des honoraires
DPE
A
B
C
D
E
F
G
GES
A
B
C
D
E
F
G

Prêt immobilier

Vous souhaitez connaître votre capacité d’emprunt et trouver le meilleur crédit immobilier ?
Réaliser une simulation gratuite

Appartement à BOULOGNE-BILLANCOURT
Appartement à BOULOGNE-BILLANCOURT
Appartement à BOULOGNE-BILLANCOURT
Appartement à BOULOGNE-BILLANCOURT
Appartement à BOULOGNE-BILLANCOURT
Appartement à BOULOGNE-BILLANCOURT
Appartement à BOULOGNE-BILLANCOURT
Appartement à BOULOGNE-BILLANCOURT
Appartement à BOULOGNE-BILLANCOURT
Appartement à BOULOGNE-BILLANCOURT
Appartement à BOULOGNE-BILLANCOURT
Appartement à BOULOGNE-BILLANCOURT
Ce site est protégé par reCAPTCHA la Politique de confidentialité et les Conditions d’utilisation de Google s’appliquent.
Obtenir un prêt immobilier au meilleur taux ?

En poursuivant votre navigation sans modifier vos paramètres, vous acceptez l'utilisation de cookies susceptibles de réaliser des statistiques de visite. Cliquez ici pour plus d'informations