Bénéficiez des services de nos partenaires locaux soigneusement sélectionnés
pour vous accompagner dans votre parcours d'achat immobilier

Terrain 11204m² à bellebat

— Bellebat 33760 —
79 000 €
11 204 m²

Nos partenaires locaux
Iad France - Bruno Baudelet vous propose : Terrain avec possibilité de bâtir une maison sur l'emprise existante (ruine ). Réseaux d'eau et d'électricité présents au bord du terrain. Assainissement individuel à prévoir.
Le tout composé d'un prés et bois ce qui représente 11 000 m² de surface.
Un permis de construire a été déposé et accordé. Mais vous disposez bien sûr de la liberté de créer votre propre projet.
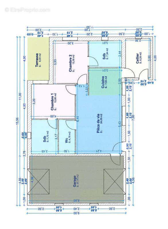
Le permis accordé autorise un extension de 86,72 m² par rapport à l'emprise existante, portant à 150,04 m² l'emprise nouvelle (voir plan de masse ).
Porte-de-Benauge n'a pas de PLU. La commune est soumise à une carte communale. Terrain situé en zone N.

Honoraires d'agence à la charge du vendeur.
Bien non soumis au DPE. Les informations sur les risques auxquels ce bien est exposé, y compris l'obligation légale de débroussaillement, sont disponibles sur le site Géorisques : http://www.georisques.gouv.fr.
La présente annonce immobilière a été rédigée sous la responsabilité éditoriale de M Bruno Baudelet mandataire indépendant en immobilier (sans détention de fonds), agent commercial de la SAS I@D France immatriculé au RSAC de BORDEAUX sous le numéro 838789600, titulaire de la carte de démarchage immobilier pour le compte de la société I@D France SAS.
Informations LOI ALUR :
Honoraires charge vendeur. (gedeon_6727_31886597)
Voir plus

Référence: 1844703
Honoraires à la charge du vendeur.

Prêt immobilier

Vous souhaitez connaître votre capacité d’emprunt et trouver le meilleur crédit immobilier ?
Réaliser une simulation gratuite

Photo 1 - Terrain à BELLEBAT
Photo 1
Photo 2 - Terrain à BELLEBAT
Photo 2
Photo 3 - Terrain à BELLEBAT
Photo 3
Photo 4 - Terrain à BELLEBAT
Photo 4
Photo 5 - Terrain à BELLEBAT
Photo 5
Photo 6 - Terrain à BELLEBAT
Photo 6
Photo 7 - Terrain à BELLEBAT
Photo 7
Photo 8 - Terrain à BELLEBAT
Photo 8
Photo 9 - Terrain à BELLEBAT
Photo 9
Ce site est protégé par reCAPTCHA la Politique de confidentialité et les Conditions d’utilisation de Google s’appliquent.
Obtenir un prêt immobilier au meilleur taux ?

En poursuivant votre navigation sans modifier vos paramètres, vous acceptez l'utilisation de cookies susceptibles de réaliser des statistiques de visite. Cliquez ici pour plus d'informations