Bénéficiez des services de nos partenaires locaux soigneusement sélectionnés
pour vous accompagner dans votre parcours d'achat immobilier

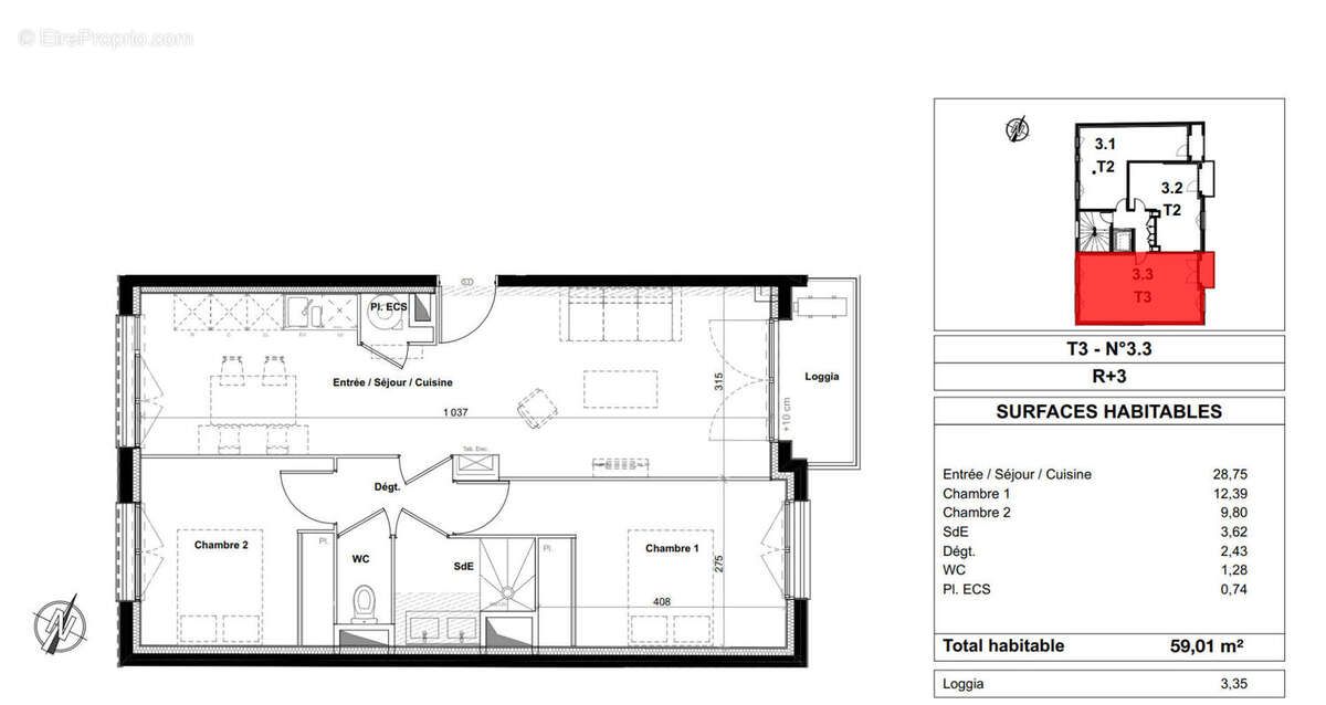
Appartement t3 - 59m2 - saint-cyprien

— Toulouse 31300 —
350 000 €
59 m²
3 pièces
balcon/terrasseascenseur

Nos partenaires locaux
Magnifique Appartement T3 de 59m2 situé dans le quartier de Saint-Cyprien. L'appartement dispose d'une loggia avec une exposition plein Est. Un grand séjour/cuisine traversant de 29m2. L'appartement vous offre deux belles chambres, une salle d'eau et wc. Belles Prestations : Peinture lisse, parquet stratifié dans toutes les pièces (sauf pièces humides), chauffage électrique, volets roulants électriques. N'hésitez pas à me contacter, d'autres appartements sont disponibles. [Coordonnées masquées] [Coordonnées masquées]
Voir plus

Barème des honoraires
DPE
A
B
C
D
E
F
G

Prêt immobilier

Vous souhaitez connaître votre capacité d’emprunt et trouver le meilleur crédit immobilier ?
Réaliser une simulation gratuite

Appartement à TOULOUSE
Appartement à TOULOUSE
Appartement à TOULOUSE
Appartement à TOULOUSE
Appartement à TOULOUSE
Ce site est protégé par reCAPTCHA la Politique de confidentialité et les Conditions d’utilisation de Google s’appliquent.
Obtenir un prêt immobilier au meilleur taux ?

En poursuivant votre navigation sans modifier vos paramètres, vous acceptez l'utilisation de cookies susceptibles de réaliser des statistiques de visite. Cliquez ici pour plus d'informations