Bénéficiez des services de nos partenaires locaux soigneusement sélectionnés
pour vous accompagner dans votre parcours d'achat immobilier

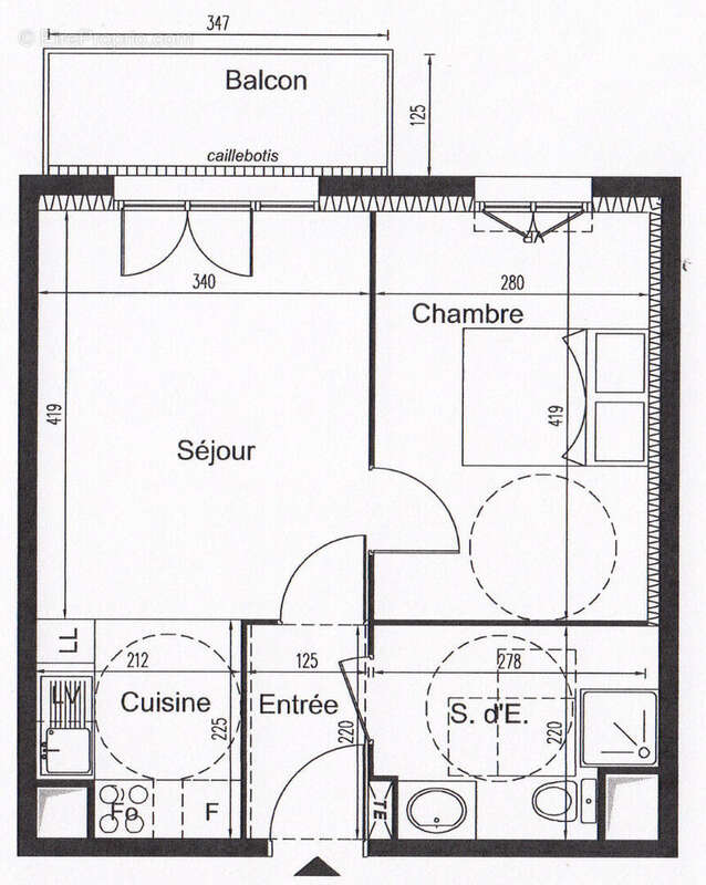
2 pièces special investisseur 39m²

— Combs-La-Ville 77380 —
166 420 €
39 m²
2 pièces
parkingascenseur

Nos partenaires locaux
A vendre appartement de 39m² déjà loué et locataires à jour de loyers. Situé dans un environnement verdoyant à faible circulation et sans vis à vis. Pièces de vie de 18m² avec cuisine aménagée ouverte, salle d 'eau moderne avec douche à l''italienne, meuble vasque et WC aux normes PMR. ATOUTS investisseurs: - Bien déjà loué ( loyer actuel : 749 euros / mois ) -Bon rapport locatif - Aucun gros travaux à prévoir Un actif clé en mains, fonctionnel, recherché et rentable - parfait pour développer ou sécuriser un porte feuille locatif. Copropriété de 184 lots - dont 95 lots habitation. (Pas de procédure en cours). Charges annuelles : 1200 euros.
Voir plus

Bien en copropriété. Nombre de lots : 184. Charges de copropriété : 1200 €.
Honoraires à la charge du vendeur.
Barème des honoraires
DPE
A
B
C
D
E
F
G
GES
A
B
C
D
E
F
G

Prêt immobilier

Vous souhaitez connaître votre capacité d’emprunt et trouver le meilleur crédit immobilier ?
Réaliser une simulation gratuite

Appartement à COMBS-LA-VILLE
Appartement à COMBS-LA-VILLE
Appartement à COMBS-LA-VILLE
Appartement à COMBS-LA-VILLE
Appartement à COMBS-LA-VILLE
Appartement à COMBS-LA-VILLE
Appartement à COMBS-LA-VILLE
Appartement à COMBS-LA-VILLE
Appartement à COMBS-LA-VILLE
Appartement à COMBS-LA-VILLE
Ce site est protégé par reCAPTCHA la Politique de confidentialité et les Conditions d’utilisation de Google s’appliquent.
Obtenir un prêt immobilier au meilleur taux ?

En poursuivant votre navigation sans modifier vos paramètres, vous acceptez l'utilisation de cookies susceptibles de réaliser des statistiques de visite. Cliquez ici pour plus d'informations