Bénéficiez des services de nos partenaires locaux soigneusement sélectionnés
pour vous accompagner dans votre parcours d'achat immobilier

Maison peyrieu 5 pièces 126.08 m2

— Peyrieu 01300 —
380 000 €
126 m² / 2 442 m²
6 pièces
parkingjardin

Nos partenaires locaux
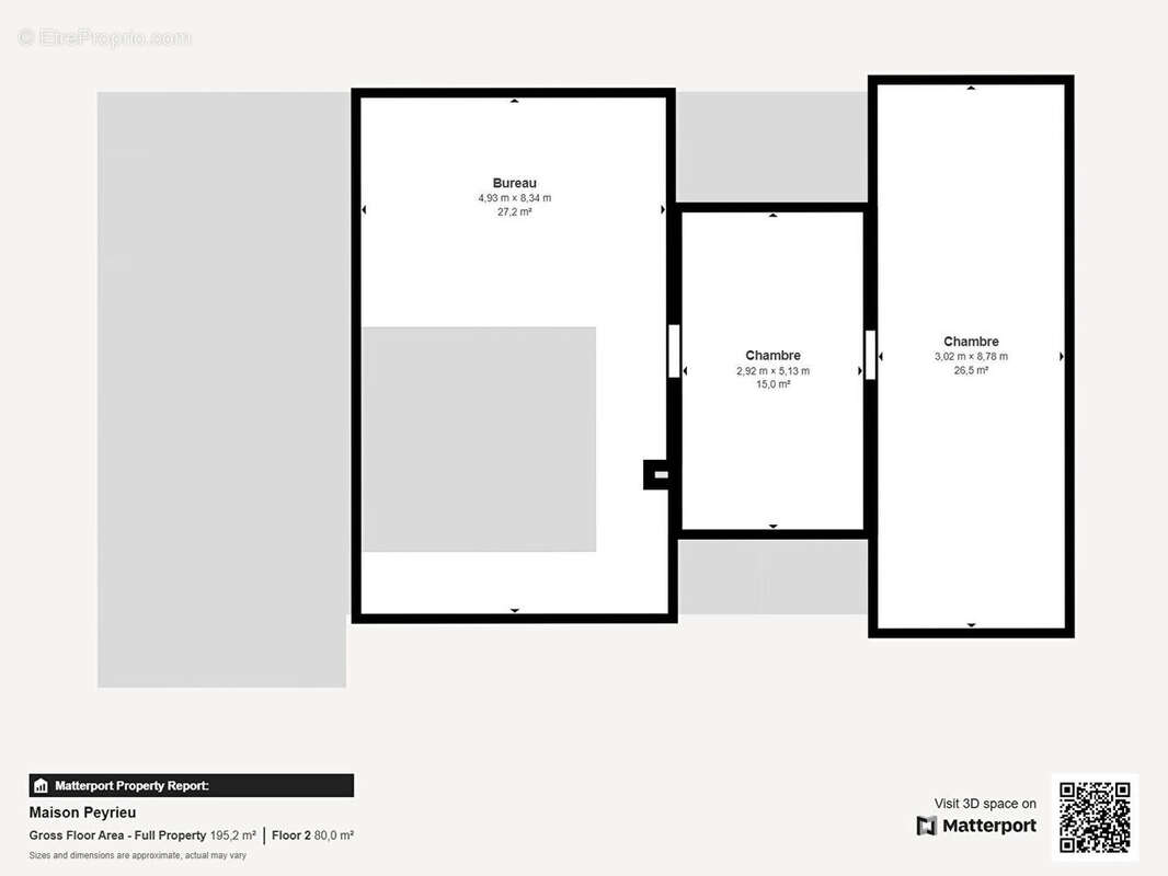
Située à 13 min de YENNE, sur la commune de PEYRIEU, cette maison de 2002 offre une surface de 126 m² sur un terrain plat, clos et arboré de 1200 m2, dans un secteur calme proche du centre-village. Elle se compose d'un séjour cathédrale avec cuisine ouverte, bénéficiant d'une belle luminosité et d'un accès direct à une terrasse orientée plein sud. L'espace nuit comprend trois chambres au rez de chaussée avec une salle de bain et WC, et à l'étage un bureau et deux chambres supplémentaires (dont une à aménager). Un garage attenant, un cellier et un garage indépendant complètent cette jolie propriété. Côté confort, une cheminée insert vient compléter le chauffage principal, apportant une chaleur agréable et conviviale en hiver, ainsi qu'un DPE C flatteur. Le grand terrain pourra accueillir des animaux dans le plus grand confort (cheval, chiens, poulailler, etc). Idéalement placée, elle offre un cadre de vie agréable dans une impasse, au calme, tout en restant à proximité des écoles et axes routiers, à 10 min de Belley ou Yenne, 20 min de l'autoroute A43, et 40 min de Chambéry. Estimation des coûts annuels : entre 1550 euros et 2160 euros par an. Prix moyens des énergies indexés au 1er janvier 2021. Les informations sur les risques auxquels ce bien est exposé sont disponibles sur le site Géorisques : www.georisques.gouv.fr Cette maison vous est présentée à l'achat par votre agence Stéphane Plaza Immobilier Rumilly. Pour tout complément d'information, contactez Marie-Carmen RODRIGUEZ au [Coordonnées masquées] ref WB202 Marie-Carmen RODRIGUEZ (EI) Agent Commercial - Numéro RSAC : 484017231 - Bourg en Bresse.
Voir plus

Référence: 77
Honoraires à la charge du vendeur.
Barème des honoraires
DPE
A
B
C
D
E
F
G
GES
A
B
C
D
E
F
G

Prêt immobilier

Vous souhaitez connaître votre capacité d’emprunt et trouver le meilleur crédit immobilier ?
Réaliser une simulation gratuite

Maison à PEYRIEU
Maison à PEYRIEU
Maison à PEYRIEU
Maison à PEYRIEU
Maison à PEYRIEU
Maison à PEYRIEU
Maison à PEYRIEU
Maison à PEYRIEU
Maison à PEYRIEU
Maison à PEYRIEU
Maison à PEYRIEU
Maison à PEYRIEU
Maison à PEYRIEU
Maison à PEYRIEU
Maison à PEYRIEU
Maison à PEYRIEU
Maison à PEYRIEU
Maison à PEYRIEU
Ce site est protégé par reCAPTCHA la Politique de confidentialité et les Conditions d’utilisation de Google s’appliquent.
Obtenir un prêt immobilier au meilleur taux ?

En poursuivant votre navigation sans modifier vos paramètres, vous acceptez l'utilisation de cookies susceptibles de réaliser des statistiques de visite. Cliquez ici pour plus d'informations