Bénéficiez des services de nos partenaires locaux soigneusement sélectionnés
pour vous accompagner dans votre parcours d'achat immobilier

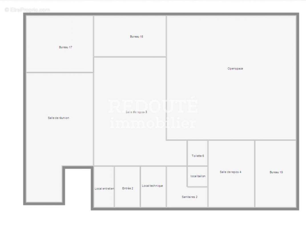
A vendre bureaux env 250m2 reims betheny

— Betheny 51450 —
396 000 €
250 m²
5 pièces

Nos partenaires locaux
A Vendre secteur Reims Betheny un plateau à usage de bureaux en bon état composé d'un grand espace d'accueil et détente, un très agréable open space, salle de repos, salle de réunion et 2 bureaux individuels. Ce bien développe environ 250m2 au 1er étage. Rénovation récente. Disponibilité début 2026 à confirmer.

Pour plus d'informations sur ce bien et pour le visiter rapidement, n'hésitez pas à contacter Jérôme BUAT (Agent commercial RSAC REIMS 794 606 707) au [Coordonnées masquées] ou à l'adresse [Coordonnées masquées] .

Prix de vente : 396.000,00€ FAI Honoraires charge vendeur.

Les informations sur les risques auxquels ce bien est exposé sont disponibles sur le site Géorisques du gouvernement. www.georisques.gouv.fr.
Voir plus

Référence: 12465
Bien en copropriété.
Honoraires à la charge du vendeur.

Prêt immobilier

Vous souhaitez connaître votre capacité d’emprunt et trouver le meilleur crédit immobilier ?
Réaliser une simulation gratuite

Commerce à BETHENY
Commerce à BETHENY
Commerce à BETHENY
Commerce à BETHENY
Commerce à BETHENY
Commerce à BETHENY
Commerce à BETHENY
Commerce à BETHENY
Ce site est protégé par reCAPTCHA la Politique de confidentialité et les Conditions d’utilisation de Google s’appliquent.
Obtenir un prêt immobilier au meilleur taux ?

En poursuivant votre navigation sans modifier vos paramètres, vous acceptez l'utilisation de cookies susceptibles de réaliser des statistiques de visite. Cliquez ici pour plus d'informations