Bénéficiez des services de nos partenaires locaux soigneusement sélectionnés
pour vous accompagner dans votre parcours d'achat immobilier

Maison de ville 5 chambres tres lumineuse

— Marseille-4e 13004 —
459 000 €
156 m² / 146 m²
7 pièces
parkingbalcon/terrassejardin

Nos partenaires locaux
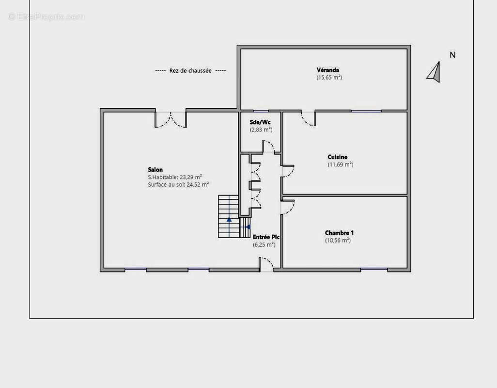
Rare a la vente, Maison de ville très lumineuse, T6 de caractère au calme, sur une parcelle de 146m2, sur 2 niveaux, surface habitable totale : 111,26m2 Loi Carrez, surface au sol : 155,86m2.
En RDC, Salon séjour avec cheminée ouvert sur la terrasse, cuisine équipée ouverte sur la véranda de plus de 15m2, une chambre, une salle d'eau (Douche et WC). Nombreux rangements.
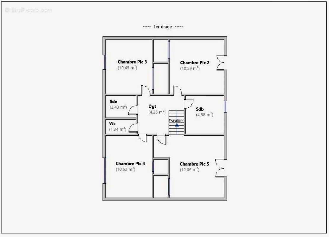
A l'étage, 4 chambres équipées de placards, une salle de bain (Baignoire), WC séparé et une salle d'eau. Possibilité de stationner 2 véhicules à l'intérieur.
Deux belles caves carrelées d'environ 27m2 viennent compléter ce bien. Idéal grande famille. Proche de toutes commodités : commerces, Transports en commun et axes autoroutiers. A voir rapidement!!!. [Coordonnées masquées] Colette Combes. Honoraires à la charge du vendeur.
Les informations sur les risques auxquels ce bien est exposé sont disponibles sur le site Géorisques https://www.georisques.gouv.fr
Voir plus

Référence: 16880
Honoraires à la charge du vendeur.
Barème des honoraires
DPE
A
B
C
D
E
F
G
GES
A
B
C
D
E
F
G

Prêt immobilier

Vous souhaitez connaître votre capacité d’emprunt et trouver le meilleur crédit immobilier ?
Réaliser une simulation gratuite

Maison à MARSEILLE-4E
Maison à MARSEILLE-4E
Maison à MARSEILLE-4E
Maison à MARSEILLE-4E
Maison à MARSEILLE-4E
Maison à MARSEILLE-4E
Maison à MARSEILLE-4E
Maison à MARSEILLE-4E
Maison à MARSEILLE-4E
Maison à MARSEILLE-4E
Maison à MARSEILLE-4E
Maison à MARSEILLE-4E
Maison à MARSEILLE-4E
Maison à MARSEILLE-4E
Maison à MARSEILLE-4E
Maison à MARSEILLE-4E
Maison à MARSEILLE-4E
Maison à MARSEILLE-4E
Ce site est protégé par reCAPTCHA la Politique de confidentialité et les Conditions d’utilisation de Google s’appliquent.
Obtenir un prêt immobilier au meilleur taux ?

En poursuivant votre navigation sans modifier vos paramètres, vous acceptez l'utilisation de cookies susceptibles de réaliser des statistiques de visite. Cliquez ici pour plus d'informations