Maison 119m² à bain-de-bretagne

— Bain-De-Bretagne 35470 —
189 000 €
119 m² / 400 m²
7 pièces
parking

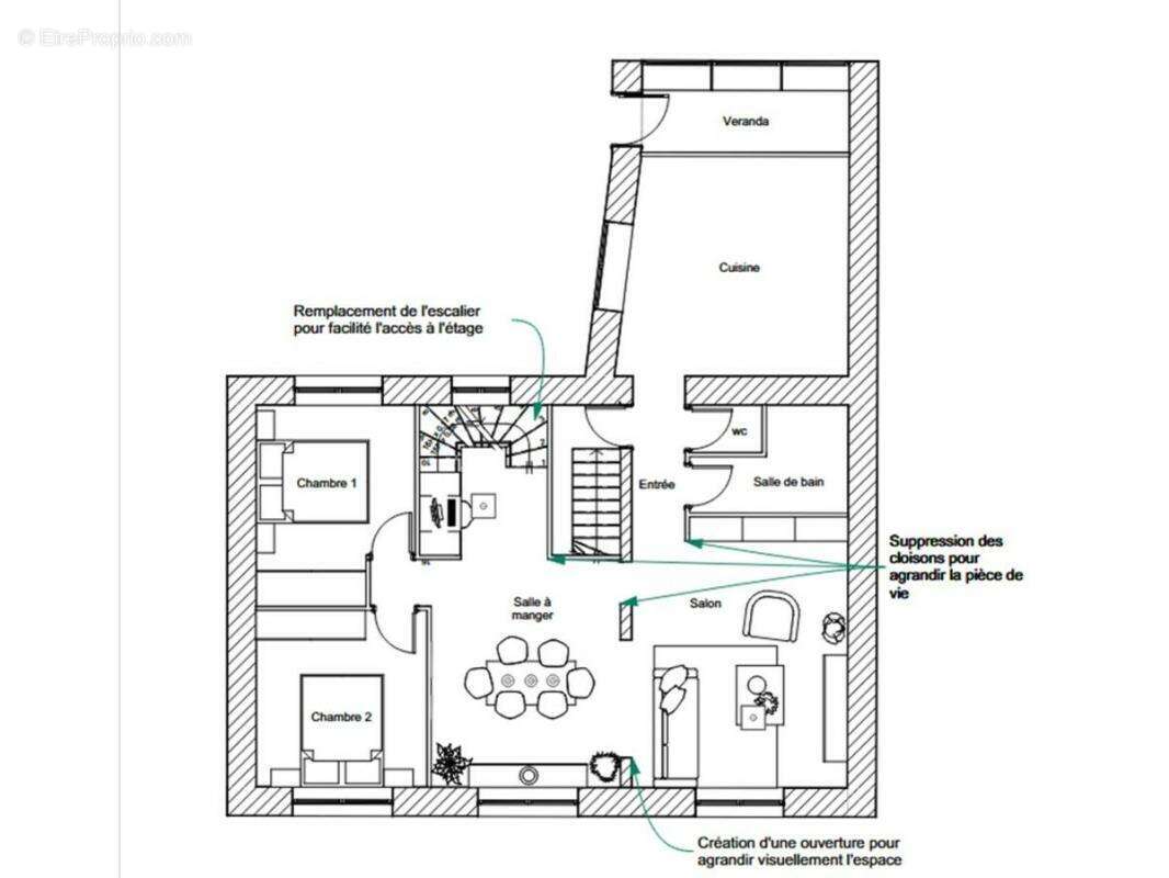
Bain de Bretagne,35470, MAISON DE VILLE DE 120 M2 à BAIN DE BRETAGNE, centre. Maison proche de tous commerces dans une rue calme avec garage et jardin de 400 m2 à l'arrière Maison offrant de nombreuses possibilités d'aménagement. Au RdC: belle pièce de près de 21 m2 avec sa salle d'eau pouvant être facilement transformée en studio avec son entrée indépendante . garage, chaufferie et atelier. Au 1 er étage : cuisine de 14 m2 prolongée par une véranda, séjour de 16 m2, 3 chambres de 9 m2 environ,1 bureau,salle de bains et wc séparé. Au 2 ème étage : 2 ème salle de bains, 3 petites chambres ou bureaux/ salles de jeux Vous disposez également d'une cave et d'un abri de jardin Le terrain de 300 m2 à l'arrière est clôturé et très calme. La maison est équipée d'une pompe à chaleur, faible consommations énergétiques, classée B Idéal pour famille ou investisseur grâce au potentiel locatif (cf possibilité studio indépendant) Vous trouverez à la suite des photos, des suggestions de réorganisation et d'aménagements préconisées par une architecte d'intérieur. BELLE OPPORTUNITÉ A SAISIR POUR UNE FAMILLE OU/ET UN INVESTISSEUR Le prix indiqué comprend les honoraires de négociation qui se montent à 5% TTC du prix affiché, ces honoraires sont à la charge exclusive de l'acquéreur. DPE: 92, soit B, GES: 3, soit A. Guy PEUZE, Agent Commercial immatriculé au RSAC de RENNES sous le numéro 93288673200019 - A la lucarne de l'immobilier - Ref. 84518
Voir plus

Référence: 84518
Honoraires d'agence de 5% à la charge de l'acquéreur
DPE
A
B
C
D
E
F
G
GES
A
B
C
D
E
F
G

Prêt immobilier

Vous souhaitez connaître votre capacité d’emprunt et trouver le meilleur crédit immobilier ?
Réaliser une simulation gratuite

Maison à BAIN-DE-BRETAGNE
Maison à BAIN-DE-BRETAGNE
Maison à BAIN-DE-BRETAGNE
Maison à BAIN-DE-BRETAGNE
Maison à BAIN-DE-BRETAGNE
Maison à BAIN-DE-BRETAGNE
Maison à BAIN-DE-BRETAGNE
Maison à BAIN-DE-BRETAGNE
Maison à BAIN-DE-BRETAGNE
Maison à BAIN-DE-BRETAGNE
Maison à BAIN-DE-BRETAGNE
Maison à BAIN-DE-BRETAGNE
Maison à BAIN-DE-BRETAGNE
Maison à BAIN-DE-BRETAGNE
Maison à BAIN-DE-BRETAGNE
Maison à BAIN-DE-BRETAGNE
Maison à BAIN-DE-BRETAGNE
Maison à BAIN-DE-BRETAGNE
Ce site est protégé par reCAPTCHA la Politique de confidentialité et les Conditions d’utilisation de Google s’appliquent.
Obtenir un prêt immobilier au meilleur taux ?

En poursuivant votre navigation sans modifier vos paramètres, vous acceptez l'utilisation de cookies susceptibles de réaliser des statistiques de visite. Cliquez ici pour plus d'informations