Maison 130m² à saint-uze

— Saint-Uze 26240 —
120 000 €
130 m² / 600 m²
3 pièces
parkingbalcon/terrasse

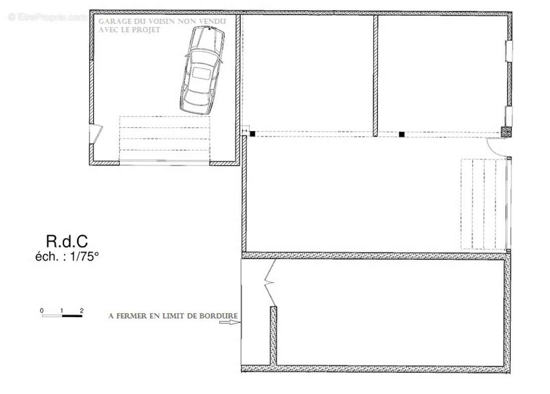
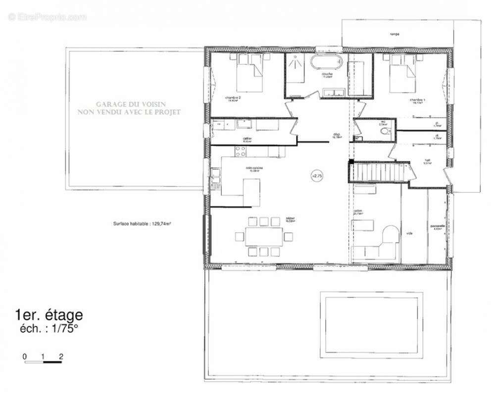
26240 SAINT-UZE – EN EXCLUSIVITE – EXEMPLE DE PROJET DE MAISON MODERNE A REALISER – 3 PIÈCES – POSSIBILITE 3-4 CHAMBRES – 130M² HABITABLES AVEC SUPERFICIE IDENTIQUE EN SOUS SOL – STATIONNEMENTS AISES – SUR TERRAIN 600M² – GARE TGV VALENCE 30MIN
Un hangar à transformer en une maison d'exception !
efficity, l'agence qui estime votre bien en ligne, vous propose de découvrir en EXCLUSIVITE avec Raphaël Deloche, cette belle opportunité de transformation : un hangar à réhabiliter en spacieuse maison, style loft contemporain, de 130 m² en R+1, avec accès PMR, et offrant la même surface aménageable en rez-de-chaussée. Situé à l'entrée de la commune de Saint-Uze, au nord de la Drôme, proche des commodités du village, territoire recherché pour son cadre de vie paisible et son climat agréable, aux portes de la région Sud. Ce bâti constitue une base idéale pour un projet de vie unique et atypique, mariant cachet industriel et confort moderne. Son implantation permet d'imaginer un agencement optimisé, avec de beaux volumes, une pièce de vie lumineuse, des espaces de nuit agréables, et une belle terrasse en hauteur profitant d'un champ de vision dégagé. De plus, celui-ci bénéficie déjà d'éléments en place facilitant votre projet : les VRD jusqu'en limite de parcelle, et fondations solides de 50 cm déjà existantes. Le terrain, d'environ 600m², quant à lui, ne demande que très peu d'entretien tout en offrant un stationnement aisé pour plusieurs véhicules. Enfin, ce projet est une invitation à créer un habitat sur mesure, adapté à vos envies et à votre style de vie.
Le prix de 120.000€ comprend le terrain avec le bâti du hangar existant...le projet de transformation est libre constructeur et reste à votre charge et à votre convenance.

Pour un projet de regroupement familial, ou autre...il y a possibilité d'acquérir le terrain à bâtir de 800m² juste à côté...soit un total de 1.400m² :
- https://www.efficity.com/achat-immobilier/terrain_800-m2_saint-uze_26240_28013037/

Un atout majeur de ce bien ? Son accessibilité parfaite :
À seulement 1 heure de Lyon et Saint-Étienne, parfait pour une résidence principale ou secondaire avec un accès rapide aux grands pôles économiques.
La gare SNCF à 10 minutes et la gare TGV de Valence à 30 minutes, permettant de rejoindre Paris en seulement 2h30.
Un cadre de vie idéal, entre la douceur du climat drômois et la proximité des montagnes et des vignobles, parfait pour les amateurs de nature et d'authenticité.
Une opportunité rare pour créer un loft sur mesure, dans un environnement où il fait bon vivre, sans renoncer à la connectivité.
Pour plus d'informations, contactez Raphaël Deloche par téléphone ou par mail.
Les informations sur les risques auxquels ce bien est exposé sont disponibles sur le site Georisque : georisques. gouv. fr
Raphaël Deloche - EI - est Agent Commercial mandataire en immobilier, immatriculé au Registre Spécial des Agents Commerciaux du Tribunal de Commerce de Avignon sous le n°850822784.
Siège social du mandant : effiCity, 48 avenue de Villiers - 75017 PARIS - Société par Actions Simplifiée, société au capital de 132 373,05 euros, immatriculée au RCS Paris 497 617 746 et titulaire de la Carte professionnelle CPI 75[Coordonnées masquées]02 025 - CCI Paris IDF - Caisse de Garantie : GALIAN Assurances 89 rue de la Boétie 75008 Paris
Voir plus

Référence: 194248
Honoraires à la charge du vendeur.
Barème des honoraires
DPE
A
B
C
D
E
F
G
GES
A
B
C
D
E
F
G

Prêt immobilier

Vous souhaitez connaître votre capacité d’emprunt et trouver le meilleur crédit immobilier ?
Réaliser une simulation gratuite

Maison à SAINT-UZE
Maison à SAINT-UZE
Maison à SAINT-UZE
Maison à SAINT-UZE
Maison à SAINT-UZE
Maison à SAINT-UZE
Maison à SAINT-UZE
Maison à SAINT-UZE
Ce site est protégé par reCAPTCHA la Politique de confidentialité et les Conditions d’utilisation de Google s’appliquent.
Obtenir un prêt immobilier au meilleur taux ?

En poursuivant votre navigation sans modifier vos paramètres, vous acceptez l'utilisation de cookies susceptibles de réaliser des statistiques de visite. Cliquez ici pour plus d'informations