Bénéficiez des services de nos partenaires locaux soigneusement sélectionnés
pour vous accompagner dans votre parcours d'achat immobilier

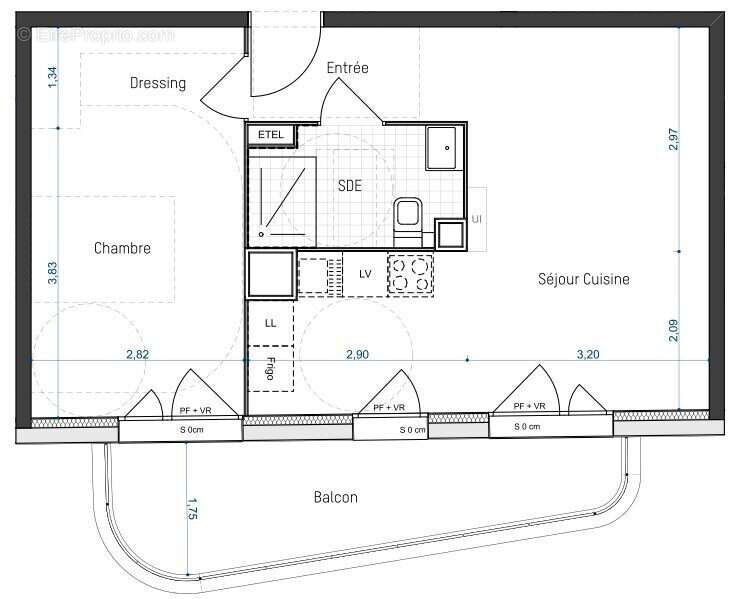
Appartement 45m² à artigues-pres-bordeaux

— Artigues-Pres-Bordeaux 33370 —
190 000 €
45 m²
2 pièces
parkingbalcon/terrasseascenseur

Nos partenaires locaux
DU CONFORT EN COEUR DE VILLE

Idéalement situé, à proximité de la mairie, de son parc arboré et au sein d'une jolie résidence à taille humaine, venez découvrir ce bel appartement T2 de 45m2.

Il se compose d'une spacieuse pièce de vie de 25m2, très lumineuse grâce à ses deux ouvertures sur sa terrasse de 10m2 exposée Ouest.
Côté nuit, vous disposerez d'une chambre avec dressing ainsi que d'une salle d'eau avec WC.

Une place de parking sécurisée en sous-sol complète ce bien en sus obligatoire (20 000€).

- Frais de notaire OFFERTS
- Garanties
- Exonération de Taxe Foncière
- Normes RE 2020
- ...

Visuel non contractuel - suggestion d'aménagement

DU CONFORT EN COEUR DE VILLE

Honoraires à la charge du vendeur. Dans une copropriété de 43 lots. Aucune procédure n'est en cours. DPE en cours. Les informations sur les risques auxquels ce bien est exposé sont disponibles sur le site Géorisques : georisques.gouv.fr.

Votre conseiller RH Patrimoine : Maxime HERVE
Agent commercial (Entreprise individuelle)
RSAC 133095555 J
RCP 13309666 J
Voir plus

Référence: VA2974-RHPATRI
Bien en copropriété. Nombre de lots : 43.
Honoraires à la charge du vendeur.
Barème des honoraires

Prêt immobilier

Vous souhaitez connaître votre capacité d’emprunt et trouver le meilleur crédit immobilier ?
Réaliser une simulation gratuite

Appartement à ARTIGUES-PRES-BORDEAUX
Appartement à ARTIGUES-PRES-BORDEAUX
Appartement à ARTIGUES-PRES-BORDEAUX
Appartement à ARTIGUES-PRES-BORDEAUX
Ce site est protégé par reCAPTCHA la Politique de confidentialité et les Conditions d’utilisation de Google s’appliquent.
Obtenir un prêt immobilier au meilleur taux ?

En poursuivant votre navigation sans modifier vos paramètres, vous acceptez l'utilisation de cookies susceptibles de réaliser des statistiques de visite. Cliquez ici pour plus d'informations