Bénéficiez des services de nos partenaires locaux soigneusement sélectionnés
pour vous accompagner dans votre parcours d'achat immobilier

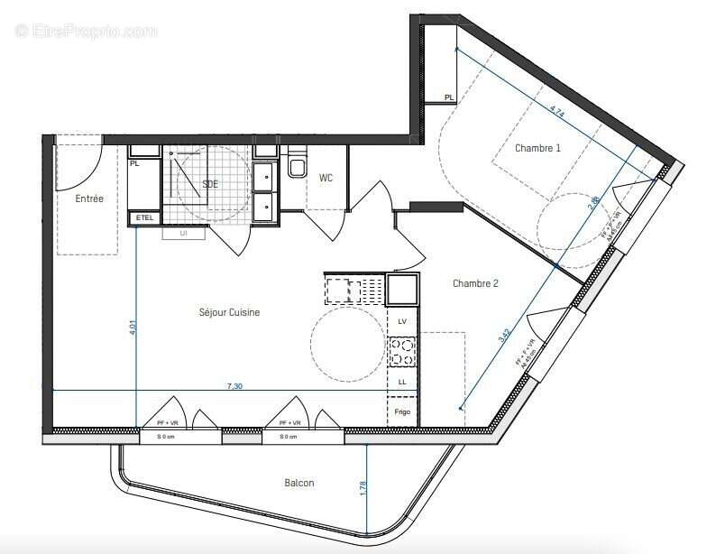
Appartement 65m² à artigues-pres-bordeaux

— Artigues-Pres-Bordeaux 33370 —
285 000 €
65 m²
3 pièces
parkingbalcon/terrasseascenseuraccès handicapé

Nos partenaires locaux
DOMINEZ LE CENTRE VILLE D'ARTIGUES - TERRASSE - PARKING

Idéalement situé, en coeur de bourg, à proximité de la mairie, de son parc arboré et au sein d'une jolie résidence à taille humaine, venez découvrir ce bel appartement T3 de 65m2.

Il se compose d'une entrée donnant accès à une spacieuse pièce de vie de 31m2, très lumineuse grâce à ses deux ouvertures sur sa terrasse de 8m2 exposée Ouest.
Côté nuit, vous disposerez de deux chambres avec placard, une salle d'eau ainsi qu'un WC indépendant.

Un appartement tout neuf offrant de belles prestations, avec la climatisation, des menuiseries aluminium, et un niveau de confort haut de gamme.

Une place de parking sécurisée en sous-sol complète ce bien en sus obligatoire (20 000€).

- Frais de Notaire Réduits
- Garanties
- Exonération de Taxe Foncière
- Normes RE 2020
- ...

Visuel non contractuel - suggestions d'aménagement

DOMINEZ LE CENTRE VILLE D'ARTIGUES - TERRASSE - PARKING

Honoraires à la charge du vendeur. Dans une copropriété de 43 lots. Aucune procédure n'est en cours. DPE en cours. Les informations sur les risques auxquels ce bien est exposé sont disponibles sur le site Géorisques : georisques.gouv.fr.

Votre conseiller RH Patrimoine : Maxime HERVE
Agent commercial (Entreprise individuelle)
RSAC 133095555 J
RCP 13309666 J
Voir plus

Référence: VA2978-RHPATRI
Bien en copropriété. Nombre de lots : 43.
Honoraires à la charge du vendeur.
Barème des honoraires

Prêt immobilier

Vous souhaitez connaître votre capacité d’emprunt et trouver le meilleur crédit immobilier ?
Réaliser une simulation gratuite

Appartement à ARTIGUES-PRES-BORDEAUX
Appartement à ARTIGUES-PRES-BORDEAUX
Appartement à ARTIGUES-PRES-BORDEAUX
Appartement à ARTIGUES-PRES-BORDEAUX
Ce site est protégé par reCAPTCHA la Politique de confidentialité et les Conditions d’utilisation de Google s’appliquent.
Obtenir un prêt immobilier au meilleur taux ?

En poursuivant votre navigation sans modifier vos paramètres, vous acceptez l'utilisation de cookies susceptibles de réaliser des statistiques de visite. Cliquez ici pour plus d'informations