Maison familiale 5 pièces - 109m² avec jardins

— Villeneuve-Loubet 06270 —
598 000 €
109 m² / 40 m²
5 pièces
jardinaccès handicapé

Exclusivité
Située au cœur d'une résidence privée d'exception avec un équipements premium, le Hameaux du Soleil est une résidence fermée sécurisée avec piscine, terrain de tennis, air de jeux pour les enfants, supérette, pharmacie et médecin sur place.

Cette maison mitoyenne calme et conviviale est un véritable havre de paix pour toute la famille.

Au rez-de-chaussée :

Un spacieux séjour traversant baigné de lumière, avec une cheminée contemporaine et climatisation réversible.
Une cuisine ouverte entièrement équipée, une buanderie pratique + WC séparés et rangements intégrés.

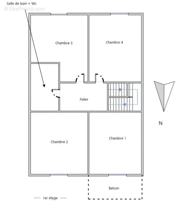
A l'étage:
4 chambres spacieuses toutes climatisées, une salle de bains avec WC, nombreux placards.

Atouts supplémentaires :

Combles offrant un vaste espace de rangement ou à repenser.

Deux jardins privatifs, idéals pour profiter du soleil en toute tranquillité.

Place de parking privée + stationnements visiteurs.

Emplacement idéal à seulement 10 min de l'aéroport de Nice, à 5 min d'un grand centre commercial, Polygone.

Maison en excellent état - aucun travaux à prévoir.

À visiter sans tarder.

Les informations sur les risques auxquels ce bien est exposé sont disponibles sur le site Georisques.gouv.fr
Voir plus

Référence: 86223095
DPE
A
B
C
D
E
F
G
GES
A
B
C
D
E
F
G

Prêt immobilier

Vous souhaitez connaître votre capacité d’emprunt et trouver le meilleur crédit immobilier ?
Réaliser une simulation gratuite

Maison à VILLENEUVE-LOUBET
Maison à VILLENEUVE-LOUBET
Maison à VILLENEUVE-LOUBET
Maison à VILLENEUVE-LOUBET
Maison à VILLENEUVE-LOUBET
Maison à VILLENEUVE-LOUBET
Maison à VILLENEUVE-LOUBET
Maison à VILLENEUVE-LOUBET
Maison à VILLENEUVE-LOUBET
Maison à VILLENEUVE-LOUBET
Maison à VILLENEUVE-LOUBET
Maison à VILLENEUVE-LOUBET
Maison à VILLENEUVE-LOUBET
Maison à VILLENEUVE-LOUBET
Maison à VILLENEUVE-LOUBET
Maison à VILLENEUVE-LOUBET
Maison à VILLENEUVE-LOUBET
Maison à VILLENEUVE-LOUBET
Maison à VILLENEUVE-LOUBET
Maison à VILLENEUVE-LOUBET
Maison à VILLENEUVE-LOUBET
Ce site est protégé par reCAPTCHA la Politique de confidentialité et les Conditions d’utilisation de Google s’appliquent.
Obtenir un prêt immobilier au meilleur taux ?

En poursuivant votre navigation sans modifier vos paramètres, vous acceptez l'utilisation de cookies susceptibles de réaliser des statistiques de visite. Cliquez ici pour plus d'informations