Bénéficiez des services de nos partenaires locaux soigneusement sélectionnés
pour vous accompagner dans votre parcours d'achat immobilier

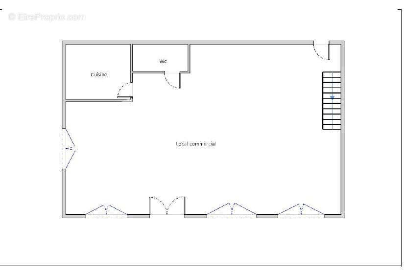
Loft ou local double usage possible plateau croix rousse

— Lyon-4e 69004 —
425 000 €
155 m²
3 pièces

Nos partenaires locaux
Votre Agence Guy Hoquet Lyon 4 forte de ses 26 ans d'expérience sur son marché immobilier Lyonnais est fière de vous présenter ce local commercial a double usage également en habitation. Vous pouvez faire un appartement loft, ou un bureau, un commerce libre choix ,il y à 155M2 au total dont 101.25M2 carrez Au rez de chaussé: vous trouvez une entrée avec le bar, un espace salon ou bureau ouvert, une chambre, un salon séjour, le couloir pour desservir la salle de douche, les WC et la cuisine, pour environ 75 M2 carrez au sol. ( Expo : Ouest) De la cuisine il y a une trappe et un escalier pour accéder a une belle cave voutée en pierres d'environ 25M2. Chaudière neuve d'il y a 2 ans. HSP 4.25M sous mezzanine 2M45 mezzanine 1M74 chaque pièce de la mezzanine à une fenêtre, en arrivant un grand espace et une chambre ou une pièce fermée au choix. Joie petit copro de 4 lots, idéalement placée, proche de tout sur le plateau de la croix rousse. charges annuelles : 2500 euros taxe foncière : 800 euros syndic gindre et le DPE en : B Anne Monard Bretin [Coordonnées masquées] [Coordonnées masquées]
Voir plus

Référence: 2801
Honoraires à la charge du vendeur.
Barème des honoraires
DPE
A
B
C
D
E
F
G
GES
A
B
C
D
E
F
G

Prêt immobilier

Vous souhaitez connaître votre capacité d’emprunt et trouver le meilleur crédit immobilier ?
Réaliser une simulation gratuite

Appartement à LYON-4E
Appartement à LYON-4E
Appartement à LYON-4E
Appartement à LYON-4E
Appartement à LYON-4E
Appartement à LYON-4E
Appartement à LYON-4E
Appartement à LYON-4E
Appartement à LYON-4E
Appartement à LYON-4E
Appartement à LYON-4E
Appartement à LYON-4E
Appartement à LYON-4E
Appartement à LYON-4E
Appartement à LYON-4E
Appartement à LYON-4E
Appartement à LYON-4E
Appartement à LYON-4E
Ce site est protégé par reCAPTCHA la Politique de confidentialité et les Conditions d’utilisation de Google s’appliquent.
Obtenir un prêt immobilier au meilleur taux ?

En poursuivant votre navigation sans modifier vos paramètres, vous acceptez l'utilisation de cookies susceptibles de réaliser des statistiques de visite. Cliquez ici pour plus d'informations