Bénéficiez des services de nos partenaires locaux soigneusement sélectionnés
pour vous accompagner dans votre parcours d'achat immobilier

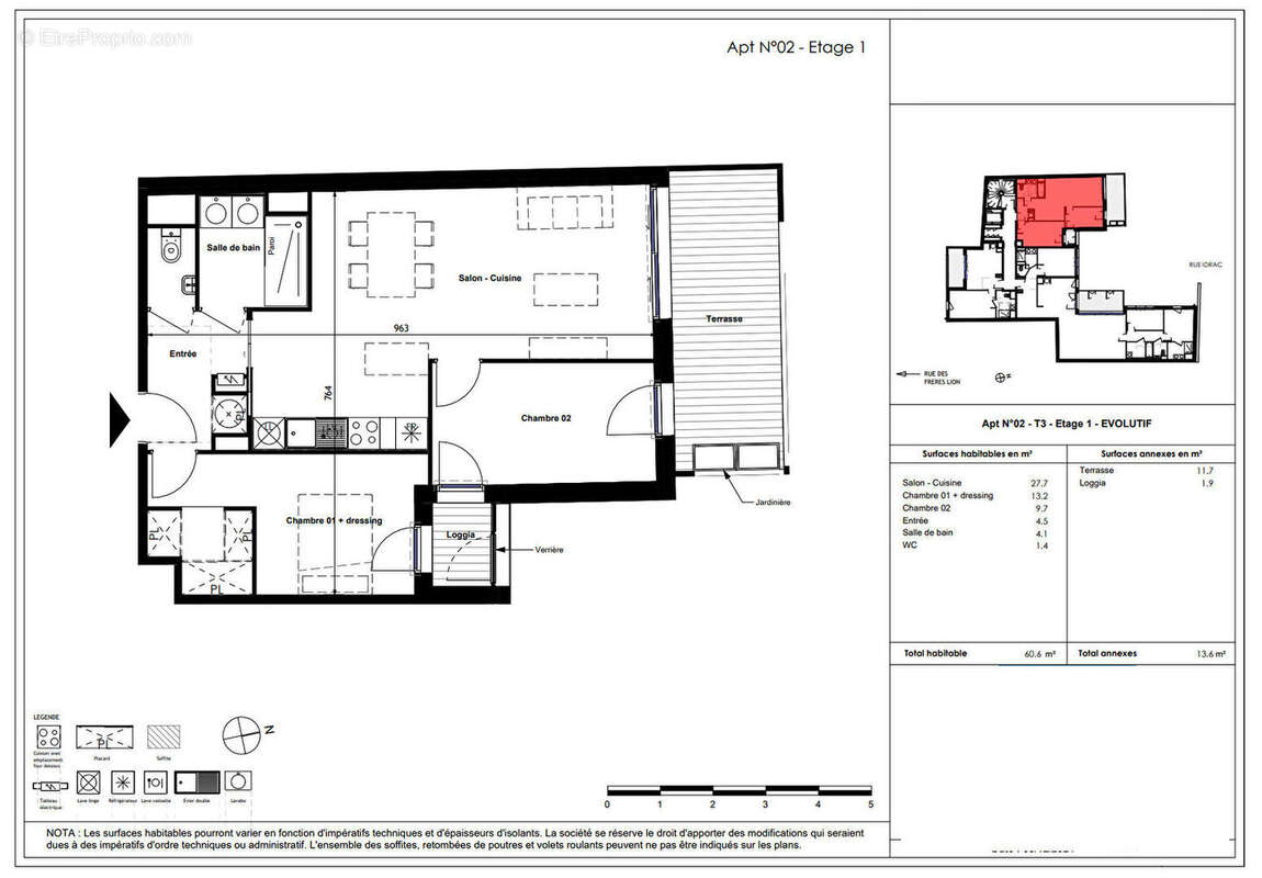
Appartement t3 - 60m2 - centre ville

— Toulouse 31000 —
499 000 €
60 m²
3 pièces
parkingbalcon/terrasseascenseur

Nos partenaires locaux
Magnifique Appartement T3 de 60m2 situé en plein centre vile de Toulouse. L'appartement dispose d'une terrasse de 12m2 ainsi que d'une loggia. Un grand séjour/cuisine de 28m2 donnant accès à votre terrasse. L'appartement vous offre deux belles chambres, une salle de bain et wc suspendus. Belles Prestations : Peinture lisse, parquet contrecollé, pompes à chaleur collective avec un compteur individuel, volets roulants électriques. L'appartement dispose de 1 place de parking en sous-sol. N'hésitez pas à me contacter, d'autres appartements sont disponibles. [Coordonnées masquées] [Coordonnées masquées]
Voir plus

Barème des honoraires
DPE
A
B
C
D
E
F
G

Prêt immobilier

Vous souhaitez connaître votre capacité d’emprunt et trouver le meilleur crédit immobilier ?
Réaliser une simulation gratuite

Appartement à TOULOUSE
Appartement à TOULOUSE
Appartement à TOULOUSE
Appartement à TOULOUSE
Appartement à TOULOUSE
Ce site est protégé par reCAPTCHA la Politique de confidentialité et les Conditions d’utilisation de Google s’appliquent.
Obtenir un prêt immobilier au meilleur taux ?

En poursuivant votre navigation sans modifier vos paramètres, vous acceptez l'utilisation de cookies susceptibles de réaliser des statistiques de visite. Cliquez ici pour plus d'informations