Maison de 152m2 avec terrain agréable

— Alencon 61000 —
283 000 €
152 m²
6 pièces

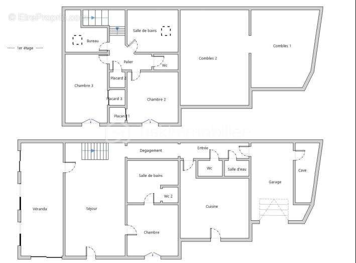
Situé à proximité du Quartier Lancrel Nord à Alençon , dans un secteur résidentiel calme mais à la fois à proximité des commodités , je vous propose ce pavillon mitoyen construit en 1984 à rafraîchir . Un couloir dessert au rez de chaussée une pièce d'eau avec une cabine de douche , un WC , une cuisine lumineuse à aménager , un séjour avec insert à bois réversible avec la partie Véranda , une chambre parentale avec une salle de bain avec baignoire et WC. A l'étage , un palier dessert deux chambres avec placard de rangement, un bureau pouvant être une chambre d'enfant, une salle de bain avec douche et un WC.
Vous apprécierez passer des moments conviviaux au sein de la véranda avec vue sur le jardin.
Le terrain est en partie arboré de fruitiers et propose également une terrasse supplémentaire avec un espace cour .
Pour compléter le confort de ce bien vous trouverez également un garage et une parcelle clôturée avec un portail manuel.
Ce bien vous offre un bon équilibre entre tranquillité et infrastructures accessibles .
Assainissement collectif, chauffage électrique ( Juillet 2025) .
A VISITER ABSOLUMENT

Cette annonce référence 300523 vous est présentée par votre agent commercial BSK Immobilier JULIE LEGENTIL (EI) immatriculé au RSAC de ALENCON (61000) sous le numéro 89516585000010.

Prix du bien : 283 000,00 €
Les honoraires d'agence sont à la charge du vendeur.

A propos des performances énergétiques :
Date de réalisation du diagnostic énergétique : 05/08/2025
Score DPE : 206 kWhEP/m²/an
Score GES : 6 kgepCO2/m²/an
Montant estimé des dépenses annuelles d'énergie pour un usage standard : entre 2220.00 € et 3050.00 € par an. Prix moyens des énergies indexés sur l'année 2025 (abonnements compris).

Les informations sur les risques auxquels ce bien est exposé sont disponibles sur le site Géorisques : www.georisques.gouv.fr
Voir plus

Référence: 300523
Honoraires à la charge du vendeur.
DPE
A
B
C
D
E
F
G
GES
A
B
C
D
E
F
G

Prêt immobilier

Vous souhaitez connaître votre capacité d’emprunt et trouver le meilleur crédit immobilier ?
Réaliser une simulation gratuite

Maison à ALENCON
Maison à ALENCON
Maison à ALENCON
Maison à ALENCON
Maison à ALENCON
Maison à ALENCON
Maison à ALENCON
Maison à ALENCON
Maison à ALENCON
Maison à ALENCON
Maison à ALENCON
Maison à ALENCON
Maison à ALENCON
Maison à ALENCON
Maison à ALENCON
Maison à ALENCON
Maison à ALENCON
Maison à ALENCON
Maison à ALENCON
Maison à ALENCON
Maison à ALENCON
Ce site est protégé par reCAPTCHA la Politique de confidentialité et les Conditions d’utilisation de Google s’appliquent.
Obtenir un prêt immobilier au meilleur taux ?

En poursuivant votre navigation sans modifier vos paramètres, vous acceptez l'utilisation de cookies susceptibles de réaliser des statistiques de visite. Cliquez ici pour plus d'informations