Bénéficiez des services de nos partenaires locaux soigneusement sélectionnés
pour vous accompagner dans votre parcours d'achat immobilier

Maison 111m² à marseille-4e

— Marseille-4e 13004 —
459 000 €
111 m² / 146 m²
6 pièces
parkingbalcon/terrasse

Nos partenaires locaux
A vendre 13004 , Quartier des Chutes Lavie au calme absolu, Charmante maison de ville 6 pièces de 156 m² de surface total au sol , 112 m² carrez avec Terrasse, jardin et 2 caves amenageables

Rare à la vente ! Découvrez cette charmante maison de ville baignée de lumière, au calme, alliant cachet, confort et fonctionnalité, implantée sur une parcelle de 146 m².

Surface habitable : 112 m² (Loi Carrez)
Surface totale au sol : 155,86 m²

Agencement :
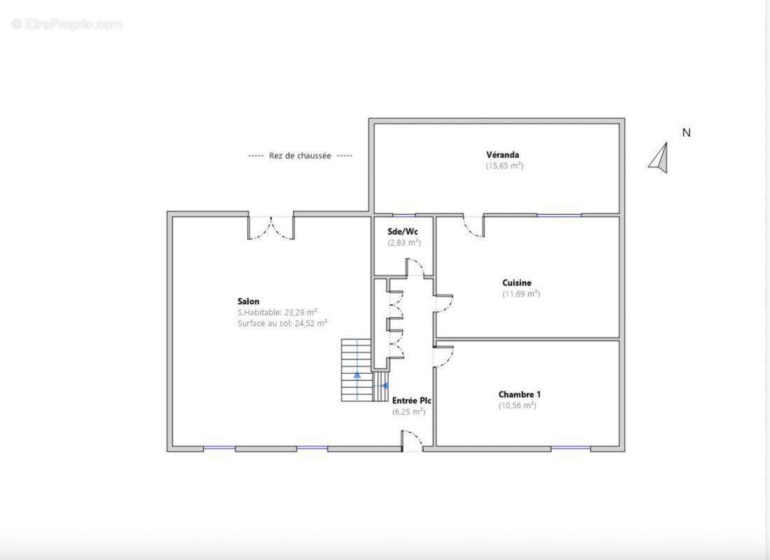
•Rez-de-chaussée :
Un vaste salon-séjour chaleureux avec cheminée, ouvert sur une agréable terrasse, une cuisine fermée, équipée donnant sur une véranda lumineuse de plus de 15 m², une chambre, une salle d'eau avec WC et de nombreux rangements.
•Étage :
Vous trouverez 4 chambres avec placards intégrés, une salle de bain avec baignoire, une salle d'eau supplémentaire et un WC indépendant.

Extérieurs et annexes :
•Stationnement possible pour 2 véhicules à l'intérieur de la propriété
•Deux belles caves carrelées aménageables d'environ 27 m² ( possibilité cave a vin, stockage, bureau, etc...)

Atouts : idéale pour une grande famille, la maison bénéficie d'un emplacement recherché au calme absolu et à proximité immédiate des commerces, des transports en commun et des axes autoroutiers.

Contactez-nous dès maintenant pour organiser une visite et laissez-vous séduire par ce bien.
Julien Ribiollet 06 I 19 I 78 I 60 I 14
Les informations sur les risques auxquels ce bien est exposé sont disponibles sur le site Georisque : georisques. gouv. fr
Julien Ribiollet - EI - est Agent Commercial mandataire en immobilier, immatriculé au Registre Spécial des Agents Commerciaux du Tribunal de Commerce de None sous le n°888486719.
Siège social du mandant : effiCity, 48 avenue de Villiers - 75017 PARIS - Société par Actions Simplifiée, société au capital de 132 373,05 euros, immatriculée au RCS Paris 497 617 746 et titulaire de la Carte professionnelle CPI 75[Coordonnées masquées]02 025 - CCI Paris IDF - Caisse de Garantie : GALIAN Assurances 89 rue de la Boétie 75008 Paris
Voir plus

Référence: 194300
Honoraires à la charge du vendeur.
Barème des honoraires
DPE
A
B
C
D
E
F
G
GES
A
B
C
D
E
F
G

Prêt immobilier

Vous souhaitez connaître votre capacité d’emprunt et trouver le meilleur crédit immobilier ?
Réaliser une simulation gratuite

Maison à MARSEILLE-4E
Maison à MARSEILLE-4E
Maison à MARSEILLE-4E
Maison à MARSEILLE-4E
Maison à MARSEILLE-4E
Maison à MARSEILLE-4E
Maison à MARSEILLE-4E
Maison à MARSEILLE-4E
Maison à MARSEILLE-4E
Maison à MARSEILLE-4E
Maison à MARSEILLE-4E
Maison à MARSEILLE-4E
Maison à MARSEILLE-4E
Maison à MARSEILLE-4E
Maison à MARSEILLE-4E
Maison à MARSEILLE-4E
Ce site est protégé par reCAPTCHA la Politique de confidentialité et les Conditions d’utilisation de Google s’appliquent.
Obtenir un prêt immobilier au meilleur taux ?

En poursuivant votre navigation sans modifier vos paramètres, vous acceptez l'utilisation de cookies susceptibles de réaliser des statistiques de visite. Cliquez ici pour plus d'informations