Maison à echannay

— Echannay 21540 —
149 500 €
4 pièces
jardin

Située au cœur d’un charmant village, cette maison offre un fort potentiel d’aménagement et d’agrandissement.
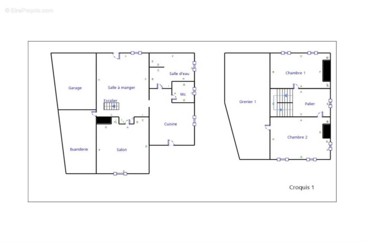
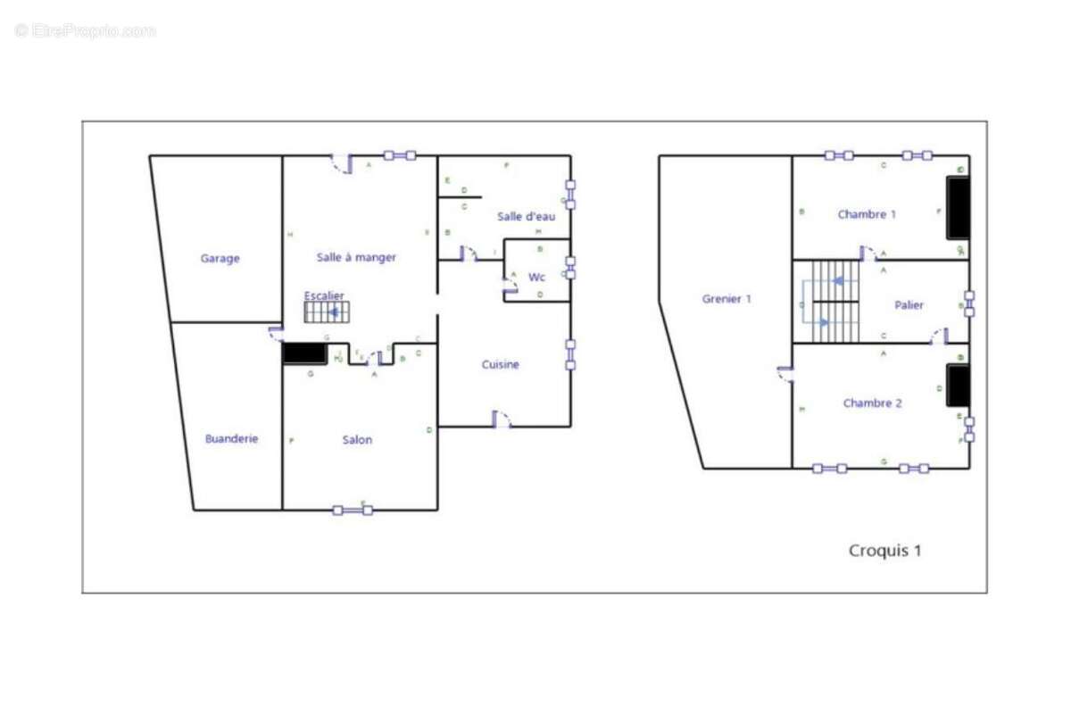
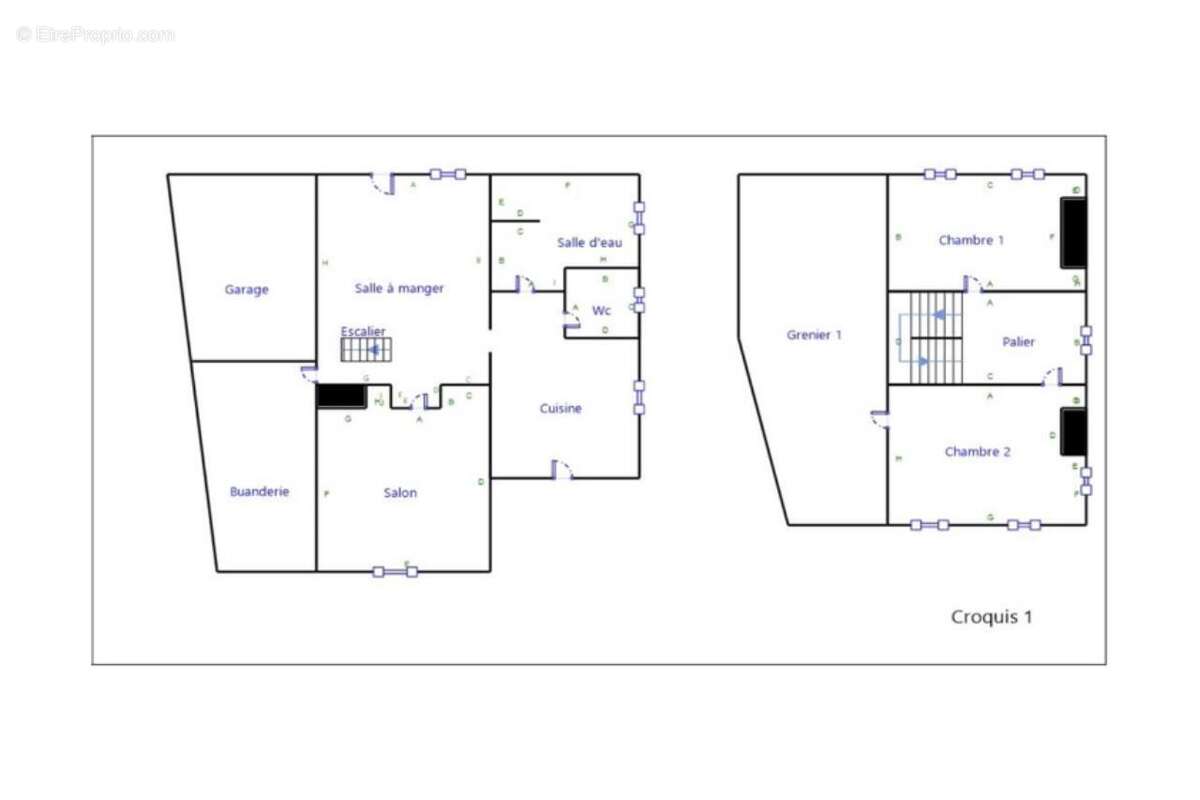
Au rez-de-chaussée, vous découvrirez :
• un grand séjour avec dalles de Bourgogne, poutres apparentes et poêle à bois,
• un vaste salon avec tomettes,
• une cuisine simple,
• une salle d’eau,
• un WC indépendant.
À l’étage, deux spacieuses chambres avec la possibilité d’aménager une troisième chambre ou une seconde salle d’eau.
Un grenier sur le même niveau vient compléter cet étage et offre un bel espace supplémentaire à exploiter.
En annexe : 1 garage, 1 buanderie, 1 grenier, 2 grandes caves,
Ainsi qu'un jolie jardin avec vue dégagée de 394 m², non attenant mais situé au calme à proximité immédiate.
Un bien idéal pour les amoureux de l’ancien en quête d’un projet de rénovation et d’agrandissement, dans un bel environnement authentique.
Prix du bien : 149500 €
Honoraires à la charge du vendeur Réservoir Immo 157 avenue Victor Hugo Dijon :
contactez Monique Dewulf [Coordonnées masquées] [Coordonnées masquées]
Date de réalisation du diagnostic énergétique : 2025
Classe énergie : F Classe émission gaz à effet de serre : F
Chauffage Fioul.
Montant estimé des dépenses annuelles d'énergie pour un usage standard : entre 5230 € et 7120 € par an.
Prix moyens des énergies indexés sur l’année précédente abonnements compris. La loi impose que le niveau de performance (DPE) des logements soit compris, à compter du 01/01/2028, entre les classes A et E
Les informations sur les risques auxquels ce bien est exposé sont disponibles sur le site Géorisques : www.georisques.gouv.fr
notre barème d'honoraires est consultable à l’adresse suivante : https://www.reservoirimmo.fr/tarifs-et-honoraires.html
N° SIREN agence : 501395917
N° registre agent commercial de l'agent immobilier : 512927278 RSAC Dijon.
Voir plus

Référence: 17201
Honoraires à la charge du vendeur.
DPE
A
B
C
D
E
F
G
GES
A
B
C
D
E
F
G

Prêt immobilier

Vous souhaitez connaître votre capacité d’emprunt et trouver le meilleur crédit immobilier ?
Réaliser une simulation gratuite

Maison à ECHANNAY
Maison à ECHANNAY
Maison à ECHANNAY
Maison à ECHANNAY
Maison à ECHANNAY
Maison à ECHANNAY
Maison à ECHANNAY
Maison à ECHANNAY
Maison à ECHANNAY
Maison à ECHANNAY
Maison à ECHANNAY
Maison à ECHANNAY
Maison à ECHANNAY
Maison à ECHANNAY
Maison à ECHANNAY
Maison à ECHANNAY
Maison à ECHANNAY
Maison à ECHANNAY
Maison à ECHANNAY
Maison à ECHANNAY
Maison à ECHANNAY
Maison à ECHANNAY
Maison à ECHANNAY
Maison à ECHANNAY
Maison à ECHANNAY
Maison à ECHANNAY
Maison à ECHANNAY
Maison à ECHANNAY
Maison à ECHANNAY
Maison à ECHANNAY
Maison à ECHANNAY
Maison à ECHANNAY
Maison à ECHANNAY
Maison à ECHANNAY
Maison à ECHANNAY
Maison à ECHANNAY
Maison à ECHANNAY
Maison à ECHANNAY
Maison à ECHANNAY
Maison à ECHANNAY
Maison à ECHANNAY
Maison à ECHANNAY
Maison à ECHANNAY
Maison à ECHANNAY
Maison à ECHANNAY
Maison à ECHANNAY
Maison à ECHANNAY
Maison à ECHANNAY
Maison à ECHANNAY
Maison à ECHANNAY
Maison à ECHANNAY
Maison à ECHANNAY
Maison à ECHANNAY
Maison à ECHANNAY
Maison à ECHANNAY
Maison à ECHANNAY
Maison à ECHANNAY
Maison à ECHANNAY
Maison à ECHANNAY
Maison à ECHANNAY
Maison à ECHANNAY
Maison à ECHANNAY
Maison à ECHANNAY
Maison à ECHANNAY
Maison à ECHANNAY
Maison à ECHANNAY
Maison à ECHANNAY
Maison à ECHANNAY
Maison à ECHANNAY
Maison à ECHANNAY
Maison à ECHANNAY
Maison à ECHANNAY
Maison à ECHANNAY
Maison à ECHANNAY
Maison à ECHANNAY
Maison à ECHANNAY
Maison à ECHANNAY
Maison à ECHANNAY
Maison à ECHANNAY
Maison à ECHANNAY
Maison à ECHANNAY
Maison à ECHANNAY
Maison à ECHANNAY
Maison à ECHANNAY
Maison à ECHANNAY
Maison à ECHANNAY
Maison à ECHANNAY
Maison à ECHANNAY
Maison à ECHANNAY
Maison à ECHANNAY
Maison à ECHANNAY
Maison à ECHANNAY
Maison à ECHANNAY
Maison à ECHANNAY
Maison à ECHANNAY
Maison à ECHANNAY
Maison à ECHANNAY
Maison à ECHANNAY
Maison à ECHANNAY
Maison à ECHANNAY
Maison à ECHANNAY
Maison à ECHANNAY
Maison à ECHANNAY
Maison à ECHANNAY
Maison à ECHANNAY
Maison à ECHANNAY
Maison à ECHANNAY
Maison à ECHANNAY
Maison à ECHANNAY
Maison à ECHANNAY
Maison à ECHANNAY
Maison à ECHANNAY
Maison à ECHANNAY
Maison à ECHANNAY
Maison à ECHANNAY
Maison à ECHANNAY
Maison à ECHANNAY
Maison à ECHANNAY
Maison à ECHANNAY
Maison à ECHANNAY
Maison à ECHANNAY
Maison à ECHANNAY
Maison à ECHANNAY
Maison à ECHANNAY
Maison à ECHANNAY
Maison à ECHANNAY
Maison à ECHANNAY
Maison à ECHANNAY
Maison à ECHANNAY
Maison à ECHANNAY
Maison à ECHANNAY
Maison à ECHANNAY
Maison à ECHANNAY
Maison à ECHANNAY
Maison à ECHANNAY
Maison à ECHANNAY
Maison à ECHANNAY
Maison à ECHANNAY
Maison à ECHANNAY
Maison à ECHANNAY
Maison à ECHANNAY
Maison à ECHANNAY
Maison à ECHANNAY
Maison à ECHANNAY
Maison à ECHANNAY
Maison à ECHANNAY
Maison à ECHANNAY
Maison à ECHANNAY
Maison à ECHANNAY
Maison à ECHANNAY
Maison à ECHANNAY
Maison à ECHANNAY
Maison à ECHANNAY
Maison à ECHANNAY
Maison à ECHANNAY
Maison à ECHANNAY
Maison à ECHANNAY
Maison à ECHANNAY
Maison à ECHANNAY
Maison à ECHANNAY
Maison à ECHANNAY
Maison à ECHANNAY
Maison à ECHANNAY
Maison à ECHANNAY
Maison à ECHANNAY
Maison à ECHANNAY
Maison à ECHANNAY
Maison à ECHANNAY
Maison à ECHANNAY
Maison à ECHANNAY
Maison à ECHANNAY
Maison à ECHANNAY
Maison à ECHANNAY
Maison à ECHANNAY
Maison à ECHANNAY
Maison à ECHANNAY
Maison à ECHANNAY
Maison à ECHANNAY
Maison à ECHANNAY
Maison à ECHANNAY
Maison à ECHANNAY
Maison à ECHANNAY
Maison à ECHANNAY
Maison à ECHANNAY
Maison à ECHANNAY
Maison à ECHANNAY
Maison à ECHANNAY
Maison à ECHANNAY
Maison à ECHANNAY
Maison à ECHANNAY
Maison à ECHANNAY
Maison à ECHANNAY
Maison à ECHANNAY
Maison à ECHANNAY
Maison à ECHANNAY
Maison à ECHANNAY
Maison à ECHANNAY
Maison à ECHANNAY
Maison à ECHANNAY
Maison à ECHANNAY
Maison à ECHANNAY
Maison à ECHANNAY
Maison à ECHANNAY
Maison à ECHANNAY
Maison à ECHANNAY
Maison à ECHANNAY
Maison à ECHANNAY
Maison à ECHANNAY
Maison à ECHANNAY
Maison à ECHANNAY
Maison à ECHANNAY
Maison à ECHANNAY
Maison à ECHANNAY
Maison à ECHANNAY
Maison à ECHANNAY
Maison à ECHANNAY
Maison à ECHANNAY
Maison à ECHANNAY
Maison à ECHANNAY
Maison à ECHANNAY
Maison à ECHANNAY
Maison à ECHANNAY
Maison à ECHANNAY
Maison à ECHANNAY
Maison à ECHANNAY
Maison à ECHANNAY
Maison à ECHANNAY
Maison à ECHANNAY
Maison à ECHANNAY
Maison à ECHANNAY
Maison à ECHANNAY
Maison à ECHANNAY
Maison à ECHANNAY
Maison à ECHANNAY
Maison à ECHANNAY
Maison à ECHANNAY
Maison à ECHANNAY
Maison à ECHANNAY
Maison à ECHANNAY
Maison à ECHANNAY
Maison à ECHANNAY
Maison à ECHANNAY
Maison à ECHANNAY
Maison à ECHANNAY
Maison à ECHANNAY
Maison à ECHANNAY
Maison à ECHANNAY
Maison à ECHANNAY
Maison à ECHANNAY
Maison à ECHANNAY
Maison à ECHANNAY
Maison à ECHANNAY
Maison à ECHANNAY
Maison à ECHANNAY
Maison à ECHANNAY
Maison à ECHANNAY
Maison à ECHANNAY
Maison à ECHANNAY
Maison à ECHANNAY
Maison à ECHANNAY
Maison à ECHANNAY
Maison à ECHANNAY
Maison à ECHANNAY
Maison à ECHANNAY
Maison à ECHANNAY
Maison à ECHANNAY
Maison à ECHANNAY
Maison à ECHANNAY
Maison à ECHANNAY
Maison à ECHANNAY
Maison à ECHANNAY
Maison à ECHANNAY
Maison à ECHANNAY
Maison à ECHANNAY
Maison à ECHANNAY
Maison à ECHANNAY
Maison à ECHANNAY
Maison à ECHANNAY
Maison à ECHANNAY
Maison à ECHANNAY
Maison à ECHANNAY
Maison à ECHANNAY
Maison à ECHANNAY
Maison à ECHANNAY
Maison à ECHANNAY
Maison à ECHANNAY
Maison à ECHANNAY
Maison à ECHANNAY
Maison à ECHANNAY
Maison à ECHANNAY
Maison à ECHANNAY
Maison à ECHANNAY
Maison à ECHANNAY
Maison à ECHANNAY
Maison à ECHANNAY
Maison à ECHANNAY
Maison à ECHANNAY
Maison à ECHANNAY
Maison à ECHANNAY
Maison à ECHANNAY
Maison à ECHANNAY
Maison à ECHANNAY
Maison à ECHANNAY
Maison à ECHANNAY
Maison à ECHANNAY
Maison à ECHANNAY
Maison à ECHANNAY
Maison à ECHANNAY
Maison à ECHANNAY
Maison à ECHANNAY
Maison à ECHANNAY
Maison à ECHANNAY
Maison à ECHANNAY
Maison à ECHANNAY
Maison à ECHANNAY
Maison à ECHANNAY
Maison à ECHANNAY
Maison à ECHANNAY
Maison à ECHANNAY
Maison à ECHANNAY
Maison à ECHANNAY
Maison à ECHANNAY
Maison à ECHANNAY
Maison à ECHANNAY
Maison à ECHANNAY
Maison à ECHANNAY
Maison à ECHANNAY
Maison à ECHANNAY
Maison à ECHANNAY
Maison à ECHANNAY
Maison à ECHANNAY
Maison à ECHANNAY
Maison à ECHANNAY
Maison à ECHANNAY
Maison à ECHANNAY
Maison à ECHANNAY
Maison à ECHANNAY
Maison à ECHANNAY
Maison à ECHANNAY
Maison à ECHANNAY
Maison à ECHANNAY
Maison à ECHANNAY
Maison à ECHANNAY
Maison à ECHANNAY
Maison à ECHANNAY
Maison à ECHANNAY
Maison à ECHANNAY
Maison à ECHANNAY
Maison à ECHANNAY
Maison à ECHANNAY
Maison à ECHANNAY
Maison à ECHANNAY
Maison à ECHANNAY
Maison à ECHANNAY
Maison à ECHANNAY
Maison à ECHANNAY
Maison à ECHANNAY
Maison à ECHANNAY
Maison à ECHANNAY
Maison à ECHANNAY
Maison à ECHANNAY
Maison à ECHANNAY
Maison à ECHANNAY
Maison à ECHANNAY
Maison à ECHANNAY
Maison à ECHANNAY
Maison à ECHANNAY
Maison à ECHANNAY
Maison à ECHANNAY
Maison à ECHANNAY
Maison à ECHANNAY
Maison à ECHANNAY
Maison à ECHANNAY
Maison à ECHANNAY
Maison à ECHANNAY
Maison à ECHANNAY
Maison à ECHANNAY
Maison à ECHANNAY
Maison à ECHANNAY
Maison à ECHANNAY
Maison à ECHANNAY
Maison à ECHANNAY
Maison à ECHANNAY
Maison à ECHANNAY
Maison à ECHANNAY
Maison à ECHANNAY
Maison à ECHANNAY
Maison à ECHANNAY
Maison à ECHANNAY
Maison à ECHANNAY
Maison à ECHANNAY
Maison à ECHANNAY
Maison à ECHANNAY
Maison à ECHANNAY
Maison à ECHANNAY
Maison à ECHANNAY
Maison à ECHANNAY
Maison à ECHANNAY
Maison à ECHANNAY
Maison à ECHANNAY
Maison à ECHANNAY
Maison à ECHANNAY
Maison à ECHANNAY
Maison à ECHANNAY
Maison à ECHANNAY
Maison à ECHANNAY
Maison à ECHANNAY
Maison à ECHANNAY
Maison à ECHANNAY
Maison à ECHANNAY
Maison à ECHANNAY
Maison à ECHANNAY
Maison à ECHANNAY
Maison à ECHANNAY
Maison à ECHANNAY
Maison à ECHANNAY
Maison à ECHANNAY
Maison à ECHANNAY
Maison à ECHANNAY
Maison à ECHANNAY
Maison à ECHANNAY
Maison à ECHANNAY
Maison à ECHANNAY
Maison à ECHANNAY
Maison à ECHANNAY
Maison à ECHANNAY
Maison à ECHANNAY
Maison à ECHANNAY
Maison à ECHANNAY
Maison à ECHANNAY
Maison à ECHANNAY
Maison à ECHANNAY
Maison à ECHANNAY
Maison à ECHANNAY
Maison à ECHANNAY
Maison à ECHANNAY
Maison à ECHANNAY
Maison à ECHANNAY
Maison à ECHANNAY
Maison à ECHANNAY
Maison à ECHANNAY
Maison à ECHANNAY
Maison à ECHANNAY
Maison à ECHANNAY
Maison à ECHANNAY
Maison à ECHANNAY
Maison à ECHANNAY
Maison à ECHANNAY
Maison à ECHANNAY
Maison à ECHANNAY
Maison à ECHANNAY
Maison à ECHANNAY
Maison à ECHANNAY
Maison à ECHANNAY
Maison à ECHANNAY
Maison à ECHANNAY
Maison à ECHANNAY
Maison à ECHANNAY
Maison à ECHANNAY
Maison à ECHANNAY
Maison à ECHANNAY
Maison à ECHANNAY
Maison à ECHANNAY
Maison à ECHANNAY
Maison à ECHANNAY
Maison à ECHANNAY
Maison à ECHANNAY
Maison à ECHANNAY
Maison à ECHANNAY
Maison à ECHANNAY
Maison à ECHANNAY
Maison à ECHANNAY
Maison à ECHANNAY
Maison à ECHANNAY
Maison à ECHANNAY
Maison à ECHANNAY
Maison à ECHANNAY
Maison à ECHANNAY
Maison à ECHANNAY
Maison à ECHANNAY
Maison à ECHANNAY
Maison à ECHANNAY
Maison à ECHANNAY
Maison à ECHANNAY
Maison à ECHANNAY
Maison à ECHANNAY
Maison à ECHANNAY
Maison à ECHANNAY
Maison à ECHANNAY
Maison à ECHANNAY
Maison à ECHANNAY
Maison à ECHANNAY
Maison à ECHANNAY
Maison à ECHANNAY
Maison à ECHANNAY
Maison à ECHANNAY
Maison à ECHANNAY
Maison à ECHANNAY
Maison à ECHANNAY
Maison à ECHANNAY
Maison à ECHANNAY
Maison à ECHANNAY
Maison à ECHANNAY
Maison à ECHANNAY
Maison à ECHANNAY
Maison à ECHANNAY
Maison à ECHANNAY
Maison à ECHANNAY
Maison à ECHANNAY
Maison à ECHANNAY
Maison à ECHANNAY
Maison à ECHANNAY
Maison à ECHANNAY
Maison à ECHANNAY
Maison à ECHANNAY
Maison à ECHANNAY
Maison à ECHANNAY
Maison à ECHANNAY
Maison à ECHANNAY
Maison à ECHANNAY
Maison à ECHANNAY
Maison à ECHANNAY
Maison à ECHANNAY
Maison à ECHANNAY
Maison à ECHANNAY
Maison à ECHANNAY
Maison à ECHANNAY
Maison à ECHANNAY
Maison à ECHANNAY
Maison à ECHANNAY
Maison à ECHANNAY
Maison à ECHANNAY
Maison à ECHANNAY
Maison à ECHANNAY
Maison à ECHANNAY
Maison à ECHANNAY
Maison à ECHANNAY
Maison à ECHANNAY
Maison à ECHANNAY
Maison à ECHANNAY
Maison à ECHANNAY
Maison à ECHANNAY
Maison à ECHANNAY
Maison à ECHANNAY
Maison à ECHANNAY
Maison à ECHANNAY
Maison à ECHANNAY
Maison à ECHANNAY
Maison à ECHANNAY
Maison à ECHANNAY
Maison à ECHANNAY
Maison à ECHANNAY
Maison à ECHANNAY
Maison à ECHANNAY
Maison à ECHANNAY
Maison à ECHANNAY
Maison à ECHANNAY
Maison à ECHANNAY
Maison à ECHANNAY
Maison à ECHANNAY
Maison à ECHANNAY
Maison à ECHANNAY
Maison à ECHANNAY
Maison à ECHANNAY
Maison à ECHANNAY
Maison à ECHANNAY
Maison à ECHANNAY
Maison à ECHANNAY
Maison à ECHANNAY
Maison à ECHANNAY
Maison à ECHANNAY
Maison à ECHANNAY
Maison à ECHANNAY
Maison à ECHANNAY
Maison à ECHANNAY
Maison à ECHANNAY
Maison à ECHANNAY
Maison à ECHANNAY
Maison à ECHANNAY
Maison à ECHANNAY
Maison à ECHANNAY
Maison à ECHANNAY
Maison à ECHANNAY
Maison à ECHANNAY
Maison à ECHANNAY
Maison à ECHANNAY
Maison à ECHANNAY
Maison à ECHANNAY
Maison à ECHANNAY
Maison à ECHANNAY
Maison à ECHANNAY
Maison à ECHANNAY
Maison à ECHANNAY
Maison à ECHANNAY
Maison à ECHANNAY
Maison à ECHANNAY
Maison à ECHANNAY
Maison à ECHANNAY
Maison à ECHANNAY
Maison à ECHANNAY
Maison à ECHANNAY
Maison à ECHANNAY
Maison à ECHANNAY
Maison à ECHANNAY
Maison à ECHANNAY
Maison à ECHANNAY
Maison à ECHANNAY
Maison à ECHANNAY
Maison à ECHANNAY
Maison à ECHANNAY
Maison à ECHANNAY
Maison à ECHANNAY
Maison à ECHANNAY
Maison à ECHANNAY
Maison à ECHANNAY
Maison à ECHANNAY
Maison à ECHANNAY
Maison à ECHANNAY
Maison à ECHANNAY
Maison à ECHANNAY
Maison à ECHANNAY
Maison à ECHANNAY
Maison à ECHANNAY
Maison à ECHANNAY
Maison à ECHANNAY
Maison à ECHANNAY
Maison à ECHANNAY
Maison à ECHANNAY
Maison à ECHANNAY
Maison à ECHANNAY
Maison à ECHANNAY
Maison à ECHANNAY
Maison à ECHANNAY
Maison à ECHANNAY
Maison à ECHANNAY
Maison à ECHANNAY
Maison à ECHANNAY
Maison à ECHANNAY
Maison à ECHANNAY
Maison à ECHANNAY
Maison à ECHANNAY
Maison à ECHANNAY
Maison à ECHANNAY
Maison à ECHANNAY
Maison à ECHANNAY
Maison à ECHANNAY
Maison à ECHANNAY
Maison à ECHANNAY
Maison à ECHANNAY
Maison à ECHANNAY
Maison à ECHANNAY
Maison à ECHANNAY
Maison à ECHANNAY
Maison à ECHANNAY
Maison à ECHANNAY
Maison à ECHANNAY
Maison à ECHANNAY
Maison à ECHANNAY
Maison à ECHANNAY
Maison à ECHANNAY
Maison à ECHANNAY
Maison à ECHANNAY
Maison à ECHANNAY
Maison à ECHANNAY
Maison à ECHANNAY
Maison à ECHANNAY
Maison à ECHANNAY
Maison à ECHANNAY
Maison à ECHANNAY
Maison à ECHANNAY
Maison à ECHANNAY
Maison à ECHANNAY
Maison à ECHANNAY
Maison à ECHANNAY
Maison à ECHANNAY
Maison à ECHANNAY
Maison à ECHANNAY
Maison à ECHANNAY
Maison à ECHANNAY
Maison à ECHANNAY
Maison à ECHANNAY
Maison à ECHANNAY
Maison à ECHANNAY
Maison à ECHANNAY
Maison à ECHANNAY
Maison à ECHANNAY
Maison à ECHANNAY
Maison à ECHANNAY
Maison à ECHANNAY
Maison à ECHANNAY
Maison à ECHANNAY
Maison à ECHANNAY
Maison à ECHANNAY
Maison à ECHANNAY
Maison à ECHANNAY
Maison à ECHANNAY
Maison à ECHANNAY
Maison à ECHANNAY
Maison à ECHANNAY
Maison à ECHANNAY
Maison à ECHANNAY
Maison à ECHANNAY
Maison à ECHANNAY
Maison à ECHANNAY
Maison à ECHANNAY
Maison à ECHANNAY
Maison à ECHANNAY
Maison à ECHANNAY
Maison à ECHANNAY
Maison à ECHANNAY
Maison à ECHANNAY
Maison à ECHANNAY
Maison à ECHANNAY
Maison à ECHANNAY
Ce site est protégé par reCAPTCHA la Politique de confidentialité et les Conditions d’utilisation de Google s’appliquent.
Obtenir un prêt immobilier au meilleur taux ?

En poursuivant votre navigation sans modifier vos paramètres, vous acceptez l'utilisation de cookies susceptibles de réaliser des statistiques de visite. Cliquez ici pour plus d'informations