Bénéficiez des services de nos partenaires locaux soigneusement sélectionnés
pour vous accompagner dans votre parcours d'achat immobilier

Appartement 129m² à saint-remy-de-provence

— Saint-Remy-De-Provence 13210 —
1 087 000 €
130 m²
4 pièces
parkingbalcon/terrasseascenseur

Nos partenaires locaux
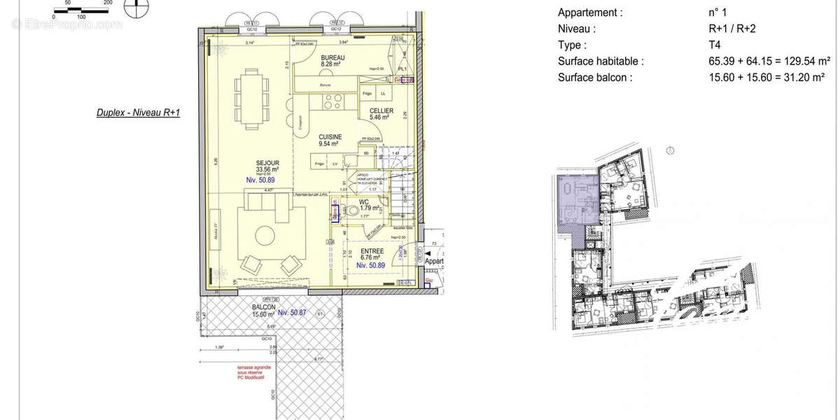
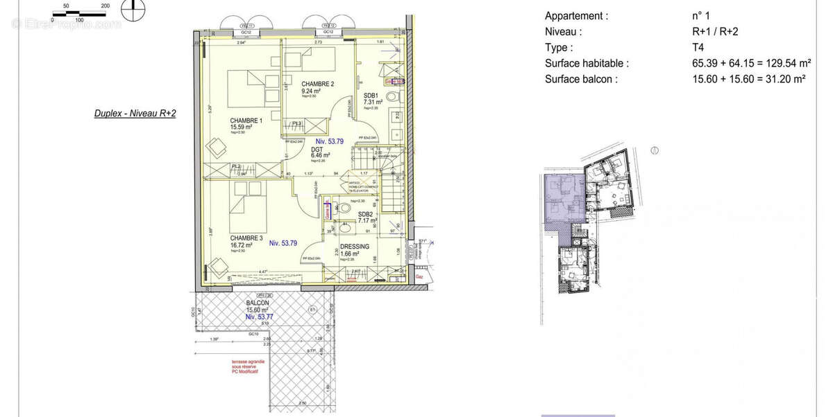
Passion Provence immobilier, 15 Boulevard Gambetta 13210 Saint Rémy de Provence [Coordonnées masquées], vous propose en bordure du centre historique de Saint-Remy-de Provence , Duplex T6 d'exception composé de généreuses pièces de vie et d'extérieurs avec balcon et box privatif. Conçu pour apporter un grand confort et des prestations de qualité tout en répondant au norme RT2012 cette résidence d'exception idéalement située dans le centre-ville de St Remy de Provence à l'architecture provençale se fondra parfaitement avec l‘architecture locale. Soucieux de l'environnement et de l'intégration de nos résidences dans leur habitat, un aménagement paysager spécial verra le jour.
Ce duplex de 135.70 m² au premier étage, est composé d'un séjour de 43.37 m² avec sa cuisine, d'un bureau, cellier et WC.
A l'étage, 2 chambres, une salle de bain et une suite composée d'une chambre de 17 m², dressing, salle de bain et un balcon exposé sud.


Pour plus d'informations contacter
Mr Cairon Frédéric: [Coordonnées masquées]
[Coordonnées masquées]
Les informations sur les risques auxquels ces bien sont exposés sont disponibles sur le site Géorisques :www.georisques.gouv.fr

Honoraires à la charge du vendeur. Dans une copropriété de 20 lots. Aucune procédure n'est en cours. Classe énergie B, Classe climat A Montant moyen estimé des dépenses annuelles d'énergie pour un usage standard, établi à partir des prix de l'énergie de l'année 2022 : entre 875.00 et 1186.00 €. Les informations sur les risques auxquels ce bien est exposé sont disponibles sur le site Géorisques : georisques.gouv.fr.
Voir plus

Référence: VA1999-SERGEPOPOVITCH
Bien en copropriété. Nombre de lots : 20.
Honoraires à la charge du vendeur.
Barème des honoraires
DPE
A
B
C
D
E
F
G
GES
A
B
C
D
E
F
G

Prêt immobilier

Vous souhaitez connaître votre capacité d’emprunt et trouver le meilleur crédit immobilier ?
Réaliser une simulation gratuite

Appartement à SAINT-REMY-DE-PROVENCE
Appartement à SAINT-REMY-DE-PROVENCE
Appartement à SAINT-REMY-DE-PROVENCE
Ce site est protégé par reCAPTCHA la Politique de confidentialité et les Conditions d’utilisation de Google s’appliquent.
Obtenir un prêt immobilier au meilleur taux ?

En poursuivant votre navigation sans modifier vos paramètres, vous acceptez l'utilisation de cookies susceptibles de réaliser des statistiques de visite. Cliquez ici pour plus d'informations