Terrain 719m² à irigny

— Irigny 69540 —
419 900 €
719 m²

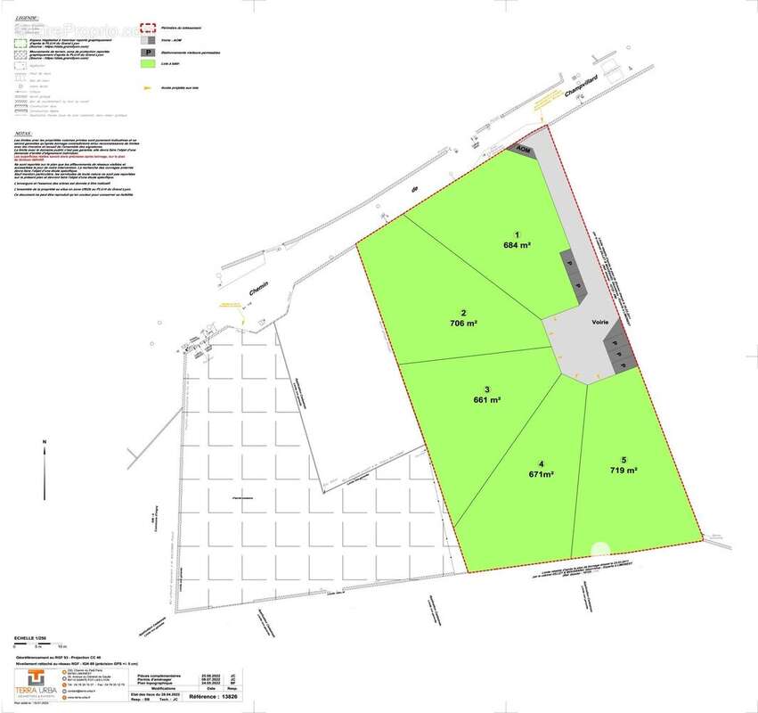
Iad France - Ludovic Chalindar vous propose : Découvrez ce terrain à bâtir de 719 m², idéalement implanté en plein cOEur d'un environnement résidentiel calme et recherché. Ce lot, faisant partie d'un petit lotissement de 5 terrains - dont il ne reste désormais que 4 à saisir - est classé sous le zonage PLU URi2b, entièrement viabilisé et libre de tout constructeur, vous offrant la totale liberté pour concrétiser le projet de votre maison de rêve. La vue dégagée, sublimée par un panorama exceptionnel sur la chaîne des Alpes, confère à ce terrain une luminosité et une ambiance unique.
Intégrez un environnement résidentiel de qualité, à proximité immédiate des écoles, des commerces de proximité et de la ligne de bus 15 à 5 minutes à pied. Le quartier profite également de la dynamique communale d'Irigny et de son engagement pour préserver les espaces verts via le PLU 2025.
Avec un prix au m² en hausse de + 15% sur Irigny en 2024, ce terrain représente un investissement stratégique. Son emplacement unique combine calme, vue imprenable et accès rapide à l'autoroute A450 pour rejoindre le centre ville de Lyon en à peine 15 minutes.
Ne tardez pas : les dernières parcelles de ce lotissement s'envolent rapidement.

Honoraires d'agence à la charge du vendeur.
Bien non soumis au DPE. Les informations sur les risques auxquels ce bien est exposé, y compris l'obligation légale de débroussaillement, sont disponibles sur le site Géorisques : http://www.georisques.gouv.fr.
La présente annonce immobilière a été rédigée sous la responsabilité éditoriale de M Ludovic Chalindar mandataire indépendant en immobilier (sans détention de fonds), agent commercial de la SAS I@D France immatriculé au RSAC de EVRY COURCOURONNES sous le numéro 890248727, titulaire de la carte de démarchage immobilier pour le compte de la société I@D France SAS.
Informations LOI ALUR :
Honoraires charge vendeur. (gedeon_6727_30939918)
Voir plus

Référence: 1719901
Honoraires à la charge du vendeur.

Prêt immobilier

Vous souhaitez connaître votre capacité d’emprunt et trouver le meilleur crédit immobilier ?
Réaliser une simulation gratuite

Photo 1 - Terrain à IRIGNY
Photo 1
Photo 2 - Terrain à IRIGNY
Photo 2
Photo 3 - Terrain à IRIGNY
Photo 3
Photo 4 - Terrain à IRIGNY
Photo 4
Ce site est protégé par reCAPTCHA la Politique de confidentialité et les Conditions d’utilisation de Google s’appliquent.
Obtenir un prêt immobilier au meilleur taux ?

En poursuivant votre navigation sans modifier vos paramètres, vous acceptez l'utilisation de cookies susceptibles de réaliser des statistiques de visite. Cliquez ici pour plus d'informations