Maison 81m² à ingre

— Ingre 45140 —
209 500 €
81 m² / 578 m²
5 pièces
parkingbalcon/terrassejardin

Iad France - Ali Kucuk ([Coordonnées masquées]) vous propose : SOUS OFFRE !

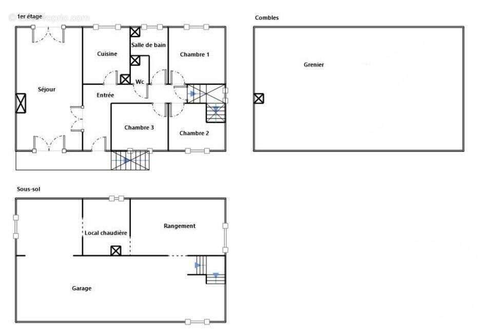
Maison traditionnelle avec sous-sol total !
Un cadre de vie paisible et recherché - Localisation stratégique!

Située dans un quartier résidentiel d'Ingré, à l'abri de toute nuisance, cette maison individuelle de 81 m² environ vous offre un cadre de vie exceptionnel pour accueillir votre famille.

Édifiée sur un terrain clos et arboré, elle allie confort, fonctionnalité et charme, dans une ambiance chaleureuse et verdoyante.

*Un intérieur bien pensé - Vie de plain-pied :
Une entrée vous accueille et dessert un salon / séjour traversant, baigné de lumière, agrémenté d'une cheminée, avec un balcon à l'avant et une terrasse à l'arrière.
Le couloir mène à une cuisine aménagée, une salle d'eau avec baignoire et douche, un WC indépendant, ainsi qu'à trois grandes chambres, dont une avec un coin dressing.

*Un sous-sol total:
Espace garage avec un point d'eau, accessible depuis la maison et l'extérieur, offre de belles possibilités d'aménagement : studio indépendant, espace de travail, activité libérale ou atelier de stockage, selon vos besoins.

*Extérieurs soignés :
Un jardin arboré et clos, une allée fleurie de rosiers, la présence d'un store banne. Le jardin est accessible des deux côtés de la maison.

Prestations :
-Gros OEuvre en bon état
-Accès aux combles
-Chauffage au gaz avec chaudière à condensation + Cheminée
-Raccordement au tout-à-l'égout
-Cour permettant de stationner plusieurs véhicules

Cette maison se situe à proximité immédiate de toutes les commodités : commerces, écoles, professionnels de santé, transports en commun, ainsi que des principaux axes routiers.

Elle bénéficie d'un environnement calme, tout en restant à quelques minutes du centre-ville -- un emplacement idéal pour les familles actives.

Un bien rare à ne pas manquer !
Construite avec soin, cette maison est prête à accueillir une nouvelle famille. Elle réunit tous les critères recherchés : espace, calme, lumière, jardin, garage et localisation prisée !

Des rafraîchissements sont à prévoir pour la remettre au goût du jour.

Pour information : nous sommes partenaires avec des entreprises RGE, ce qui nous permet de vous accompagner dans vos projets de rénovation énergétique et de vous faire bénéficier des aides de l'État.

M. & Mme Kuçuk, conseillers et managers en immobilier, passionnés et à votre écoute pour vous accompagner dans votre projet (achat / vente / location).
Estimation offerte - Expertise professionnelle - Réseau de partenaires artisans pour vous accompagner dans tous vos projets.

Prix FAI : 209 500¤.
Prix 200 000¤ net vendeur.
Honoraires à la charge de l'acquéreur : 9 500¤.

Honoraires d'agence à la charge du vendeur. Information d'affichage énergétique sur ce bien : classe ENERGIE G indice 424 et classe CLIMAT F indice 93. Les informations sur les risques auxquels ce bien est exposé sont disponibles sur le site Géorisques : www.georisques.gouv.fr. La présente annonce immobilière a été rédigée sous la responsabilité éditoriale de M. Ali Kucuk EI (ID 71958), mandataire indépendant en immobilier (sans détention de fonds), agent commercial de la SAS I@D France immatriculé au RSAC de ORLEANS sous le numéro 919481283, titulaire de la carte de démarchage immobilier pour le compte de la société I@D France SAS. Le présent bien est commercialisé dans le cadre d'une délégation de mandat.
Retrouvez tous nos biens sur notre site internet. www.iadfrance.fr.
Informations LOI ALUR :
Honoraires charge vendeur. (gedeon_6727_31768186)
Voir plus

Référence: 1830654
Honoraires à la charge du vendeur.
DPE
A
B
C
D
E
F
G
GES
A
B
C
D
E
F
G

Prêt immobilier

Vous souhaitez connaître votre capacité d’emprunt et trouver le meilleur crédit immobilier ?
Réaliser une simulation gratuite

Photo 1 - Maison à INGRE
Photo 1
Photo 2 - Maison à INGRE
Photo 2
Photo 3 - Maison à INGRE
Photo 3
Photo 4 - Maison à INGRE
Photo 4
Photo 5 - Maison à INGRE
Photo 5
Photo 6 - Maison à INGRE
Photo 6
Photo 7 - Maison à INGRE
Photo 7
Photo 8 - Maison à INGRE
Photo 8
Photo 9 - Maison à INGRE
Photo 9
Ce site est protégé par reCAPTCHA la Politique de confidentialité et les Conditions d’utilisation de Google s’appliquent.
Obtenir un prêt immobilier au meilleur taux ?

En poursuivant votre navigation sans modifier vos paramètres, vous acceptez l'utilisation de cookies susceptibles de réaliser des statistiques de visite. Cliquez ici pour plus d'informations