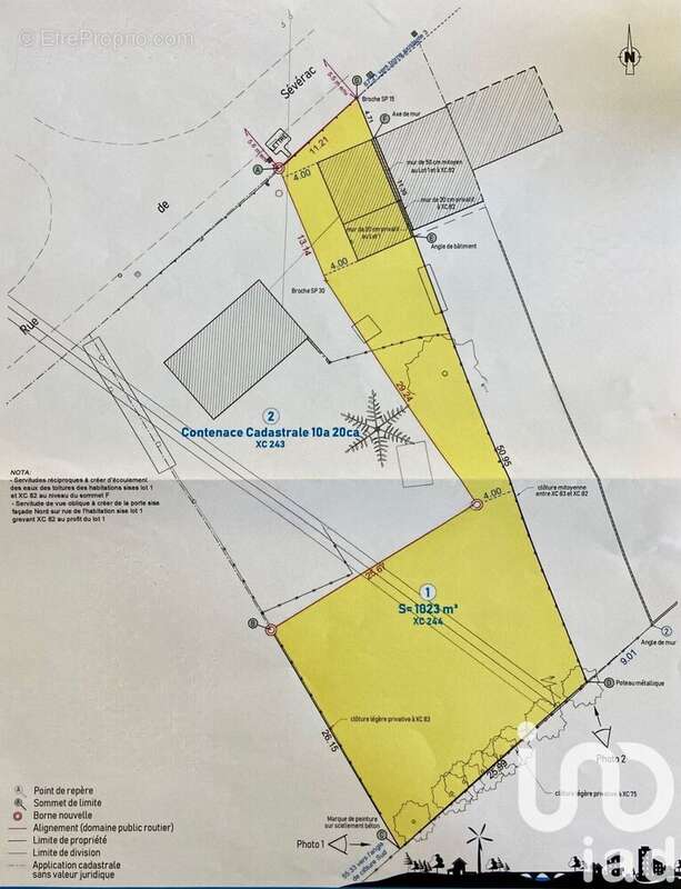
Terrain 1023m² à missillac

— Missillac 44780 —
61 000 €
1 023 m²

Iad France - Julien Hidoux vous propose : En exclusivité, situé en campagne, terrain à bâtir d'une surface d'environ 1023 m², avec une façade d'environ 26 mètres.
Le terrain comprend une bâtisse en pierre d'environ 40 m² au sol ainsi qu'un garage en parpaing d'environ 24 m².
Le bien est desservi en EAU, EDF et télécom en bordure de route. (Assainissement individuel à prévoir)
Exposition sud sur l'arrière, offrant un ensoleillement optimal.
Le terrain est libre de constructeur, laissant la possibilité de réaliser le projet de votre choix.

Zone AH1 - CES 30% - 307 m² au sol (Bâtisse + garage environ 75 m² donc reste 230² environ)
Terrain rectangulaire au fond environ 650 m² - 5 Kms du bourg
Ligne haute tension 20 000 volts

Honoraires d'agence à la charge du vendeur.
Bien non soumis au DPE. Les informations sur les risques auxquels ce bien est exposé, y compris l'obligation légale de débroussaillement, sont disponibles sur le site Géorisques : http://www.georisques.gouv.fr.
La présente annonce immobilière a été rédigée sous la responsabilité éditoriale de M Julien Hidoux mandataire indépendant en immobilier (sans détention de fonds), agent commercial de la SAS I@D France immatriculé au RSAC de SAINT NAZAIRE sous le numéro 983773888, titulaire de la carte de démarchage immobilier pour le compte de la société I@D France SAS.
Informations LOI ALUR :
Honoraires charge vendeur. (gedeon_6727_31897836)
Voir plus

Référence: 1847331
Honoraires à la charge du vendeur.

Prêt immobilier

Vous souhaitez connaître votre capacité d’emprunt et trouver le meilleur crédit immobilier ?
Réaliser une simulation gratuite

Photo 1 - Terrain à MISSILLAC
Photo 1
Photo 2 - Terrain à MISSILLAC
Photo 2
Photo 3 - Terrain à MISSILLAC
Photo 3
Photo 4 - Terrain à MISSILLAC
Photo 4
Photo 5 - Terrain à MISSILLAC
Photo 5
Ce site est protégé par reCAPTCHA la Politique de confidentialité et les Conditions d’utilisation de Google s’appliquent.
Obtenir un prêt immobilier au meilleur taux ?

En poursuivant votre navigation sans modifier vos paramètres, vous acceptez l'utilisation de cookies susceptibles de réaliser des statistiques de visite. Cliquez ici pour plus d'informations