Bénéficiez des services de nos partenaires locaux soigneusement sélectionnés
pour vous accompagner dans votre parcours d'achat immobilier

À vendre maison à rénover - à 150m de la plage - rare opportunité - lege- cap- ferret

— Lege-Cap-Ferret 33950 —
1 092 000 €
110 m²
3 pièces

Nos partenaires locaux
Au cœur d’un hameau authentique de la presqu’île du Cap-Ferret, découvrez ce terrain de 1 160 m² offrant un accès direct et privilégié au Bassin, à seulement quelques pas de la plage.
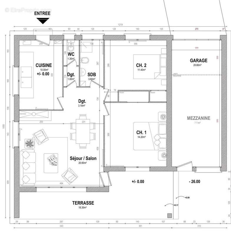
Actuellement implantée sur la parcelle, une maison de plain-pied de 110 m² comprenant entrée, salon/salle à manger ouvrant sur terrasse, cuisine, 2 chambres, salle d’eau et WC indépendant. Un garage attenant et une chambre mansardée complètent l’ensemble. Présence d’un puits sur le terrain.
Le PLU permet plusieurs options :
Rénover et valoriser la maison existante pour en faire une charmante villa de vacances.
Repenser totalement le projet avec la possibilité de construire jusqu’à 290 m² d’emprise au sol en rez-de-chaussée, hauteur autorisée jusqu’à 6 m au faîtage.
L’environnement boisé et calme, la proximité immédiate du Bassin et la rareté des terrains de cette taille au Cap-Ferret font de cette propriété un bien à fort potentiel.
Situation idéale : rue très peu passante, accès plage en quelques minutes à pied.
Un lieu unique pour réaliser votre projet familial ou d’investissement sur l’une des adresses les plus recherchées du Cap-Ferret.

Visuel généré par intelligence artificielle - illustration non contractuelle, donnée à titre indicatif.
Voir plus

Barème des honoraires

Prêt immobilier

Vous souhaitez connaître votre capacité d’emprunt et trouver le meilleur crédit immobilier ?
Réaliser une simulation gratuite

Maison à LEGE-CAP-FERRET
Maison à LEGE-CAP-FERRET
Maison à LEGE-CAP-FERRET
Maison à LEGE-CAP-FERRET
Ce site est protégé par reCAPTCHA la Politique de confidentialité et les Conditions d’utilisation de Google s’appliquent.
Obtenir un prêt immobilier au meilleur taux ?

En poursuivant votre navigation sans modifier vos paramètres, vous acceptez l'utilisation de cookies susceptibles de réaliser des statistiques de visite. Cliquez ici pour plus d'informations