Bénéficiez des services de nos partenaires locaux soigneusement sélectionnés
pour vous accompagner dans votre parcours d'achat immobilier

Appartement 3 pièces – vue mer – cannes californie

— Cannes 06400 —
1 950 000 €
156 m²
3 pièces
parkingbalcon/terrasseascenseur

Nos partenaires locaux
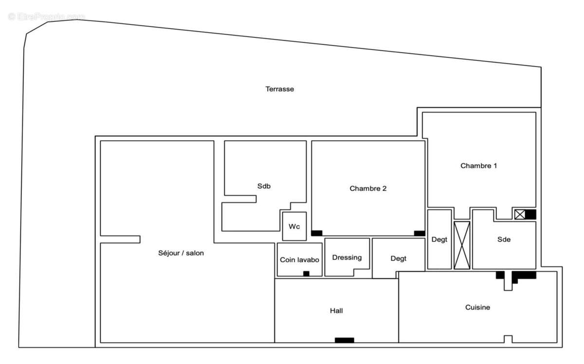
Dans la résidence très prisée Isola Bella, au cœur du quartier résidentiel de la Californie à Cannes,

Ce beau 3 pièces en rez-de-chaussée surélevé est niché dans un parc arboré soigneusement entretenu, et offre un cadre de vie rare, à la fois paisible et privilégié, à quelques pas de la Villa Domergue et des promenades du canal de la Siagne.

L’appartement bénéficie d’une somptueuse vue mer et d’une luminosité exceptionnelle grâce à une belle hauteur sous plafond et de larges baies vitrées qui entourent l’ensemble des pièces .

Le salon-séjour, spacieux, s’ouvre sur une grande terrasse exposée plein sud, avec une vue dégagée sur la mer. Il dispose également d'une cheminée.

La cuisine contemporaine, ouverte mais légèrement en retrait, est entièrement équipée et conçue avec des matériaux haut de gamme.

Les deux chambres en suite disposent chacune d’un dressing, d’une salle de bain et de toilettes privatives.
L’ensemble a été entièrement rénové avec goût et l’appartement est climatisé.

Un studio indépendant en entre-sol, idéal pour accueillir des invités de passage, complète ce bien.

Le chemin situé devant les terrasses est fermé aux voitures, ce qui garantit calme et sérénité , l’accès aux stationnements se fait par l’arrière de la résidence.
Deux garages fermés et un parking privé viennent faciliter le stationnement et deux caves complètent également ce bien.

Atouts :

Résidence :
Exclusive et haut de gamme

Grands Volumes :
3 pièces – 137 m² + studio indépendant – 18 m²

Extérieur :
Terrasse double expo. immense

Stationnement :
2 garages + 1 parking privé

Environnement :
Parc arboré, calme et sécurisé

Situation :
A quelques pas de la Villa Domergue et du canal de la Siagne
Proche du centre ville et des plages

Vue :
Mer panoramique et dégagée
Voir plus

Référence: 1686
Barème des honoraires
DPE
A
B
C
D
E
F
G
GES
A
B
C
D
E
F
G

Prêt immobilier

Vous souhaitez connaître votre capacité d’emprunt et trouver le meilleur crédit immobilier ?
Réaliser une simulation gratuite

Appartement à CANNES
Appartement à CANNES
Appartement à CANNES
Appartement à CANNES
Appartement à CANNES
Appartement à CANNES
Appartement à CANNES
Appartement à CANNES
Appartement à CANNES
Appartement à CANNES
Appartement à CANNES
Appartement à CANNES
Appartement à CANNES
Ce site est protégé par reCAPTCHA la Politique de confidentialité et les Conditions d’utilisation de Google s’appliquent.
Obtenir un prêt immobilier au meilleur taux ?

En poursuivant votre navigation sans modifier vos paramètres, vous acceptez l'utilisation de cookies susceptibles de réaliser des statistiques de visite. Cliquez ici pour plus d'informations