Commerce 185 m² à Saint-Etienne-De-Mer-Morte

— Saint-Etienne-De-Mer-Morte 44270 —
119 000 €
185 m²

Iad France - Nadia Senard Bellorini ([Coordonnées masquées]) vous propose : Centre-bourg : local à fort potentiel pour commerce et habitation à repenser.

En plein cOEur de ville, découvrez cet immeuble de 185 m² environ à rénover, idéal pour relancer une activité de bar-restauration ou tout autre projet professionnel. Le rez-de-chaussée, ancien local commercial, se compose d'une grande salle avec bar, d'une cuisine, d'un laboratoire, de deux réserves, de sanitaires, ainsi que d'une cour extérieure avec anciennes toilettes. Une seconde entrée indépendante offre des perspectives d'agencement supplémentaires.

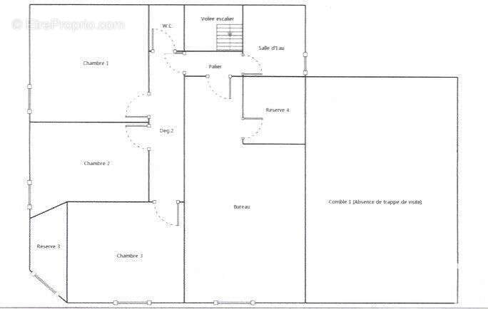
À l'étage, la partie habitation comprend quatre chambres, une salle d'eau et des WC séparés.

Ce bien, libre de toute activité et sans bail en cours, représente une belle opportunité pour les entrepreneurs ou investisseurs souhaitant conjuguer commerce et logement. Fort potentiel de revalorisation en centre-bourg.
Contactez-moi pour organiser une visite ou demander le lien de la visite virtuelle.

Information d'affichage énergétique sur le bien associé à cette annonce : DPE NS indice et GES NS indice. La présente annonce immobilière a été rédigée sous la responsabilité éditoriale de Mlle Nadia Senard Bellorini (ID 77234), Agent Commercial mandataire en immobilier immatriculé au Registre Spécial des Agents Commerciaux (RSAC) du Tribunal de Commerce de LA ROCHE SUR YON sous le numéro 389865270
Retrouvez tous nos biens sur notre site internet. www.iadfrance.fr.Informations LOI ALUR : Honoraires charge vendeur. (gedeon_6727_31516876)
Voir plus

Référence: 1799732
Honoraires à la charge du vendeur.
Barème des honoraires
Photo 1 - Commerce à SAINT-ETIENNE-DE-MER-MORTE
Photo 1
Photo 2 - Commerce à SAINT-ETIENNE-DE-MER-MORTE
Photo 2
Photo 3 - Commerce à SAINT-ETIENNE-DE-MER-MORTE
Photo 3
Photo 4 - Commerce à SAINT-ETIENNE-DE-MER-MORTE
Photo 4
Photo 5 - Commerce à SAINT-ETIENNE-DE-MER-MORTE
Photo 5
Photo 6 - Commerce à SAINT-ETIENNE-DE-MER-MORTE
Photo 6
Photo 7 - Commerce à SAINT-ETIENNE-DE-MER-MORTE
Photo 7
Photo 8 - Commerce à SAINT-ETIENNE-DE-MER-MORTE
Photo 8
Photo 9 - Commerce à SAINT-ETIENNE-DE-MER-MORTE
Photo 9
Géorisques

Les informations sur les risques auxquels ce bien est exposé sont disponibles sur le site Géorisques : www.georisques.gouv.fr

Ce site est protégé par hCaptcha Politique de confidentialité et Conditions d’utilisation s’appliquent.

En poursuivant votre navigation sans modifier vos paramètres, vous acceptez l'utilisation de cookies susceptibles de réaliser des statistiques de visite. Cliquez ici pour plus d'informations