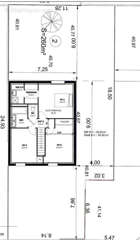
Terrain 260m² à savigny-sur-orge

— Savigny-Sur-Orge 91600 —
157 000 €
260 m²

Iad France - Claire Pardo vous propose : Opportunité rare, terrain de 260 m² à 20 minutes de Paris.
Libre constructeur, avec autorisation de permis en cours,
Situé au centre ville de Savigny, au pied du RER, vous cherchez un terrain pour réaliser votre projet de construction sur mesure, ce terrain à bâtir offre un environnement dynamique à seulement quelques kilomètres de Paris.
PRESENTATION DU PROJET :
Le projet est entièrement à usage de logement avec une surface plancher totale de 88.24 m².
L'emprise au sol de la construction projetée est de 64.8 m².
Les espaces végétalisés projetés sont des espaces verts de pleine terre d'une surface totale de 172 m²
Le bâtiment sera en R + 1 avec un comble non aménageable hauteur maximale de 6.23 m (gouttière) et 9.00m au faîtage mesurée à partir du niveau du sol naturel.

Honoraires d'agence à la charge du vendeur.
Bien non soumis au DPE. Les informations sur les risques auxquels ce bien est exposé, y compris l'obligation légale de débroussaillement, sont disponibles sur le site Géorisques : http://www.georisques.gouv.fr.
La présente annonce immobilière a été rédigée sous la responsabilité éditoriale de Mme Claire Pardo mandataire indépendant en immobilier (sans détention de fonds), agent commercial de la SAS I@D France immatriculé au RSAC de Evry sous le numéro 903118024, titulaire de la carte de démarchage immobilier pour le compte de la société I@D France SAS.
Informations LOI ALUR :
Honoraires charge vendeur. (gedeon_6727_31903081)
Voir plus

Référence: 1847567
Honoraires à la charge du vendeur.

Prêt immobilier

Vous souhaitez connaître votre capacité d’emprunt et trouver le meilleur crédit immobilier ?
Réaliser une simulation gratuite

Photo 1 - Terrain à SAVIGNY-SUR-ORGE
Photo 1
Photo 2 - Terrain à SAVIGNY-SUR-ORGE
Photo 2
Photo 3 - Terrain à SAVIGNY-SUR-ORGE
Photo 3
Photo 4 - Terrain à SAVIGNY-SUR-ORGE
Photo 4
Photo 5 - Terrain à SAVIGNY-SUR-ORGE
Photo 5
Photo 6 - Terrain à SAVIGNY-SUR-ORGE
Photo 6
Photo 7 - Terrain à SAVIGNY-SUR-ORGE
Photo 7
Photo 8 - Terrain à SAVIGNY-SUR-ORGE
Photo 8
Ce site est protégé par reCAPTCHA la Politique de confidentialité et les Conditions d’utilisation de Google s’appliquent.
Obtenir un prêt immobilier au meilleur taux ?

En poursuivant votre navigation sans modifier vos paramètres, vous acceptez l'utilisation de cookies susceptibles de réaliser des statistiques de visite. Cliquez ici pour plus d'informations