Bénéficiez des services de nos partenaires locaux soigneusement sélectionnés
pour vous accompagner dans votre parcours d'achat immobilier

Appartement

— Marseille-12e 13012 —
380 000 €
94 m²
4 pièces
parkingbalcon/terrasseascenseur

Nos partenaires locaux
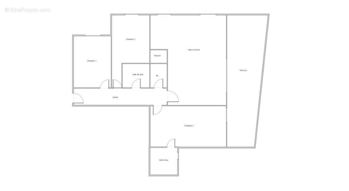
13 012 MARSEILLE - SAINT JULIEN - T4 DE 94M² - TRES BON ETAT - GRANDE TERRASSE - VUE DEGAGEE - DERNIER ETAGE - ASCENSEUR - 1 BOX + 1 EN SUS -

Au 3éme et dernier étage d'une résidence sécurisée de 2004, cet appartement se situe à proximité des bus et des axes autoroutiers.
D'une superficie de 94 m² loi carrez, il se compose d'une pièce de vie de 40m² avec cuisine ouverte offrant l'accès directe à une terrasse de 20m² à la vue dégagée et arborée de pins.
L'espace nuit comprend, une suite parentale avec SDE, deux chambres avec placards, une salle de bain et des toilettes séparées.

Les plus de ce bien:
- Excellent état.
- Climatisation réversible.
- Le parquet en chêne massif.
- Les nombreux rangements.
- Le dernier étage.
- Le box. (2éme box en sus)

Charges mensuelles : 230€
Taxes foncière : 2.380€

Pour tout renseignement et visite : Sylvie PASQUIER : [Coordonnées masquées]
Les informations sur les risques auxquels ce bien est exposé sont disponibles sur le site Georisque : georisques. gouv. fr
Sylvie Pasquier - EI - est Agent Commercial mandataire en immobilier, immatriculé au Registre Spécial des Agents Commerciaux du Tribunal de Commerce de Aix-En-Provence sous le n°878212307.
Siège social du mandant : effiCity, 48 avenue de Villiers - 75017 PARIS - Société par Actions Simplifiée, société au capital de 132 373,05 euros, immatriculée au RCS Paris 497 617 746 et titulaire de la Carte professionnelle CPI 75[Coordonnées masquées]02 025 - CCI Paris IDF - Caisse de Garantie : GALIAN Assurances 89 rue de la Boétie 75008 Paris
Voir plus

Référence: 194433
Bien en copropriété. Nombre de lots : 28. Charges de copropriété : 210 €.
Honoraires à la charge du vendeur.
Barème des honoraires
DPE
A
B
C
D
E
F
G
GES
A
B
C
D
E
F
G

Prêt immobilier

Vous souhaitez connaître votre capacité d’emprunt et trouver le meilleur crédit immobilier ?
Réaliser une simulation gratuite

Appartement à MARSEILLE-12E
Appartement à MARSEILLE-12E
Appartement à MARSEILLE-12E
Appartement à MARSEILLE-12E
Appartement à MARSEILLE-12E
Appartement à MARSEILLE-12E
Appartement à MARSEILLE-12E
Appartement à MARSEILLE-12E
Appartement à MARSEILLE-12E
Appartement à MARSEILLE-12E
Appartement à MARSEILLE-12E
Appartement à MARSEILLE-12E
Appartement à MARSEILLE-12E
Ce site est protégé par reCAPTCHA la Politique de confidentialité et les Conditions d’utilisation de Google s’appliquent.
Obtenir un prêt immobilier au meilleur taux ?

En poursuivant votre navigation sans modifier vos paramètres, vous acceptez l'utilisation de cookies susceptibles de réaliser des statistiques de visite. Cliquez ici pour plus d'informations