Bénéficiez des services de nos partenaires locaux soigneusement sélectionnés
pour vous accompagner dans votre parcours d'achat immobilier

Maison 80m² à les cabannes

— Les Cabannes 81170 —
135 000 €
80 m² / 40 m²
4 pièces
balcon/terrassejardin

Nos partenaires locaux
Maison de village en pierre - Charmante maison de village d'environ 80 m² avec cour intérieur / jardinet intime à 5mn de Cordes sur Ciel.
Une belle maison en pierre, habitable de suite, se situe dans un endroit calme au coeur du village.
La cour intérieure est intime et exposé au sud.
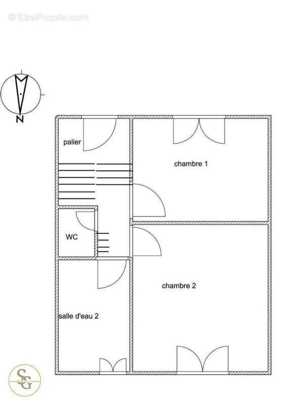
Au rez-de-chaussée : Une entrée spacieuse, Une cuisine aménagée. A l'arrière se trouve une pièce utile -débarras / cave / buanderie. Au premier étage le palier mène aux deux jolies chambres avec radiateurs électriques et parquet en bois, la salle d'eau et WC indépendant. Un escalier à pas japonais monte au salon, une pièce mansardée qui fait d'environ 36m2 au sol. Le salon est lumineuse et cosy avec son parquet en bois.
Une maison très bien entretenue, la menuiserie est en bon état en simple vitrage donc prévoir quelques travaux.
Dans un joli village avec commodités , boulangerie-épicerie, restaurant, école primaire et collège, tout à pied. A quelques minutes en voiture de la gare SNCF et à proximité de Cordes sur Ciel. Aux alentours des chemins de randonnées à pied et à vélo. Albi et ses commodités se trouve à 25kms. Honoraires à la charge du vendeur. Montant estimé des dépenses annuelles d'énergie pour un usage standard : entre 1 810 et 2 500 euros. Prix moyens des énergies indexés en 2021. Les informations sur les risques auxquels ce bien est exposé sont disponibles sur le site Géorisques : https://www.georisques.gouv.fr
Voir plus

Référence: 2149
DPE
A
B
C
D
E
F
G
GES
A
B
C
D
E
F
G

Prêt immobilier

Vous souhaitez connaître votre capacité d’emprunt et trouver le meilleur crédit immobilier ?
Réaliser une simulation gratuite

  - Maison à LES CABANNES
  - Maison à LES CABANNES
  - Maison à LES CABANNES
  - Maison à LES CABANNES
  - Maison à LES CABANNES
  - Maison à LES CABANNES
  - Maison à LES CABANNES
  - Maison à LES CABANNES
  - Maison à LES CABANNES
  - Maison à LES CABANNES
  - Maison à LES CABANNES
  - Maison à LES CABANNES
  - Maison à LES CABANNES
  - Maison à LES CABANNES
  - Maison à LES CABANNES
  - Maison à LES CABANNES
  - Maison à LES CABANNES
  - Maison à LES CABANNES
  - Maison à LES CABANNES
  - Maison à LES CABANNES
  - Maison à LES CABANNES
  - Maison à LES CABANNES
  - Maison à LES CABANNES
  - Maison à LES CABANNES
  - Maison à LES CABANNES
  - Maison à LES CABANNES
Ce site est protégé par reCAPTCHA la Politique de confidentialité et les Conditions d’utilisation de Google s’appliquent.
Obtenir un prêt immobilier au meilleur taux ?

En poursuivant votre navigation sans modifier vos paramètres, vous acceptez l'utilisation de cookies susceptibles de réaliser des statistiques de visite. Cliquez ici pour plus d'informations