Bénéficiez des services de nos partenaires locaux soigneusement sélectionnés
pour vous accompagner dans votre parcours d'achat immobilier

Caen, appartement à vendre f2 en résidence de standing

— Caen 14000 —
169 900 €
48 m²
2 pièces
parking

Nos partenaires locaux
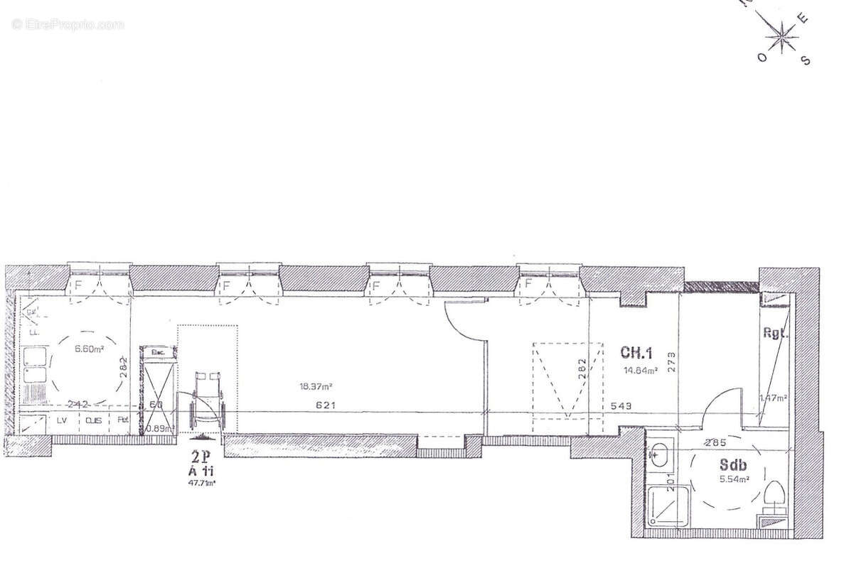
Caen, bel appartement à vendre de 2 pièces principales en résidence de standing avec cave et parking, parfait état, comprenant un séjour avec placard aménagé, une chambre avec placard aménagé avec salle de douches et wc attenants, une cuisine aménagée. Ascenseur. Résidence disposant d'une architecture et d'un cadre exceptionnel avec jardin.
Une cave au sous-sol.
Un parking exterieur privatif.
Chauffage central individuel gaz.
Consommation d'énergie : B (235kwh/an/m2), Gaz à effet de serre : C.
Classe énergie retenue : C,

Montant estimé des dépenses annuelles d'énergie: entre 960.31 €. Estimation réalisée à partir des prix énergétiques de référence des années 2011.
Quote part annuelle de charges : 960€

Prix du bien : 169 900€, honoraires à la charge du vendeur.
La visite virtuelle est disponible sur notre site internet www.cabinetquesnee.com.
Les informations sur les risques auxquels ce bien est exposé sont disponibles sur le site georisques.gouv.fr.
Cabinet QUESNEE [Coordonnées masquées]
Voir plus

Référence: 595
Bien en copropriété. Nombre de lots : 93. Charges de copropriété : 960 €.
Honoraires à la charge du vendeur.
Barème des honoraires
DPE
A
B
C
D
E
F
G
GES
A
B
C
D
E
F
G

Prêt immobilier

Vous souhaitez connaître votre capacité d’emprunt et trouver le meilleur crédit immobilier ?
Réaliser une simulation gratuite

Appartement à CAEN
Appartement à CAEN
Appartement à CAEN
Appartement à CAEN
Appartement à CAEN
Appartement à CAEN
Appartement à CAEN
Appartement à CAEN
Appartement à CAEN
Appartement à CAEN
Ce site est protégé par reCAPTCHA la Politique de confidentialité et les Conditions d’utilisation de Google s’appliquent.
Obtenir un prêt immobilier au meilleur taux ?

En poursuivant votre navigation sans modifier vos paramètres, vous acceptez l'utilisation de cookies susceptibles de réaliser des statistiques de visite. Cliquez ici pour plus d'informations