Murs commerciaux

— Propriano 20110 —
180 000 €
163 m²

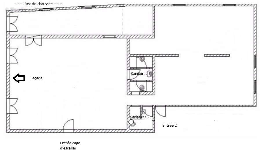
L'agence SCAGLIA IMMO PROPRIANO vous propose à la vente des murs commerciaux en plein centrre de Propriano. Ce bien est composé de trois lots, deux locaux avec vitrine en façade et d'un lot arrière avec son entrée privative qui pourrait être aménagé soit en arrière boutique ou en appartement.
Des travaux ont été effectués dans la partie donnant sur la rue. Idéal pour une activité libérale, artisanale. Bon rapport locatif. Les informations sur les risques auxquels ce bien est exposé sont disponibles sur le site Géorisques : www.georisques.gouv.fr
Voir plus

Référence: 2149
Bien en copropriété. Nombre de lots : 18.
Honoraires à la charge du vendeur.
Barème des honoraires

Prêt immobilier

Vous souhaitez connaître votre capacité d’emprunt et trouver le meilleur crédit immobilier ?
Réaliser une simulation gratuite

Commerce à PROPRIANO
Commerce à PROPRIANO
Commerce à PROPRIANO
Commerce à PROPRIANO
Commerce à PROPRIANO
Commerce à PROPRIANO
Ce site est protégé par reCAPTCHA la Politique de confidentialité et les Conditions d’utilisation de Google s’appliquent.
Obtenir un prêt immobilier au meilleur taux ?

En poursuivant votre navigation sans modifier vos paramètres, vous acceptez l'utilisation de cookies susceptibles de réaliser des statistiques de visite. Cliquez ici pour plus d'informations