Bénéficiez des services de nos partenaires locaux soigneusement sélectionnés
pour vous accompagner dans votre parcours d'achat immobilier

Appartement 83m² à floirac

— Floirac 33270 —
317 000 €
83 m²
4 pièces
parkingascenseur

Nos partenaires locaux
VOTRE DERNIER ÉTAGE PROCHE DE TOUTES LES COMMODITÉS

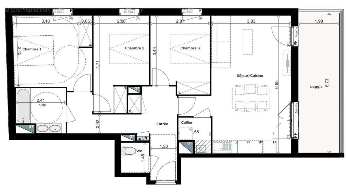
Découvrez ce magnifique appartement T4 de 83 m², niché au 3ème et dernier étage d'un immeuble de standing en excellent état. Ce havre de paix allie élégance et fonctionnalité, offrant un cadre de vie idéal pour les familles ou les professionnels en quête de confort et de sérénité.

L'appartement se compose d'un spacieux séjour de 27 m² baigné de lumière naturelle, grâce à ses grandes ouvertures. Les trois chambres sont conçues pour offrir intimité et tranquillité. La salle de bains moderne et le WC indépendant complètent parfaitement cet espace de vie.

Profitez d'une terrasse de 13 m², parfaite pour des moments de détente en plein air, avec une vue dégagée qui vous transporte au coeur de la ville.

À proximité immédiate, vous trouverez plusieurs commodités : des écoles maternelles et élémentaires à 5 minutes à pied, des restaurants et des commerces à 5 minutes à pied, ainsi que des médecins généraliste. Les transports en commun sont également bien desservis. Pour les amateurs de nature, deux parcs et jardins sont accessibles à pied.

VOTRE DERNIER ÉTAGE PROCHE DE TOUTES LES COMMODITÉS



Honoraires à la charge du vendeur. Dans une copropriété de 28 lots. Aucune procédure n'est en cours. DPE vierge. Les informations sur les risques auxquels ce bien est exposé sont disponibles sur le site Géorisques : georisques.gouv.fr.

Votre conseiller RH Patrimoine : Marc VEYRET
Agent commercial (Entreprise individuelle)
Voir plus

Référence: VA3144-RHPATRI
Bien en copropriété. Nombre de lots : 28.
Honoraires à la charge du vendeur.
Barème des honoraires

Prêt immobilier

Vous souhaitez connaître votre capacité d’emprunt et trouver le meilleur crédit immobilier ?
Réaliser une simulation gratuite

Appartement à FLOIRAC
Appartement à FLOIRAC
Appartement à FLOIRAC
Ce site est protégé par reCAPTCHA la Politique de confidentialité et les Conditions d’utilisation de Google s’appliquent.
Obtenir un prêt immobilier au meilleur taux ?

En poursuivant votre navigation sans modifier vos paramètres, vous acceptez l'utilisation de cookies susceptibles de réaliser des statistiques de visite. Cliquez ici pour plus d'informations