Bénéficiez des services de nos partenaires locaux soigneusement sélectionnés
pour vous accompagner dans votre parcours d'achat immobilier

En exclusivité - à colombes - appartement de 2 pièces de 39m² traversant ouest/est + refait à neuf + charmante copropriété réno

— Colombes 92700 —
243 000 €
39 m²
2 pièces

Nos partenaires locaux
Vous recherchez un bien prêt à vivre au calme et à la fois proche des transports (Gare colombes Ligne J) et du centre ville avec tous les commerces et loisirs.

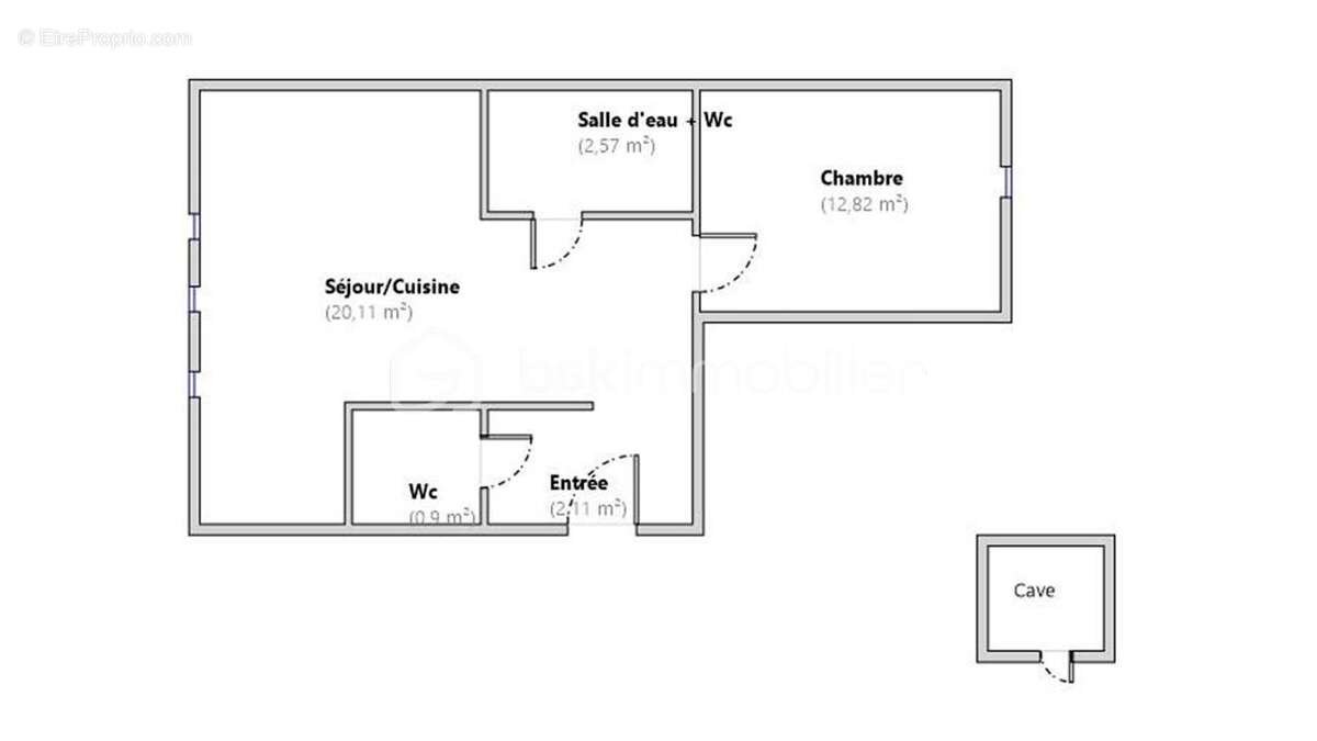
Ce bien est fait pour vous et se compose de la manière suivante :

Au 3ème étage (sans ascenseur) :

Entrée / Séjour avec cuisine équipée / 1 Chambre / 1 Salle de douche/ Wc séparé / Cave

Vous apprécierez la qualité des prestations :
- Double vitrage
- Climatisation réversible
- Vendu avec les meubles
- Appartement entièrement refait à neuf en 2021 avec isolation
- DPE : F dû principalement au chauffage collectif au fuel - Participation du vendeur aux frais de changement de chaudière
- Cave
- Petite copropriété: 11 appartements
- Secteur calme: rue des écoles
- Taxe Foncière : 400 euros / an
- Charges de copropriété : 180 euros / mois environ (incluant le chauffage)
- Commodités : Moins de 10 min à pieds de la gare et du centre ville et des commerces

Première visite ? Découvrez le charme de l'ancien combiné au confort du neuf.
Contactez-nous dès maintenant pour organiser une visite.

*************

Cette annonce référence 303911 vous est présentée par votre agent commercial BSK Immobilier SANDRINE CALMET (EI) immatriculé au RSAC de NANTERRE (92000) sous le numéro 94933249800011.

Prix du bien : 243 000,00 €
Les honoraires d'agence sont à la charge du vendeur.

A propos de la copropriété :
Pas de procédure en cours.
Nombre de lots : 2
Charges prévisionnelles annuelles : 2 260,00 €

A propos des performances énergétiques :
Date de réalisation du diagnostic énergétique : 21/07/2025
Score DPE : 373 kWhEP/m²/an
Score GES : 54 kgepCO2/m²/an
Montant estimé des dépenses annuelles d'énergie pour un usage standard : entre 1440.00 € et 2010.00 € par an. Prix moyens des énergies indexés sur l'année 2021 (abonnements compris).

Les informations sur les risques auxquels ce bien est exposé sont disponibles sur le site Géorisques : www.georisques.gouv.fr
Voir plus

Référence: 303911
Bien en copropriété. Nombre de lots : 2. Charges de copropriété : 188 €.
Honoraires à la charge du vendeur.
DPE
A
B
C
D
E
F
G
GES
A
B
C
D
E
F
G

Prêt immobilier

Vous souhaitez connaître votre capacité d’emprunt et trouver le meilleur crédit immobilier ?
Réaliser une simulation gratuite

Appartement à COLOMBES
Appartement à COLOMBES
Appartement à COLOMBES
Appartement à COLOMBES
Appartement à COLOMBES
Appartement à COLOMBES
Appartement à COLOMBES
Appartement à COLOMBES
Appartement à COLOMBES
Appartement à COLOMBES
Appartement à COLOMBES
Ce site est protégé par reCAPTCHA la Politique de confidentialité et les Conditions d’utilisation de Google s’appliquent.
Obtenir un prêt immobilier au meilleur taux ?

En poursuivant votre navigation sans modifier vos paramètres, vous acceptez l'utilisation de cookies susceptibles de réaliser des statistiques de visite. Cliquez ici pour plus d'informations