Calypsea - superbe 3 pièces entre mer et nature

— Villeneuve-Loubet 06270 —
550 000 €
67 m²
3 pièces
balcon/terrasseascenseur

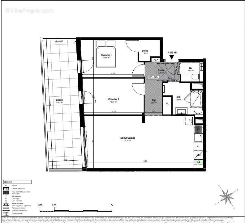
Entre Nice et Antibes, au cœur de la Côte d’Azur, découvrez un superbe trois pièces de 66,72 m² niché dans une résidence contemporaine haut de gamme qui offre un cadre de vie unique entre mer et nature. L’appartement se compose d’un séjour lumineux prolongé par une belle terrasse, d’une cuisine ouverte idéale pour partager des moments conviviaux, de deux chambres confortables avec rangements intégrés ainsi qu’une salle de bains moderne et des WC suspendus.

Les prestations ont été pensées avec soin : larges baies vitrées, carrelage grand format, finitions soignées et système de chauffage et rafraîchissement par pompe à chaleur pour un confort optimal tout au long de l’année.

La résidence, élégante et sécurisée, propose des espaces rares sur la Côte d’Azur avec une piscine sur le toit et un solarium, de beaux jardins paysagers, des parkings en sous-sol et des stationnements pour deux-roues. Elle bénéficie d’un emplacement privilégié à quelques pas du parc naturel de Vaugrenier et à seulement quelques minutes des plages, des commerces, des écoles et des transports.

Villeneuve-Loubet séduit par sa qualité de vie incomparable avec 300 jours de soleil par an et un environnement où la Méditerranée se mêle à la verdure des collines. Cet appartement est une opportunité idéale pour une résidence principale, un pied-à-terre sur la Riviera ou un investissement patrimonial de qualité.

Ne tardez pas à vous positionner sur ce bien rare alliant confort, élégance et douceur de vivre.
Voir plus

Référence: 86197830
Barème des honoraires

Prêt immobilier

Vous souhaitez connaître votre capacité d’emprunt et trouver le meilleur crédit immobilier ?
Réaliser une simulation gratuite

Appartement à VILLENEUVE-LOUBET
Appartement à VILLENEUVE-LOUBET
Appartement à VILLENEUVE-LOUBET
Appartement à VILLENEUVE-LOUBET
Appartement à VILLENEUVE-LOUBET
Appartement à VILLENEUVE-LOUBET
Appartement à VILLENEUVE-LOUBET
Ce site est protégé par reCAPTCHA la Politique de confidentialité et les Conditions d’utilisation de Google s’appliquent.
Obtenir un prêt immobilier au meilleur taux ?

En poursuivant votre navigation sans modifier vos paramètres, vous acceptez l'utilisation de cookies susceptibles de réaliser des statistiques de visite. Cliquez ici pour plus d'informations