Bénéficiez des services de nos partenaires locaux soigneusement sélectionnés
pour vous accompagner dans votre parcours d'achat immobilier

Terrain 317m² à saint-gingolph

— Saint-Gingolph 74500 —
239 000 €
317 m²

Nos partenaires locaux
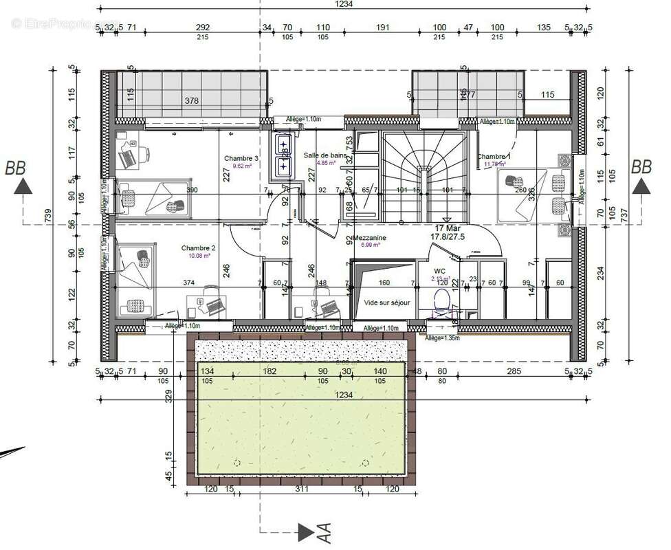
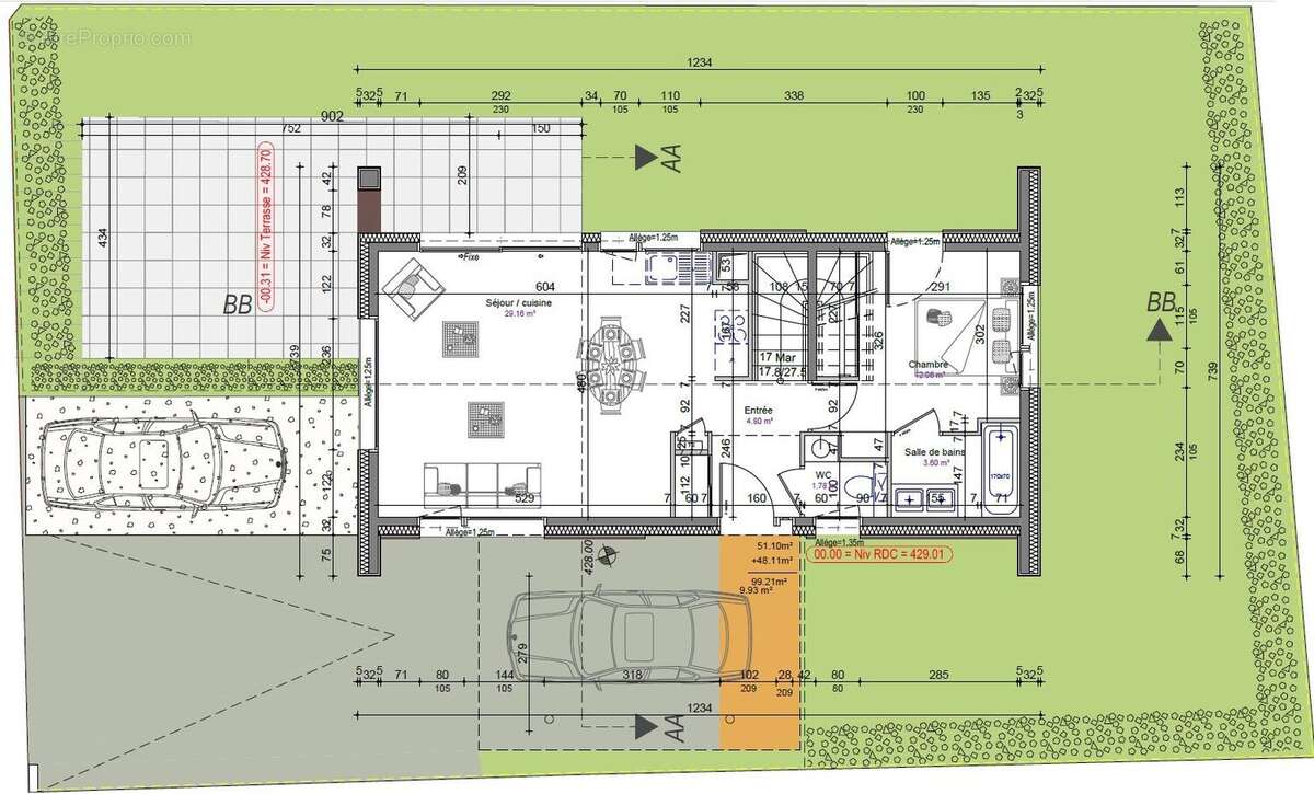
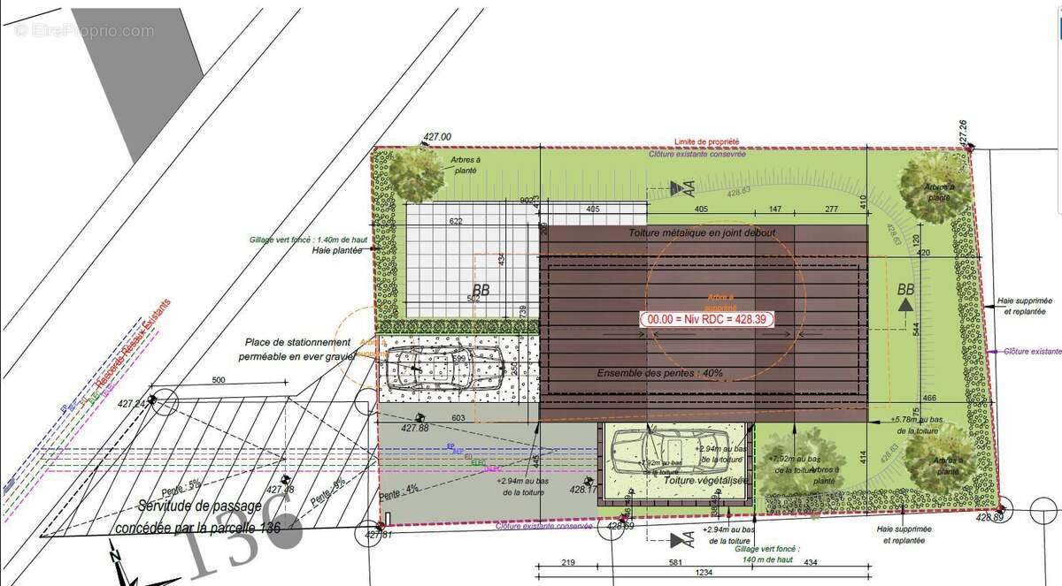
Terrain Constructible avec Permis de construire purgé et avec Vue Lac - Un Cadre Idéal pour Votre Rêve
Imaginez-vous construire votre havre de paix sur ce terrain exceptionnel de 365 m², avec un permis de construire réalisé par un architecte d'environ 100 m² sur 2 niveaux, permis purgé de tout recours. Ce terrain idéalement situé, a proximité de la frontière.

Profitez d'une vue imprenable sur le lac, un spectacle naturel qui embellira chaque jour de votre vie. Avec un permis de construire déjà obtenu, vous pouvez concrétiser vos projets immobiliers sans délai.

Ce terrain est bien plus qu'un simple espace constructible, ce projet ambitieux vous démarquera dans cadre de vie exceptionnel.

À seulement 10 minutes à pied, vous trouverez une maternelle, une école élémentaire, une alimentation générale, plusieurs restaurants. De plus, le bus est accessible en 10 minutes à pied, facilitant vos déplacements quotidiens. Le terrain est également éligible à l'internet haut débit, garantissant une connectivité optimale.

Ne manquez pas cette opportunité unique de posséder un terrain de luxe avec une vue lac. Contactez-nous dès aujourd'hui pour plus d'informations et pour transformer ce terrain en votre futur foyer de rêve.

Honoraires à la charge du vendeur. Les informations sur les risques auxquels ce bien est exposé sont disponibles sur le site Géorisques : georisques.gouv.fr.

Carte pro. CPI74[Coordonnées masquées]35 952
Voir plus

Référence: PGT-075-PEILLEX
Honoraires à la charge du vendeur.
Barème des honoraires

Prêt immobilier

Vous souhaitez connaître votre capacité d’emprunt et trouver le meilleur crédit immobilier ?
Réaliser une simulation gratuite

Terrain à SAINT-GINGOLPH
Terrain à SAINT-GINGOLPH
Terrain à SAINT-GINGOLPH
Terrain à SAINT-GINGOLPH
Terrain à SAINT-GINGOLPH
Terrain à SAINT-GINGOLPH
Terrain à SAINT-GINGOLPH
Terrain à SAINT-GINGOLPH
Terrain à SAINT-GINGOLPH
Ce site est protégé par reCAPTCHA la Politique de confidentialité et les Conditions d’utilisation de Google s’appliquent.
Obtenir un prêt immobilier au meilleur taux ?

En poursuivant votre navigation sans modifier vos paramètres, vous acceptez l'utilisation de cookies susceptibles de réaliser des statistiques de visite. Cliquez ici pour plus d'informations