Maison 158m2

— Catenoy 60840 —
219 000 €
158 m²
6 pièces

Votre agence Comme à la Maison vous propose, au sein d'une future copropriété, cette maison d'environ 158m2 située à 5 minutes de Catenoy sur la paisible commune d'Épineuse

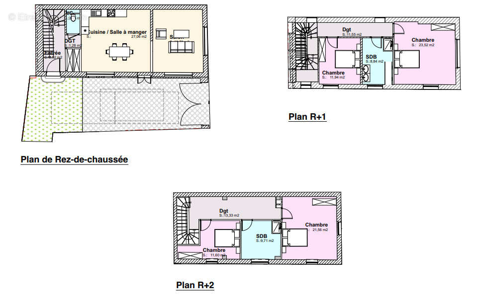
Cette maison de charme semi-mitoyenne à aménager selon vos souhaits, se compose :
Au rez-de-chaussée, d'une entrée, d'une grande pièce à vivre lumineuse, un espace cuisine à créer, ainsi qu'un WC.
Au premier étage, le palier dessert deux chambres ainsi qu'une salle d'eau.
Au second étage, la possibilité deux chambres supplémentaires ainsi qu'une seconde salle d'eau.
A l'extérieur, un jardin privatif d'environ 240m2 ainsi que 2 places de parking.

Idéal pour de l'investissement ou pour créer votre futur nid, ce bien vous offre la possibilité de laisser libre cours à votre imagination.

Épineuse est idéalement situé au calme.
Le bien est viabilisé (eau, électricité et assainissement).
Future copropriété de 9 lots principaux.

Bien non soumis au DPE
Installation d'un mode de chauffage à prévoir.

Prix : 219 000 € honoraires charge vendeur

Vous êtes intéressés ? Contactez votre agent immobilier Baptiste LEFEVRE au [Coordonnées masquées] ou par mail : [Coordonnées masquées]

Votre agence Comme à la Maison est située 48 rue du 11 Novembre 60370 Hermes. SAS COMME A LA MAISON, RCS 917894925 BEAUVAIS, capital social 1000EUR.
Voir plus

Barème des honoraires
DPE
A
B
C
D
E
F
G
GES
A
B
C
D
E
F
G

Prêt immobilier

Vous souhaitez connaître votre capacité d’emprunt et trouver le meilleur crédit immobilier ?
Réaliser une simulation gratuite

Maison à CATENOY
Maison à CATENOY
Maison à CATENOY
Maison à CATENOY
Maison à CATENOY
Maison à CATENOY
Maison à CATENOY
Maison à CATENOY
Maison à CATENOY
Ce site est protégé par reCAPTCHA la Politique de confidentialité et les Conditions d’utilisation de Google s’appliquent.
Obtenir un prêt immobilier au meilleur taux ?

En poursuivant votre navigation sans modifier vos paramètres, vous acceptez l'utilisation de cookies susceptibles de réaliser des statistiques de visite. Cliquez ici pour plus d'informations