Bénéficiez des services de nos partenaires locaux soigneusement sélectionnés
pour vous accompagner dans votre parcours d'achat immobilier

Propriete à vendre 17 pièces clisson (44)

— Clisson 44190 —
797 872 €
249 m² / 835 m²
17 pièces
parkingbalcon/terrassejardin

Nos partenaires locaux
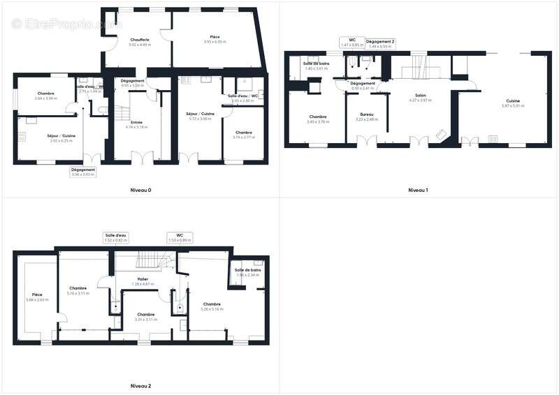
CAPIFRANCE Immobilier vous présente en EXCLUSIVITE cet ancien hôtel réhabilité, bien de caractère d'une qualité architecturale rénové dans le respect de l'authenticité des lieux, situé au cœur de la ville touristique chargée d'histoire qu'est Clisson, profitant d'une implantation idyllique puisqu'au pied de la gare ferroviaire (ligne Clisson / Nantes ou bien même Nantes / Les Sables d'Olonne) ; sur une parcelle plane et close de 835 m² disposant de 4 stationnements privatifs extérieurs.

LES PLUS DE CETTE PROPRIETE : son nombre de pièces égal à 17 vous offrant un confort de vie ainsi que la jouissance sublimée de manière apaisante et confortable, le tout dans une atmosphère respectant l'essence et l'originalité de cette demeure faisant foi d'une pépite rare sur le secteur.

LE POINT FORT DE CETTE ACQUISITION : vous bénéficiez en sus de 2 appartements de 33m² chacun vous offrant l'opportunité d'une gestion locative et donc, par définition, retour sur investissement.

QUELQUES EQUIPEMENTS : charpente traditionnelle (traitement sur facture de Septembre 2013), couverture ardoise, structure pierre, menuiseries de type survitrage bois, chauffage de type PAC Air/Eau (sur facture de Février 2023) + poêle à pellets avec répartiteur de chaleur (sur facture de Janvier 2020), production d'eau chaude électrique (300L pour le bien principal et ballons 50L pour la distribution des appartements), assainissement de type tout à l'égout avec correction des eaux usées (sur facture de Décembre 2023), puit traditionnel en place + récupérateur d'eaux pluviales, terrasse en surplomb de 45m² équipée d'un store-banne électrique de 4,90M pour votre confort.

Idéal investisseur (possibilité chambres d'hôtes) / grande famille amoureuse et respectueuse d'un cadre d'antan profitant d'un environnement idyllique.

Coup de cœur assuré pour cette demeure, contactez Franck dont il vous conviendra d'une visite.
Lien de visite 3D virtuelle : https://share.giraffe360.com/ceSjeU0 Les honoraires sont à la charge du vendeur.
Les informations sur les risques auxquels ce bien est exposé sont disponibles sur le site Géorisques : www. georisques. gouv. fr.

Réseau Immobilier CAPIFRANCE - Votre agent commercial (RSAC N°949 989 917 - Greffe de LA ROCHE SUR YON) Franck ROBIN Entrepreneur Individuel [Coordonnées masquées] - Réf.920670
Voir plus

Référence: 340930659978
Honoraires à la charge du vendeur.
DPE
A
B
C
D
E
F
G
GES
A
B
C
D
E
F
G

Prêt immobilier

Vous souhaitez connaître votre capacité d’emprunt et trouver le meilleur crédit immobilier ?
Réaliser une simulation gratuite

Maison à CLISSON
Maison à CLISSON
Maison à CLISSON
Maison à CLISSON
Maison à CLISSON
Maison à CLISSON
Maison à CLISSON
Maison à CLISSON
Maison à CLISSON
Maison à CLISSON
Maison à CLISSON
Maison à CLISSON
Maison à CLISSON
Maison à CLISSON
Maison à CLISSON
Maison à CLISSON
Maison à CLISSON
Maison à CLISSON
Maison à CLISSON
Maison à CLISSON
Maison à CLISSON
Maison à CLISSON
Maison à CLISSON
Maison à CLISSON
Maison à CLISSON
Maison à CLISSON
Maison à CLISSON
Maison à CLISSON
Maison à CLISSON
Maison à CLISSON
Maison à CLISSON
Maison à CLISSON
Maison à CLISSON
Maison à CLISSON
Maison à CLISSON
Ce site est protégé par reCAPTCHA la Politique de confidentialité et les Conditions d’utilisation de Google s’appliquent.
Obtenir un prêt immobilier au meilleur taux ?

En poursuivant votre navigation sans modifier vos paramètres, vous acceptez l'utilisation de cookies susceptibles de réaliser des statistiques de visite. Cliquez ici pour plus d'informations