Maison de caractère (1730) sur 1,2 hectare avec dépendances

— Lege 44650 —
665 000 €
260 m² / 12 340 m²
9 pièces
parkingbalcon/terrassejardin

44 / 85 Propriété aux confins de La Loire-Atlantique et de la Vendée, beau cadre de vie et calme absolu à 1km de tous services et commodités (écoles, collèges, crèches, soins médicaux, supermarchés, cinéma, complexe sportifs, restaurants, etc…), à 30mn NANTES (aéroport) & des plages, 20mn CHALLANS, LA ROCHE / YON, MONTAIGU, MACHECOUL, … Demeure de 1730 en parfait état, 260m2 hab. (5/6 chambres) + pièces de service + grandes dépendances 300m2, parking, parc soigné, prairie, l’ensemble sur 1,2 hectare clos à l’abri des nuisances et de tout vis-à-vis. Véritable havre de paix offrant authenticité et confort moderne dans un environnement de qualité.

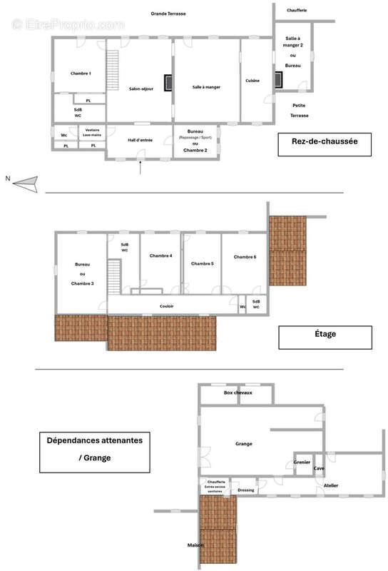
L’HABITATION (260m2 + pièces de service) est composée au rez-de-chaussée (sol tomettes anciennes, poutraison apparente) : Hall d'entrée ; Vestiaire avec lave-mains et wc indépendant ; Salon avec cheminée monumentale en granit et poêle à bois récent + accès vers terrasse et jardin ; Salle à manger avec accès terrasse et jardin ; Cuisine AE (Arthur-Bonnet de 2021) avec accès terrasse ; Bureau ou petite salle à manger avec cheminée et accès terrasse côté accueil ; Chambre 1 avec salle de bain privative (meuble vasque, bain, douche, wc) ; Chambre 2 (actuellement en pièce multi usages : bureau, repassage et sport). Pièces de service, faisant le lien entre la demeure et la grange, dont : Chaufferie/buanderie/Entrée de service (avec évier et douche de service) ; Lingerie/dressing avec grands rangements. À l’étage : Couloir desservant Chambre 3 (ou grand bureau comme actuellement) ; Chambre 4 avec placard ; Salle de bain (2 vasques, bain, wc, rangements - accessible depuis le couloir, depuis la chambre 4 et possiblement depuis la chambre 3) ; Chambre 5 avec placard et cabinet de toilette (lavabo, miroir, rangement) ; Chambre 6 avec salle de bain (meuble vasque, bain, wc) ; WC indépendant sur palier.

LES DÉPENDANCES sont composées de : Grange (eau/électricité ok) d’environ 300m2 dont atelier, cave à vin, cave de stockage, espace de stockage, réserve bois, boxes pour poneys et chèvres, … Grange ouverte/préau ; Abri de prairie ; …

CONFORT ET TECHNIQUE : Construction de caractère et de qualité des années 1730 en excellent état général bénéficiant d’un entretien suivi et de travaux récents de modernisation ; Couverture tuile (de 2015 pour la maison et 2019 pour la grange) ; Bonne isolation murale et supérieure ; VMC ; Ouvertures en PVC double vitrage de 2019 (en partie OB et en partie équipées de moustiquaires) ; Volets alu de 2019 ; Chauffage central hydraulique et production eau chaude par PAC ATLANTIC air/eau hybride de 2023 ; Poêle à bois SINEOS F de 2021 pour feux d’agrément (et très bon chauffage intersaison) ; Faible dépense énergétique (DPE = C) ; Eau potable du réseau publique ; 5/6 chambres, 3 salles de bain, 2 douches, 1 cabinet de toilette, 5 wc ; Assainissement autonome conforme ; Portail alu télécommandé ; Visiophone ; Voie d’accès et parking en enrobé (2022) ; Éclairage extérieur des accès ; … ; Parc soigné et clôturé avec petit plan d'eau sécurisé ; Propriété entièrement clôturée (2018) ; Demeure lumineuse, pièces de vie traversantes exposées Est / Ouest ; 5 des chambres sont avantageusement exposées (suite parentale du rez-de-chaussée au Nord-Est et 4 autres chambres à l’Est) ; Terrasses toutes expositions (115 + 15m2) ; Maison de caractère mêlant habilement authenticité (façades pierre apparente, sol tomettes ancienne, cheminée monumentale, poutraison apparente, …) et confort moderne (double vitrage, volets alu, PAC, …) ; Dossier de factures d’artisans locaux (travaux d’entretien, de rénovation et modernisation) pour + de 200k€ depuis 8 ans ; Site très calme sans nuisance ni vis-à-vis bénéficiant néanmoins de toutes les commodités très proches dans un secteur offrant une excellente qualité de vie ainsi que la proximité des plages et des grandes villes.
Le bien est raccordé à la fibre internet haut débit et dispose d’un système de protection électronique avec contrat de télésurveillance*.
DPE : CE=C GES=A. Taxe foncière : 1 757 € (y compris taxes ordures ménagères). Prix de vente 665 000 € honoraires agence inclus charge vendeur.

Complément d'information et visite sur demande référencée. Cette offre exclusive vous est présentée par DEMEURES & CARACTÈRE®, une marque du Cabinet RETZ IMMOBILIER ; Agence spécialiste de l'immobilier de Caractère, Atypique, Rural, Équestre, d'Exception et de Prestige dans les villes, villages, campagnes et sur le littoral de Loire-Atlantique, Morbihan, Vendée et les départements limitrophes. @MNNRICD. Réf. mandat exclusif : 11[Coordonnées masquées]. Contact : Chris DUBOIS. - Annonce rédigée et publiée par un Agent Mandataire -
Voir plus

Référence: 219491
Honoraires à la charge du vendeur.
Barème des honoraires
DPE
A
B
C
D
E
F
G
GES
A
B
C
D
E
F
G

Prêt immobilier

Vous souhaitez connaître votre capacité d’emprunt et trouver le meilleur crédit immobilier ?
Réaliser une simulation gratuite

Maison à LEGE
Maison à LEGE
Maison à LEGE
Maison à LEGE
Maison à LEGE
Maison à LEGE
Maison à LEGE
Maison à LEGE
Maison à LEGE
Maison à LEGE
Maison à LEGE
Maison à LEGE
Maison à LEGE
Maison à LEGE
Maison à LEGE
Maison à LEGE
Maison à LEGE
Maison à LEGE
Maison à LEGE
Maison à LEGE
Ce site est protégé par reCAPTCHA la Politique de confidentialité et les Conditions d’utilisation de Google s’appliquent.
Obtenir un prêt immobilier au meilleur taux ?

En poursuivant votre navigation sans modifier vos paramètres, vous acceptez l'utilisation de cookies susceptibles de réaliser des statistiques de visite. Cliquez ici pour plus d'informations