Bénéficiez des services de nos partenaires locaux soigneusement sélectionnés
pour vous accompagner dans votre parcours d'achat immobilier

Maison 73m² à evron

— Evron 53600 —
146 000 €
73 m² / 594 m²
4 pièces
jardin

Nos partenaires locaux
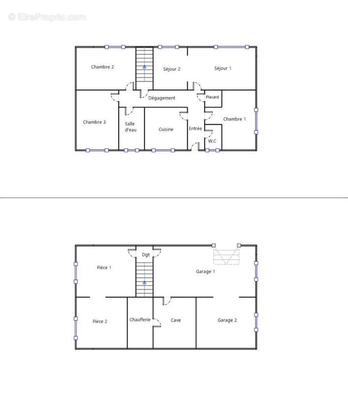
Iad France - Cathy Morenne vous propose : * ÉVRON * PAVILLON SUR SOUS-SOL 73 m² * 3 CHAMBRES * PARCELLE 590 m² *

Construit en 1963, ce pavillon parfaitement entretenu bénéficie d'une rénovation quasi-totale.
Lumineux et chaleureux, il fera à coup sûr le bonheur d'une jeune famille.

Son agencement est traditionnel avec un salon / séjour lumineux ayant accès sur le jardin, une cuisine séparée entièrement aménagée et équipée, 3 chambres et une salle d'eau récente.

Le sous-sol renferme un garage, une buanderie puis un espace de 20 m² avec point d'eau, isolé et chauffé, aménageable selon vos besoins.

Les + de ce bien : toiture tuiles mécaniques, isolation combles en ouate soufflée, huisseries PVC double vitrage avec volets roulants motorisés, poêle à pellets programmable.

Cette maison présente un potentiel certain avec des travaux de personnalisation selon vos goûts et besoins. Une visite s'impose pour apprécier pleinement tout son potentiel.

N'hésitez plus et contactez-moi !

Honoraires d'agence à la charge du vendeur.
Information d'affichage énergétique sur ce bien : classe ENERGIE E indice 271 et classe CLIMAT E indice 67. Les informations sur les risques auxquels ce bien est exposé, y compris l'obligation légale de débroussaillement, sont disponibles sur le site Géorisques : http://www.georisques.gouv.fr.
La présente annonce immobilière a été rédigée sous la responsabilité éditoriale de Mme Cathy Morenne mandataire indépendant en immobilier (sans détention de fonds), agent commercial de la SAS I@D France immatriculé au RSAC de LAVAL sous le numéro 844755900, titulaire de la carte de démarchage immobilier pour le compte de la société I@D France SAS.
Informations LOI ALUR :
Honoraires charge vendeur. (gedeon_6727_31915901)
Voir plus

Référence: 1850646
Honoraires à la charge du vendeur.
DPE
A
B
C
D
E
F
G
GES
A
B
C
D
E
F
G

Prêt immobilier

Vous souhaitez connaître votre capacité d’emprunt et trouver le meilleur crédit immobilier ?
Réaliser une simulation gratuite

Photo 1 - Maison à EVRON
Photo 1
Photo 2 - Maison à EVRON
Photo 2
Photo 3 - Maison à EVRON
Photo 3
Photo 4 - Maison à EVRON
Photo 4
Photo 5 - Maison à EVRON
Photo 5
Photo 6 - Maison à EVRON
Photo 6
Photo 7 - Maison à EVRON
Photo 7
Photo 8 - Maison à EVRON
Photo 8
Photo 9 - Maison à EVRON
Photo 9
Ce site est protégé par reCAPTCHA la Politique de confidentialité et les Conditions d’utilisation de Google s’appliquent.
Obtenir un prêt immobilier au meilleur taux ?

En poursuivant votre navigation sans modifier vos paramètres, vous acceptez l'utilisation de cookies susceptibles de réaliser des statistiques de visite. Cliquez ici pour plus d'informations