En plateau - appartement duplex plein centre bourg

— Bretignolles-Sur-Mer 85470 —
298 000 €
116 m²
5 pièces

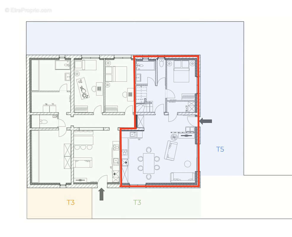
L'agence RH IMMOBILIER vous présente, en plein centre bourg, cet appartement duplex d'environ 116 m2, actuellement présenté à l’état brut en vente plateau. Il offre un bel espace pour se projetter dans un projet de renovation total.
Au rez-de-chaussée, vous trouverez une entrée, une pièce de vie, une première chambre, une salle d’eau et un WC indépendant.
À l’étage, vous trouverez deux chambres supplémentaires, un bureau pouvant servir de petite chambre d'appoint, une seconde salle d’eau ainsi qu’un WC indépendant.
L’appartement dispose d’un jardin privatif, parfait pour profiter des beaux jours, ainsi que d'une place de stationnement privé. Copropriété de 3 lots en cours de constitution, gérée bénévolement et sans frais.
À 150 mètres de tous les commerces et du marché et à seulement 1,5 km de la plage.
Voir plus

Référence: 1105
Honoraires à la charge du vendeur.
Barème des honoraires
DPE
A
B
C
D
E
F
G
GES
A
B
C
D
E
F
G

Prêt immobilier

Vous souhaitez connaître votre capacité d’emprunt et trouver le meilleur crédit immobilier ?
Réaliser une simulation gratuite

Appartement à BRETIGNOLLES-SUR-MER
Appartement à BRETIGNOLLES-SUR-MER
Appartement à BRETIGNOLLES-SUR-MER
Appartement à BRETIGNOLLES-SUR-MER
Appartement à BRETIGNOLLES-SUR-MER
Appartement à BRETIGNOLLES-SUR-MER
Appartement à BRETIGNOLLES-SUR-MER
Appartement à BRETIGNOLLES-SUR-MER
Ce site est protégé par reCAPTCHA la Politique de confidentialité et les Conditions d’utilisation de Google s’appliquent.
Obtenir un prêt immobilier au meilleur taux ?

En poursuivant votre navigation sans modifier vos paramètres, vous acceptez l'utilisation de cookies susceptibles de réaliser des statistiques de visite. Cliquez ici pour plus d'informations