Bénéficiez des services de nos partenaires locaux soigneusement sélectionnés
pour vous accompagner dans votre parcours d'achat immobilier

Terrain 500m² à bailly-romainvilliers

— Bailly-Romainvilliers 77700 —
188 800 €
500 m²

Nos partenaires locaux
Nouveau, à 5 min de Bailly Romainvilliers, beau terrain à bâtir de 500m² env. avec projet accordé pour une maison d'architecte de 200m² env., 4 chambres, salon séjour, garage double...
Orientation idéale plein SUD.
Quartier résidentiel privilégié.
Viabilités sur rue : EU, Epot, Elec, Fibre, Gaz).
Etude de sol G1 réalisée.
Permis de Construire accordé: démarrez vos travaux dans 3 mois ! -----------------------------------------------------------------
Les informations sur les risques auxquels ce bien est exposé sont disponibles sur le site Géorisques : www.georisques.gouv.fr
------------------------------------------------------------------
Cette annonce immobilière est rédigée sous la responsabilité de votre agent commercial.
------------------------------------------------------------------
Envie de changer de carrière professionnelle, BL AGENTS recrute partout en France, parlons-en ou découvrez notre concept sur www.bl-agents-recrutement.fr Contactez Cyril SAVRY au [Coordonnées masquées]. N° RSAC : 815 096 227 MEAUX
Voir plus

Référence: 38014
Honoraires à la charge du vendeur.
Barème des honoraires

Prêt immobilier

Vous souhaitez connaître votre capacité d’emprunt et trouver le meilleur crédit immobilier ?
Réaliser une simulation gratuite

Vue 3D maison 4 chambres - Terrain à BAILLY-ROMAINVILLIERS
Vue 3D maison 4 chambres
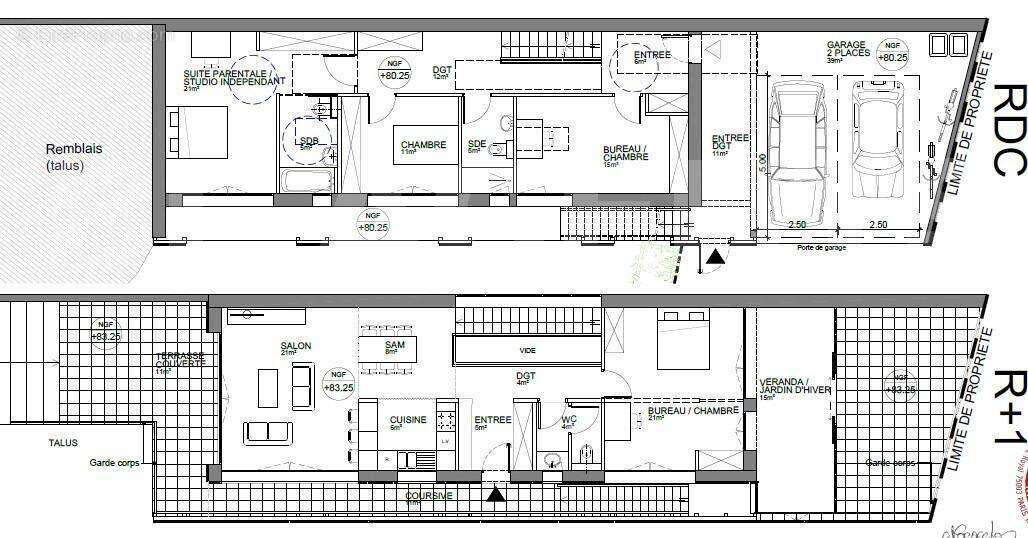
Plan Maison RDC et R+1 - Terrain à BAILLY-ROMAINVILLIERS
Plan Maison RDC et R+1
PERSPECTIVE GENERALE - Terrain à BAILLY-ROMAINVILLIERS
PERSPECTIVE GENERALE
Ce site est protégé par reCAPTCHA la Politique de confidentialité et les Conditions d’utilisation de Google s’appliquent.
Obtenir un prêt immobilier au meilleur taux ?

En poursuivant votre navigation sans modifier vos paramètres, vous acceptez l'utilisation de cookies susceptibles de réaliser des statistiques de visite. Cliquez ici pour plus d'informations