Bénéficiez des services de nos partenaires locaux soigneusement sélectionnés
pour vous accompagner dans votre parcours d'achat immobilier

Terrain constructible / bâtisse à rénover ou à démolir

— Vallet 44330 —
89 900 €
121 m²
jardin

Nos partenaires locaux
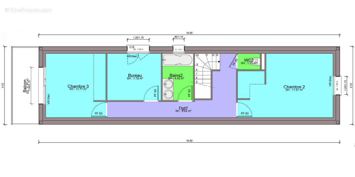
Située en centre-bourg de Vallet dans une rue calme et à proximité immédiate de toutes les commodités : Parcelle de terrain d'environ 121m² avec bâtisse (à réhabiliter ou à démolir) permettant une construction neuve d'environ 106m². Les plans proposés (suggestion) permettent d'envisager une maison avec étage proposant 3 chambres (dont 1 suite parentale avec salle d'eau) - un bureau - une pièce de vie d'environ 30m² - un cellier - une salle de bains - 2 wc - une courette à l'avant et une terrasse à l'arrière... Coût de revient de l'opération avec construction ne dépassant pas les 290.000 euros en tout. Permis de construire déjà accordé et transmissible. Plans disponibles. Tout à l'égout dans la rue - Tableau électrique existant... (6.39 % honoraires TTC à la charge de l'acquéreur.)
Voir plus

Référence: 259
Honoraires d'agence de 6.39% à la charge de l'acquéreur
Barème des honoraires

Prêt immobilier

Vous souhaitez connaître votre capacité d’emprunt et trouver le meilleur crédit immobilier ?
Réaliser une simulation gratuite

Terrain à VALLET
Terrain à VALLET
Terrain à VALLET
Terrain à VALLET
Terrain à VALLET
Terrain à VALLET
Terrain à VALLET
Terrain à VALLET
Terrain à VALLET
Terrain à VALLET
Ce site est protégé par reCAPTCHA la Politique de confidentialité et les Conditions d’utilisation de Google s’appliquent.
Obtenir un prêt immobilier au meilleur taux ?

En poursuivant votre navigation sans modifier vos paramètres, vous acceptez l'utilisation de cookies susceptibles de réaliser des statistiques de visite. Cliquez ici pour plus d'informations