Montigny les metz - lotissement la horgne du sablo

— Montigny-Les-Metz 57950 —
128 954 €
427 m²
jardin

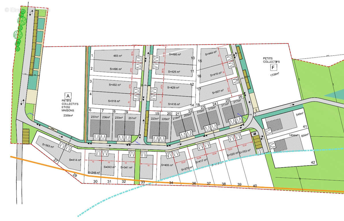
MONTIGNY LES METZ - Lotissement La Horgne Du Sablon située au Parc De La Closerie. Idéalement situé - ce nouveau lotissement se situe au croisement de Metz Magny - Metz Sablon (Gare) et Marly - LOT 12 Terrain constructible de 427m2 vendu viabilisé comprenant une surface plancher de construction affecté de 180m2. Exposition Est - façade de 12m. Plusieurs terrains sont actuellement disponibles: superficies comprises entre 2.03 ares et 8.30 ares et prix de vente compris entre 99 938€ et 288 770€ en fonction de leurs spécificités. Libre de constructeur. Hauteur: R+1+Toiture - pas de prescription concernant l'emprise au sol. Livraison prévue fin 1er Trimestre 2026 avec voirie provisoire. Prix affiché hors DMTO.
Voir plus

Référence: 231
Barème des honoraires

Prêt immobilier

Vous souhaitez connaître votre capacité d’emprunt et trouver le meilleur crédit immobilier ?
Réaliser une simulation gratuite

Terrain à MONTIGNY-LES-METZ
Terrain à MONTIGNY-LES-METZ
Terrain à MONTIGNY-LES-METZ
Terrain à MONTIGNY-LES-METZ
Terrain à MONTIGNY-LES-METZ
Terrain à MONTIGNY-LES-METZ
Terrain à MONTIGNY-LES-METZ
Terrain à MONTIGNY-LES-METZ
Terrain à MONTIGNY-LES-METZ
Terrain à MONTIGNY-LES-METZ
Terrain à MONTIGNY-LES-METZ
Terrain à MONTIGNY-LES-METZ
Ce site est protégé par reCAPTCHA la Politique de confidentialité et les Conditions d’utilisation de Google s’appliquent.
Obtenir un prêt immobilier au meilleur taux ?

En poursuivant votre navigation sans modifier vos paramètres, vous acceptez l'utilisation de cookies susceptibles de réaliser des statistiques de visite. Cliquez ici pour plus d'informations