Bénéficiez des services de nos partenaires locaux soigneusement sélectionnés
pour vous accompagner dans votre parcours d'achat immobilier

Merignac capeyron - bureaux/professions libérales 172 m2

— Merignac 33700 —
495 000 €
172 m²

Nos partenaires locaux
Installez vos bureaux dans un espace indépendant prêt à accueillir votre activité, alliant confort et image professionnelle !
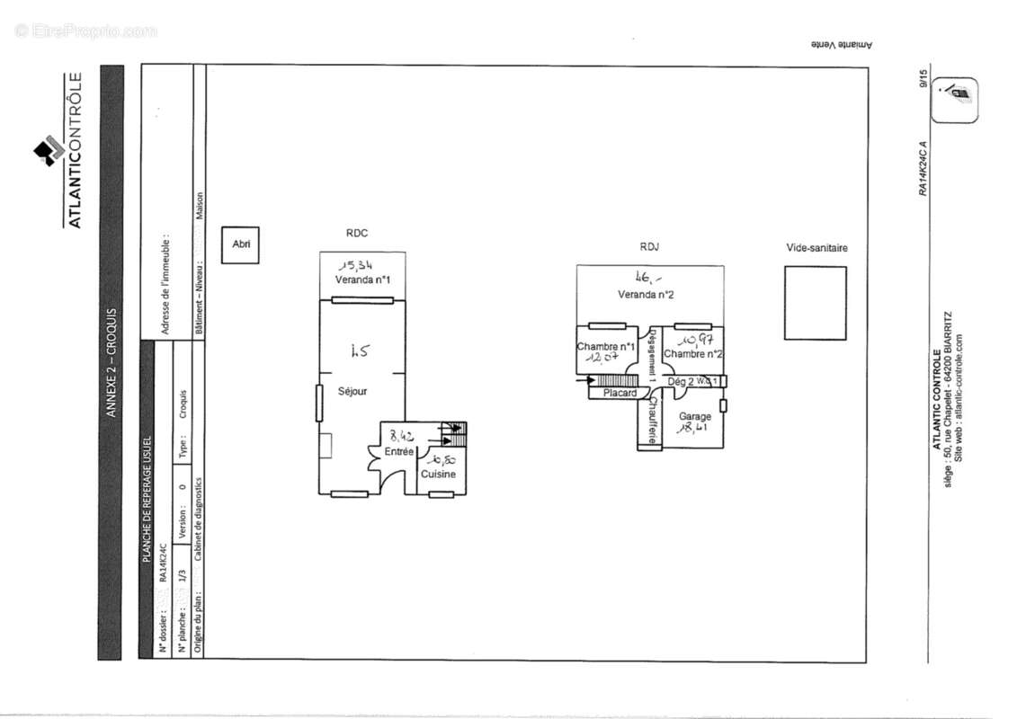
Bâtiment indépendant de 172 m2 sur une parcelle de 1 000 m2, idéal pour accueillir une activité de bureaux ou professions libérales. Composé d’un grand espace modulable (vaste accueil ou salle de réunion), de 5 bureaux lumineux (dont 2 avec cabinet de toilette), de sanitaires (salle de bains et 2 WC séparés) et d'une cuisine aménageable en espace détente. Surface couverte et fermée de 50 m2 pouvant faire office de stokage et/ou show-room. Garage attenant + 1 stationnement. A étudier, possibilité de stationnement supplémentaire sur parcelle. Proximité rocade et pénétrante sur Bordeaux.
Idéal pour un projet professionnel ou mixte (habitation + activité) !
Certaines photographies ont été retouchées par un procédé numérique (IA). Elles sont non contractuelles et destinées à illustrer le bien.
Les informations sur les risques auxquel ce bien est exposé sont disponibles sur le site Géorisques : - www.georisques.gouv.fr
Voir plus

Honoraires d'agence de 4.21% à la charge de l'acquéreur
Barème des honoraires
DPE
A
B
C
D
E
F
G
GES
A
B
C
D
E
F
G

Prêt immobilier

Vous souhaitez connaître votre capacité d’emprunt et trouver le meilleur crédit immobilier ?
Réaliser une simulation gratuite

Commerce à MERIGNAC
Commerce à MERIGNAC
Commerce à MERIGNAC
Commerce à MERIGNAC
Commerce à MERIGNAC
Commerce à MERIGNAC
Commerce à MERIGNAC
Commerce à MERIGNAC
Ce site est protégé par reCAPTCHA la Politique de confidentialité et les Conditions d’utilisation de Google s’appliquent.
Obtenir un prêt immobilier au meilleur taux ?

En poursuivant votre navigation sans modifier vos paramètres, vous acceptez l'utilisation de cookies susceptibles de réaliser des statistiques de visite. Cliquez ici pour plus d'informations