Bénéficiez des services de nos partenaires locaux soigneusement sélectionnés
pour vous accompagner dans votre parcours d'achat immobilier

Cannes croisette vue exceptionnelle

— Cannes 06400 —
1 690 000 €
61 m²
2 pièces
parkingbalcon/terrasseascenseuraccès handicapé

Nos partenaires locaux
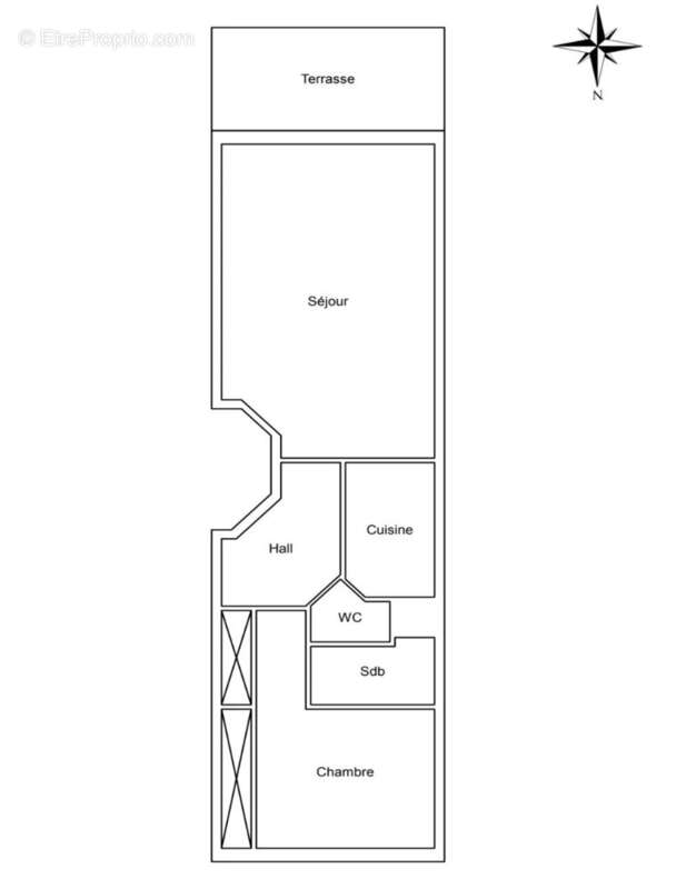
Au cœur de la Croisette, entre le prestigieux Hôtel Martinez et le Port Canto, ce bel appartement deux-pièces de 60,7 m² bénéficie d’une situation privilégiée au 7ᵉ étage d’une résidence moderne et hautement sécurisée.

Il offre un vaste séjour lumineux avec cuisine semi-ouverte, prolongé par une spacieuse terrasse de 10 m² dominant les palmiers et offrant une vue panoramique exceptionnelle sur la baie de Cannes.
L’espace nuit comprend une grande chambre avec de nombreux rangements, une élégante salle de douche ainsi que des toilettes indépendants.

L’intérieur séduit par son élégance raffinée : sols en marbre dans toutes les pièces, décoration haut de gamme et dix œuvres originales de l’artiste Thomas McKnight, qui confèrent au lieu une atmosphère artistique et unique.

Un emplacement rare qui allie calme, prestige et proximité immédiate des plages et des adresses emblématiques de la Croisette.

Atouts et prestations :
- Résidence moderne avec sécurité 24h/24 et 7j/7
- Terrasse spacieuse et ensoleillée de 10 m²
- Climatisation réversible intégrale
- Grand box fermé en sous-sol
- Cave privative

Une adresse de prestige, idéale en résidence secondaire ou pour un investissement locatif haut de gamme.
Voir plus

Référence: 86191822
DPE
A
B
C
D
E
F
G
GES
A
B
C
D
E
F
G

Prêt immobilier

Vous souhaitez connaître votre capacité d’emprunt et trouver le meilleur crédit immobilier ?
Réaliser une simulation gratuite

Appartement à CANNES
Appartement à CANNES
Appartement à CANNES
Appartement à CANNES
Appartement à CANNES
Appartement à CANNES
Appartement à CANNES
Appartement à CANNES
Appartement à CANNES
Appartement à CANNES
Appartement à CANNES
Appartement à CANNES
Appartement à CANNES
Ce site est protégé par reCAPTCHA la Politique de confidentialité et les Conditions d’utilisation de Google s’appliquent.
Obtenir un prêt immobilier au meilleur taux ?

En poursuivant votre navigation sans modifier vos paramètres, vous acceptez l'utilisation de cookies susceptibles de réaliser des statistiques de visite. Cliquez ici pour plus d'informations