Bénéficiez des services de nos partenaires locaux soigneusement sélectionnés
pour vous accompagner dans votre parcours d'achat immobilier

Voir tous les partenaires locaux

Paris 16 auteuil sud - proche commerces

— Paris-16e 75016 —
460 000 €
45 m²
3 pièces
ascenseur

Nos partenaires locaux
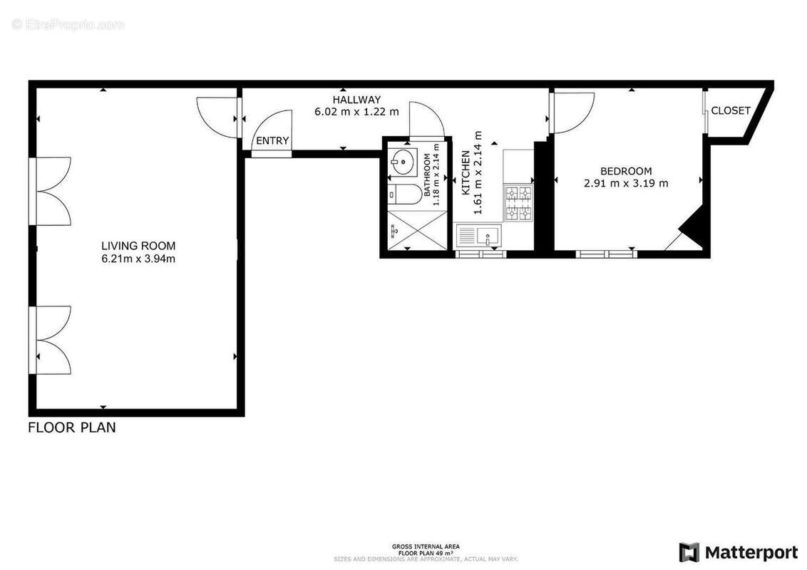
Au sein d'un immeuble ancien, un charmant appartement de 45 m², trois pièces composé d'une entrée, d'un double séjour de 23 m² sur rue calme, d'une chambre sur cour d'environ 10 m², d'une cuisine indépendante, d'une salle d'eau avec toilettes. Une cave complète ce bien. Possibilité professions libérales. CALME - LUMINEUX - PROCHE COMMERCES - RANGEMENTS simulation DPE 2026 - DPE E (4.55 % honoraires TTC à la charge de l'acquéreur.) Copropriété de 12 lots - dont 12 lots habitation. (Pas de procédure en cours). Charges annuelles : 1625 euros.
Voir plus

Référence: 5305
Honoraires d'agence de 4.55% à la charge de l'acquéreur
Barème des honoraires
DPE
A
B
C
D
E
F
G
GES
A
B
C
D
E
F
G

Prêt immobilier

Vous souhaitez connaître votre capacité d’emprunt et trouver le meilleur crédit immobilier ?
Réaliser une simulation gratuite

Appartement à PARIS-16E
Appartement à PARIS-16E
Appartement à PARIS-16E
Appartement à PARIS-16E
Appartement à PARIS-16E
Appartement à PARIS-16E
Appartement à PARIS-16E
Appartement à PARIS-16E
Ce site est protégé par reCAPTCHA la Politique de confidentialité et les Conditions d’utilisation de Google s’appliquent.
Obtenir un prêt immobilier au meilleur taux ?

En poursuivant votre navigation sans modifier vos paramètres, vous acceptez l'utilisation de cookies susceptibles de réaliser des statistiques de visite. Cliquez ici pour plus d'informations