Appartement en rez de jardin de 60 m2 env en cours de réaménagement.

— Cogolin 83310 —
420 000 €
60 m² / 100 m²
3 pièces
balcon/terrassejardin

Magnifique futur appartement traversant de 3 pièces en plein coeur de Cogolin au calme et proche de toutes commodités.
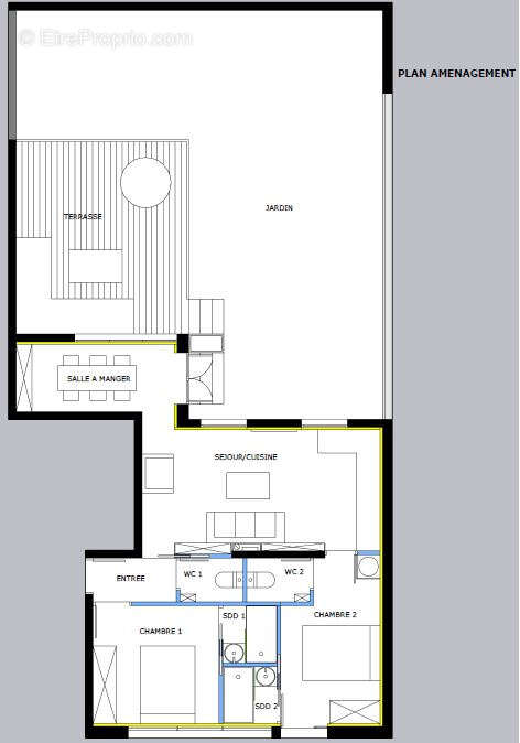
Cet appartement est en cours de travaux pour une meilleur isolation thermique et phonique et un réaménagement complet des distributions des pièces à vivre voir sur plan.
Ancien magasin réhabilité en appartement avec possiblité de deux entrées indépendantes pour pouvoir faire du locatif ponctuel tout en y habitant.
Très bon investissement dans le quartier qui est en plein essor avec de futur et beaux projets de la ville de Cogolin le tout à deux pas.
Il sera prêt pour une signature définitive.
Il se compose de deux chambres, un salon , une cuisine ouverte, un coin repas, deux salles de douche, deux wc, un jardin de plus de 100 m2 avec jouissance exclusive dont une terrasse de plus de 20m2.
Toutes les fenêtres ont été changées en sécurit pour une meilleur isolation phonique et thermique.
Cette annonce vous est proposée par FRATELLIA CYRIL - EI - NoRSAC: 899 042 857, Enregistré au Greffe du tribunal de commerce de Fréjus - Annonce rédigée et publiée par un Agent Mandataire -
Voir plus

Référence: 6120
Bien en copropriété. Nombre de lots : 4.
Honoraires à la charge du vendeur.
Barème des honoraires

Prêt immobilier

Vous souhaitez connaître votre capacité d’emprunt et trouver le meilleur crédit immobilier ?
Réaliser une simulation gratuite

Appartement à COGOLIN
Appartement à COGOLIN
Appartement à COGOLIN
Appartement à COGOLIN
Appartement à COGOLIN
Appartement à COGOLIN
Appartement à COGOLIN
Appartement à COGOLIN
Appartement à COGOLIN
Ce site est protégé par reCAPTCHA la Politique de confidentialité et les Conditions d’utilisation de Google s’appliquent.
Obtenir un prêt immobilier au meilleur taux ?

En poursuivant votre navigation sans modifier vos paramètres, vous acceptez l'utilisation de cookies susceptibles de réaliser des statistiques de visite. Cliquez ici pour plus d'informations